7,389
14
0
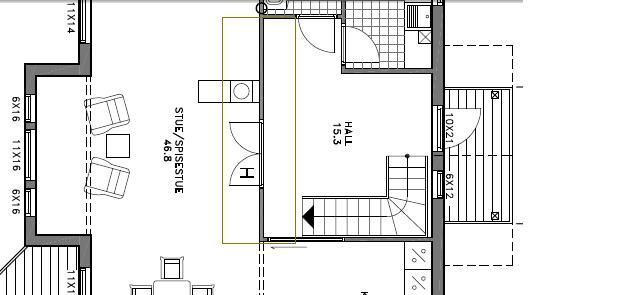
Hvilken vei bør innvendig dobbeltdør slå?
862
Østlandet
0
Bør vi åpne høyre eller venstre dør? Enkeltdør og sidefelt eller skal vi beholde dobbeltdøra? Er det veldig ille at døra som skal åpnes slår inn i pipa?

Kommer det trapp opp fra kjellern på samme sted kan dørene ikke slå utover (siden det blir å komme opp rett inn i en dør, og trangt)
Skyvedører...
som tegnet: åpne nederste dør til vanlig
Skyvedør medfører en bjelke, men siden du kan legge en limtredrager skult inne i veggen (over dørene) bør ikke en slik løsning bli veldig mye dyrere.
Hvis de slår ut i hallen blir det naturlig med høyre dør som "primær dør"
Sene endringer som dette er nok dyrere en de man gjør på papir, men det er jo bare å spørre enten får du en levelig pris (som tilsier at firmaet synes dette er enkelt å gjøre) eller så kommer de med gaffel-pris...
Vi skal gjøre all innredning selv,så firmaet har bare satt opp bæring som trengs. Er det mye jobb å få inn en bjelke der?
Hvis døra åpnes inn i stua, slik som tegningen viser kan motsatt dør stå helt åpen.
Hvor mye jobb det faktisk er overlater jeg til noen innen faget å svare på (og det kommer jo trolig også ann på hvor bæring "går videre" både opp og ned).
Andre som har synspunkter?
Jepp