23,205    17    1  

Belysning inni garasje

 344     Oslo     0
Hvilken type belysning anbefaler dere å ha inni en garasje? Blir ingen arbeidsbenk, men må ha lys nok til å stå med motorsaga og sage ved om vinteren. Wink Tenker en del på lysarmaturer, har dere noen anbefalinger her?

edit: kan også nevne at det blir downlights i kassen utfor garasjen, men vet ikke om downlights i selve garasjen blir litt overkill kanskje?
Husk dette under oppussing: Lagre kvitteringer, bilder og avtaler i Boligmappa. Logg inn her

   #1
 500     Stavanger     0
Jeg har 4 lysrør på 36 watt i min garasje, pluss en sparepære på 20watt som går på garasjeåpneren. Det gir bra og jevnt lys, og med to av lysrørene på, lyser det opp det meste av garasjen.

Ulempen med lysrørene er at de lyser litt svakere når det er kaldt ute, men her i Stavanger er det jo heldigvis ikke så mange (stein)kalde dager i året.
   #2
 1,118     Oslo / Østfold     0
I min garasje på 49kvm og med tre biler har jeg 4 stk. lysrørarmatur med 2x36 W IP65. Dertil har jeg også en løs armatur hengende i et stativ med hjul. Dette dytter jeg rundt slik at jeg får godt arbeidlys ved motorreparasjoner osv.
   #3
 930     Romerike     0
De fleste vil faktisk ha ip tett armatur, men 99% vasker jo bilen på utsiden
av garasjen.
Mye mer lys med en lyslist med reflektor..  http://elby.no/Belysning/Industriarmatur/Industriarmatur-aapen-BASIC-Aluminium-reflektor-2-X-36W
Signatur
   #4
 774     Konnerud i Drammen     1
om du vurderer downlights så hør med portprodusenten først(om det er slik at noen lys blir borte bak porten når den er åpen)

er ikke alltid de da kan gå god for at porten holder siden det da kan bli mye varme fra en spotter..
Signatur
  (trådstarter)
   #5
 344     Oslo     0
Blir det downlights blir det led ihvertfall, så akkuratt det med varme fra spottene er jeg ikke redd for. Er mer redd for at hvis jeg skal ha armaturer, vil de bygge såpass mye at porten vil krasje med dem.
   #6
 930     Romerike     0

Blir det downlights blir det led ihvertfall, så akkuratt det med varme fra spottene er jeg ikke redd for. Er mer redd for at hvis jeg skal ha armaturer, vil de bygge såpass mye at porten vil krasje med dem. :/

Siden en garasje normalt er 5-6 meter lang, og en port er 2,5 meter, så
burde det være minimum 3 meter fritt tak å montere lys i. 
Signatur
  (trådstarter)
   #7
 344     Oslo     0
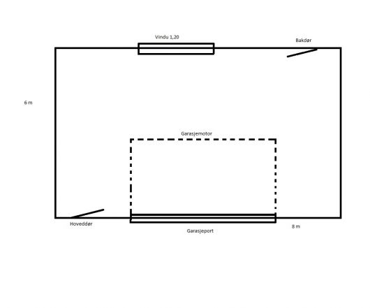
kommer ann på hvilken måte de blir montert. Skal jeg ha 3 lysarmaturer går det vel, da blir det 3 stk montert på 3m fra vegg, altså midt i garasjen, og så 3 stk bortover. Skal jeg ha 4 armaturer blir det litt verre, ettersom det kommer en armatur 2m fra vegg og så en 4m fra vegg bortover, hvis du er med på den. Legger ved en tegning lagt i paint, har ikke innvendig tegning av den, har kun utvendig tegning. Målene stemmer mer eller mindre. (Garasjen er 48,88 kvm, tegningen viser 48 kvm).
Belysning inni garasje - Garasje tegning øyemål.jpg - Fjorddykkeren

  (trådstarter)
   #8
 344     Oslo     0
Vil IP-grad 54 holde med tanke på støv, eller er det anbefalt med en som er enda mer støvtett, som IP 67?
   #9
 930     Romerike     0

Vil IP-grad 54 holde med tanke på støv, eller er det anbefalt med en som er enda mer støvtett, som IP 67?

som nevnt tidligere, skal du gå berserk med trykkspyler, så må du ha høyeste
IP grad, men de gutta jeg kjenner som skrur litt i garasjen, har lyslist med
reflektor for max lysutbytte..men de vasker bilen på utsiden...
Signatur
  (trådstarter)
   #10
 344     Oslo     0
Hehe, har ingen planer om å vaske lysene med hageslangen når det er vårrengjøring for å si det slik :p Men tenkte mer på støv (eksos) og slikt. Tror jeg går for en IP 54, har bestemt meg for at jeg skal ha armatur nå, og det blir nok en industriarmatur som det heter. :)

Vet du sånn cirka hvor mange lumen som er bra å ha i garasje? Ifølge Dialux kommer jeg på 31200 lumen på 48 kvm.