432    0    0  

Belysning stue/kjøkken

 116     Vest-Agder     0

Hei,

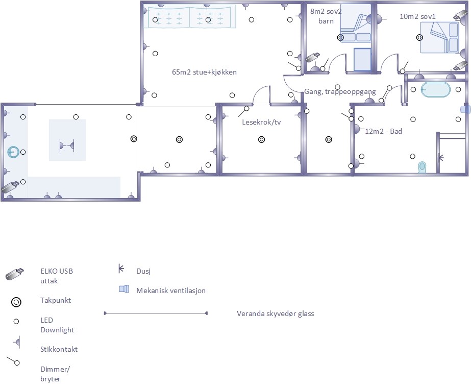
Sitter og planlegger belysningen i huset, og sliter litt med å finne en fullgod løsning for stua. Jeg har downlights i stuen min i dag (kun det) i det gamle huset mitt. Men nå som vi holder på med nytt hus begynner jeg å lure litt på om masse downlights er veien å gå... Har foreløpig bare tegnet opp to taklampepunkt som skal være over spisebord (der med innhukket fra stue til kjøkken)
Har også tenkt å ha 1-2 dekorative lamper over kjøkkenbenk, type edison globe pærer eller liknende.
Men ellers er jeg litt blank.. finner liksom ikke noe særlig som er pent og praktisk, og som gir riktig belysning.. er det noen som har lyst til å komme opp med noen forslag?
Alt elektrisk blir strukket opp nå snart, så kan i praksis gjøre hva jeg vil. alle tak/vegger er åpnet.

Er på generelt grunnlag ikke så glad i følgende produkter:
Kuppellamper
spotter på skinner/vaier.









Belysning stue/kjøkken - Plantegning 2etg.jpg - Chucknorris
Husk dette under oppussing: Lagre kvitteringer, bilder og avtaler i Boligmappa. Logg inn her