114
0
0
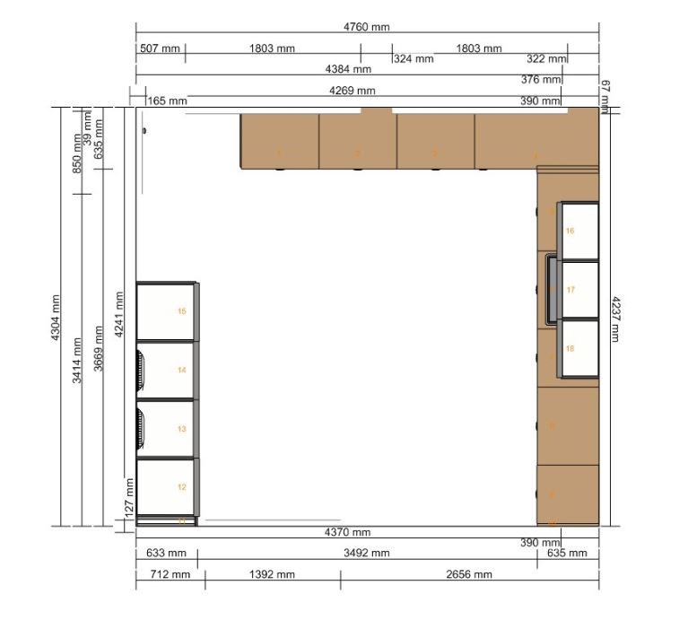
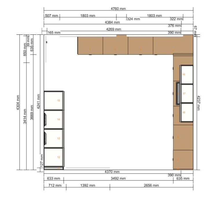
Forslag til plassering av spotter i tak kjøkken.
28
Troms
0
Signatur




