114
1
0
Innspill på plassering av spotter
1
0
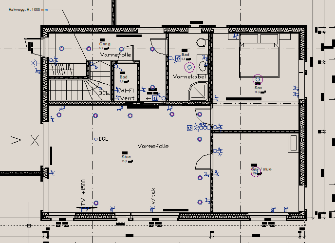
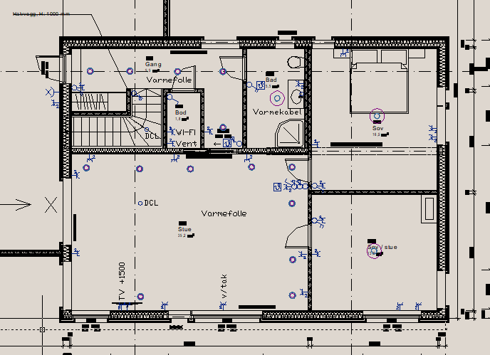
Jeg er litt usikker på den foreslåtte løsningen for plassering av spotter i stua. Det jeg lurer på er om det er riktig løsning å gå for en enkel spot over tv-veggen (nederst på tegningen).
TV-skal henges på veggen ca 60cm fra gulvet. Overkant kommer da på ca 130cm. Spotten kan fint vinkles mot veggen slik at den ikke står rett i tv.
Tror dere det vil se rart ut med en enkel spot der fremme? Burde jeg har flere spotter langs den veggen, eller er det ikke anbefalt foran vinduene?
TV-skal henges på veggen ca 60cm fra gulvet. Overkant kommer da på ca 130cm. Spotten kan fint vinkles mot veggen slik at den ikke står rett i tv.
Tror dere det vil se rart ut med en enkel spot der fremme? Burde jeg har flere spotter langs den veggen, eller er det ikke anbefalt foran vinduene?
Passat
1,146
Trøndelag
0
Jeg ville vurdert to der. Men smaken er ulik.
