2,309
5
1
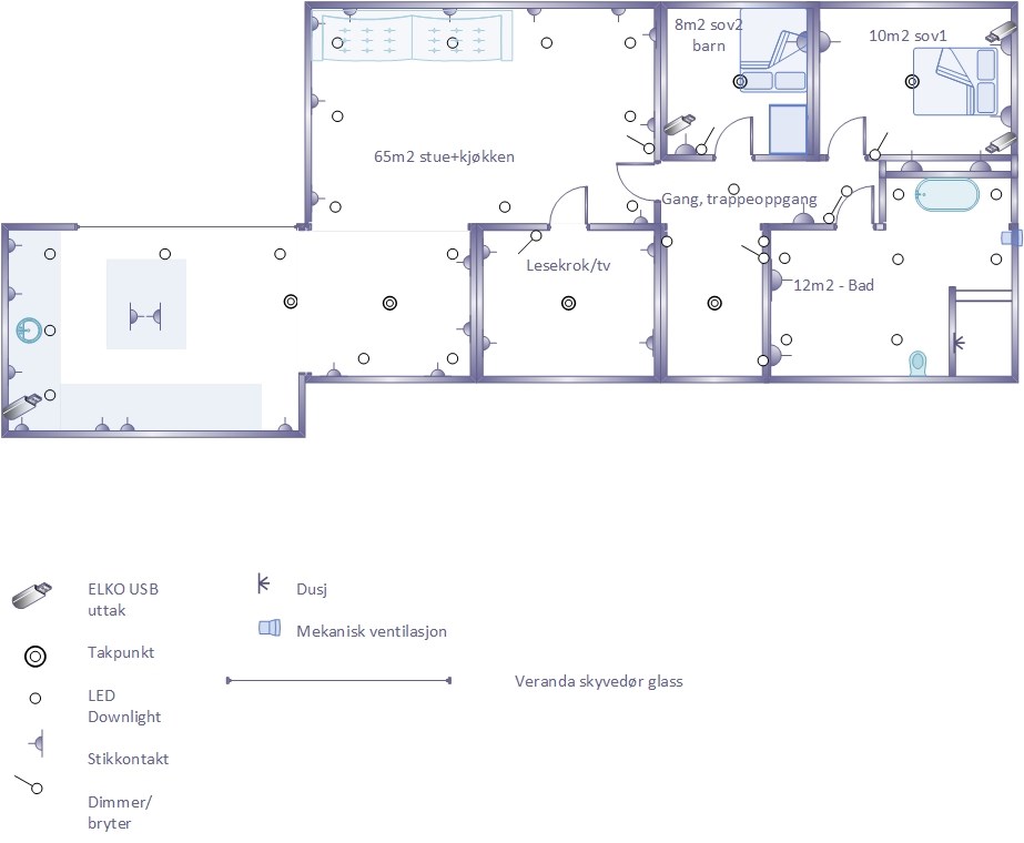
Plantegning - renovering av elektro - hus fra 1966
116
Vest-Agder
1
Hei,
Holder på å renovere et hus jeg vi har kjøpt.
Huset er fra 1966, og har blitt "oppgradert" tidligere med automatsikringer. det meste er 10A, og rørføringen er i metallrør, og lite er jordet annet enn bad/vaskerom/kjøkken.
Nå skal mye flyttes rundt på, og det vil bli en solid oppgradering på det elektriske.
Har nå på forhånd tatt for meg 2etg som blir "hovedetasjen" for det meste, og lagd en visiotegning på et forslag til elektriske punkt.
For ordens skyld, så er jeg ikke elektriker selv, men har gått et år elektro, og gjort det meste selv på det første huset mitt, utenom sikringskap, og fått elektriker til å gå over og godkjenne jobben.
Jeg tenkte å gjøre noe liknende denne gangen, men har fått med meg at det er blitt mye strengere de siste årene. Men hadde i alle fall tenkt å få noen med på at jeg kjøper materiell selv, legger alle rørføringene med pretrukket kabel, forhåpentligvis koble stikkontakter og spotter, så kan elektrikeren se over før det bokses igjen, og stå for kobling av sikringsskap, ohming av varmekabler, og eventuelt om det er noe annet han MÅ ta.
Er det noen som har noe innvendinger på dette før jeg fortsetter på 1etg og går videre til elektriker med det?
Har ikke gjort noen dimensjoneringsberegning ennå på mm2 på kabling, sikringsstørrelser / inntak etc. Det får jeg en elektriker til å ta.
PS!Beklager at jeg ikke har brukt riktige symboler. dette pga mangelfulle symboler tilgjengelig i Visio.
Har lagt inn planlagte punkt for LED-downlights, takpunkter til taklamper, Stikkontakter, USB stikkontakter samt brytere/dimmere,
de tre spottene som er innfelt i vegg i ganga v/trapp er meningen skal være i-vegg-spotter over trappen.
Nettverk har jeg ikke inkludert i tegningen, men det vil stort sett bli CAT6 til de fleste rom.
Av utstyr jeg tenkte følgende:
ELKO RS/420 dimmere
ELKO super TR PH Termostat
ELKO PLUS Usb lader
ELKO Plus dobbel stikk m/jord eller RS1091 PT lav stikk m/jord
Stansefabrikkens boligsentral med 3rad +måler. (EL 1716948)
ELKO Vegguttak Plus 1xRJ45 / 2xRJ45
LED Spot vet jeg ikke ennå, men kanskje noe SG Juniper LED ettellerannet.
Synspunkter?
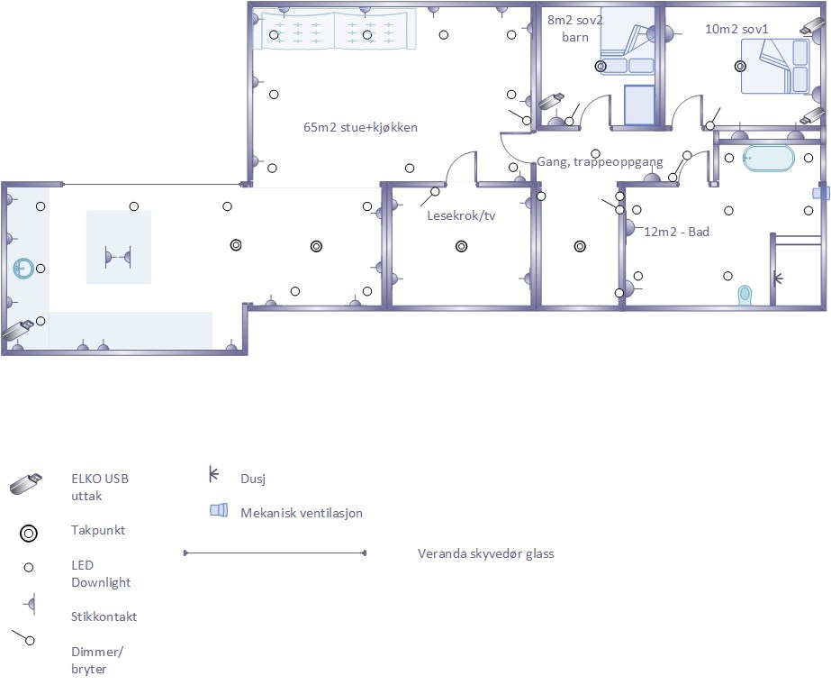
Holder på å renovere et hus jeg vi har kjøpt.
Huset er fra 1966, og har blitt "oppgradert" tidligere med automatsikringer. det meste er 10A, og rørføringen er i metallrør, og lite er jordet annet enn bad/vaskerom/kjøkken.
Nå skal mye flyttes rundt på, og det vil bli en solid oppgradering på det elektriske.
Har nå på forhånd tatt for meg 2etg som blir "hovedetasjen" for det meste, og lagd en visiotegning på et forslag til elektriske punkt.
For ordens skyld, så er jeg ikke elektriker selv, men har gått et år elektro, og gjort det meste selv på det første huset mitt, utenom sikringskap, og fått elektriker til å gå over og godkjenne jobben.
Jeg tenkte å gjøre noe liknende denne gangen, men har fått med meg at det er blitt mye strengere de siste årene. Men hadde i alle fall tenkt å få noen med på at jeg kjøper materiell selv, legger alle rørføringene med pretrukket kabel, forhåpentligvis koble stikkontakter og spotter, så kan elektrikeren se over før det bokses igjen, og stå for kobling av sikringsskap, ohming av varmekabler, og eventuelt om det er noe annet han MÅ ta.
Er det noen som har noe innvendinger på dette før jeg fortsetter på 1etg og går videre til elektriker med det?
Har ikke gjort noen dimensjoneringsberegning ennå på mm2 på kabling, sikringsstørrelser / inntak etc. Det får jeg en elektriker til å ta.
PS!Beklager at jeg ikke har brukt riktige symboler. dette pga mangelfulle symboler tilgjengelig i Visio.

Har lagt inn planlagte punkt for LED-downlights, takpunkter til taklamper, Stikkontakter, USB stikkontakter samt brytere/dimmere,
de tre spottene som er innfelt i vegg i ganga v/trapp er meningen skal være i-vegg-spotter over trappen.
Nettverk har jeg ikke inkludert i tegningen, men det vil stort sett bli CAT6 til de fleste rom.
Av utstyr jeg tenkte følgende:
ELKO RS/420 dimmere
ELKO super TR PH Termostat
ELKO PLUS Usb lader
ELKO Plus dobbel stikk m/jord eller RS1091 PT lav stikk m/jord
Stansefabrikkens boligsentral med 3rad +måler. (EL 1716948)
ELKO Vegguttak Plus 1xRJ45 / 2xRJ45
LED Spot vet jeg ikke ennå, men kanskje noe SG Juniper LED ettellerannet.
Synspunkter?
- Har du vurdert smarthus?
- Står lite/ingenting om oppvarming - er det planlagt varmekabler overalt?
- Sjekk om hovedsikringer/inntak er tilstrekkelig, ofte for lite nå som man går fra oljefyr til elektrisk oppvarming + induksjon etc...
- Ikke kast de gamle stålrørene hvis du ikke må, de er ofte enkle å trekke om
For å besvare noen av spørsmålene dine:
- Har du vurdert smarthus?
- Har kikket litt på ulike løsninger, Eaton Xcomfort (som jeg har i det gamle huset på spottene i stua/kjøkken) men har egentlig funnet ut at det ikke er noe særlige fordeler annet enn å kunne legge til en bryter her og der ved behov...?
- KNX ser litt omfattende og/eller dyrt ut og greier ikke helt å se behovet for det.
Jeg har imidlertid satt opp et sikringsskap fra stansefabrikken med svakstrømsskinne i, slik at det er mulig å gjøre noe i etterkant. Men slik jeg ser det i dag er smarthus for dyrt og lite besparende i forhold til utgift, samt gir meg ikke noe særlige forbedringer slik jeg ser det.
- Står lite/ingenting om oppvarming - er det planlagt varmekabler overalt?
- Varmekabler på bad, ellers er det varmepumpe i stue/kjøkken som dekker mye.
er vedfyring i tillegg i stue.
er også varmekabler i kjellerstue/yttergang.
Hvis det trengs ytterlige oppvarming blir det sikkert en panelovn her og der. Er det ufornuftig tankegang? vannbåren varme etc er uaktuelt grunnet kostnad og at vi vil beholde en del av gulvene som er der idag.
- Sjekk om hovedsikringer/inntak er tilstrekkelig, ofte for lite nå som man går fra oljefyr til elektrisk oppvarming + induksjon etc...
det er et moment jeg har på tapeten som jeg må ta opp med elektrikeren. Inntaks/sikringsberegning og samtidighetsfaktor er noe jeg ikke har vært borti før, så det får noen med peiling ta.
- Ikke kast de gamle stålrørene hvis du ikke må, de er ofte enkle å trekke om
Takk for tipset! det hadde nok vært det første jeg hadde gjort.
Men da kan jeg jo kjøpe litt 2,5mm2 x3 PN kabel jeg kan trekke i de gamle rørene der det går.
når du tenker på downlights som er nærme veggen. tenkte å plassere disse ca 50-100cm ut fra vegg i stue/kjøkken, er ikke det kurant?
Angående dusj - det er et problem jeg har tenkt på. skal ha dusjnisje med fast vegg ut i rommet ca 120cm, og nisjebredde på 110-120cm ca.
Men hvordan løser jeg det med lys her inne?
det regnes vel som sone1 i taket her? er det lov/kurant å montere downlight med ip44 inne i nisjen? tenker også litt mtp høy luftfuktighet.
Downlights i dusjen er helt vanlig, er det over 225cm til himling kan du egentlig montere hva som helst, men vil vel sterkt anbefale IP44 ja.