1,211
2
0
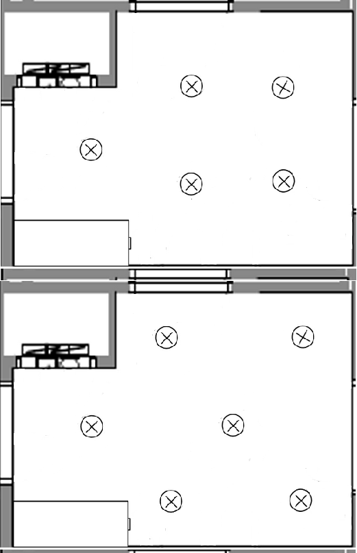
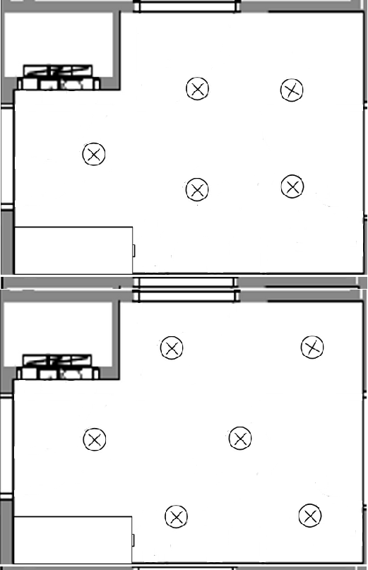
Plassering av downlights i gang
1
0
Har prøvd å tegne inn downlights i gangen til vår nye leilighet. Det kommer ikke fram av tegningen, men den er ca 290cm x220cm.
Er det noen som har noen forslag til plassering?
Takker og bukker:)
Er det noen som har noen forslag til plassering?
Takker og bukker:)


Å sette downlightsene her og der tilfeldig blir aldri pent og det beste er å ha symentri i det.
Jeg tenker hvet fall slik ovenfor mine kunder.