7,439
4
0
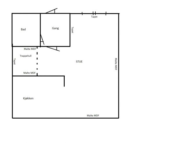
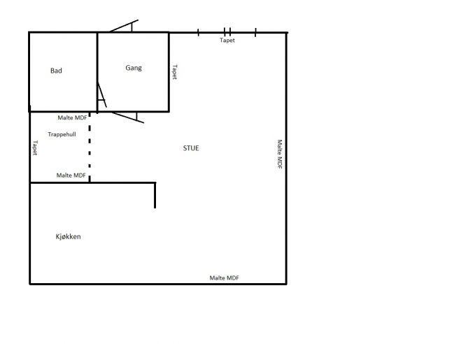
Blanding av Mdf plater og tapet.
42
Ørsta
0
Vurderer om jeg skal ta tapet på noen av veggene i stuen slik at jeg ikke går meg lei på mdf platene.
Lurer derfor på å ta lik tapet på 2 av kortveggene på stuen og på bakveggen i trappehullet.
Er det en god ide?
Er jo mange som bruker forskjellige tapetmønster/farger i samme rom, og det er ofte veldig stilig.
Vil det være noe verre å blande tapet og mdf panelplater?
Legger ved en skisse som viser hvilke vegger som får tapet
Lurer derfor på å ta lik tapet på 2 av kortveggene på stuen og på bakveggen i trappehullet.
Er det en god ide?
Er jo mange som bruker forskjellige tapetmønster/farger i samme rom, og det er ofte veldig stilig.
Vil det være noe verre å blande tapet og mdf panelplater?
Legger ved en skisse som viser hvilke vegger som får tapet

Men å ta tapet på noen av de korte veggene for å bryte opp litt skal jeg ta meg tid til, så får jeg litt erfaring med sparkling og tapetsering også. Blir da tilsammen 8,4 m vegg med tapet og 18 meter med malte plater i stuen.
F.eks: