390  
                     3  
                     0
                     
                
                
            Jeg har fått pristilbud på å male huset
                     19   
                     0
                
            
        Jeg har fått pristilbud på å få malt huset. Dette er et to-etasjes trehus i Oslo. Det er kledningen, samt omramminger, vindskier osv, men ikke blikk og vinduskarmer, ca 500 m2 flate med liggende kledning, som er ferdig grunnet og malt ett strøk fra fabrikk. Alle tibydere har vært på befaring og fått FDV-dokumentasjon på kledning. Prisene er innhentet i mars/april 2020, og er basert på to strøk Jotun Ultimat eller tilsvarende og gjennomføring i april 2020.
Pris 1: 172 000
Pris 2: 154 000
Pris 3: 149 500
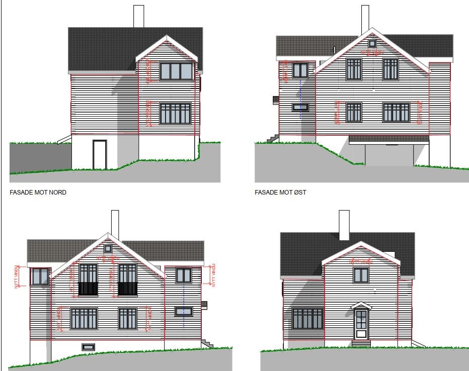
Prisene er inkludert moms. Stillas/lift kommer i tillegg. Alle tilbyderne er norske firmaer. Her er tegning av huset som skal males.
       
        
        
    Pris 1: 172 000
Pris 2: 154 000
Pris 3: 149 500
Prisene er inkludert moms. Stillas/lift kommer i tillegg. Alle tilbyderne er norske firmaer. Her er tegning av huset som skal males.

                        HSt
                    
                    
                     39,083   
                         Lillestrøm kommune   
                     0
                
            
        April er ikke egnet tid for maling, du må ha tørk på panelen først. Husk korrekt vask og evt sopp og algedreper
       
        
        
    
                        StigHF
                    
                          (trådstarter)
                    
                     19   
                     0
                
            
        Tidspunktet er i henhold til anbefaling fra tilbydere/aktører i bransjen. De har riktignok sagt ulike ting: Noen vil ha frostfritt hele døgnet. Andre vil ha minst 10 grader hele døgnet. Andre igjen vil ha minst frem grader hele døgnet. De som har gitt tilbud har antatt at arbeidet kan starte "etter påske", men med forbehold om at enkelte arbeidsdager kan utgå helt eller delvis pga. værforhold.
        
        
    
                        TSt
                    
                    
                     15,826   
                     0
                
            
        Jeg ville også helt hatt mye bedre tørk ikke minst på forhånd.  Men kan hende at prisen er høyere senere på året. Så på maling av hus i sluddbyger med lift i fjor høst.  Gesimsen de holdt på med på også for sikkerhets skyld. Det kan jo ikke bli bra.