384
2
0
Hjelp til planløsning på moderne hytte
3
Skien
0
Hei,
Er det noen som kan hjelpe meg med noen gode forslag på planløsning her?
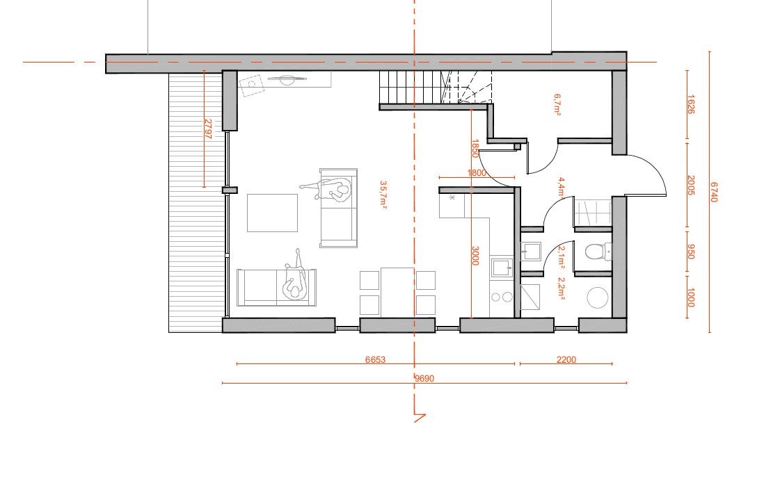
Det vi ønsker er 2 komplette bad,4 soverom også må det være bod og teknisk rom i 1 etasje. Det er lagringsplass under trapp i 1 etasje der bod er tegnet inn idag.
Vi er i utgangspunktet fornøyd med 2 etasje på utkastet men ikke så fornøyd med løsningen fra arkitekten på 1 etasje.
Noen som har noen forslag til andre løsninger ? fyr løs
Bilde 1 = første etasje
Bilde 2 = andre etasje

Er det noen som kan hjelpe meg med noen gode forslag på planløsning her?
Det vi ønsker er 2 komplette bad,4 soverom også må det være bod og teknisk rom i 1 etasje. Det er lagringsplass under trapp i 1 etasje der bod er tegnet inn idag.
Vi er i utgangspunktet fornøyd med 2 etasje på utkastet men ikke så fornøyd med løsningen fra arkitekten på 1 etasje.
Noen som har noen forslag til andre løsninger ? fyr løs
Bilde 1 = første etasje
Bilde 2 = andre etasje


Det er fjell, og utebod er tenkt på utsiden av hytta, det er bare ikke tegnet inn på disse tegningene