3,075    9    2  

Bygge garasje og bod - div spørsmål

 364     Omegn     0
Bygge garasje og bod - div spørsmål -  - DonThomaso
Bygge garasje og bod - div spørsmål -  - DonThomaso
Bygge garasje og bod - div spørsmål -  - DonThomaso
Tanken var å kombinere garasje og bod i ett bygg på 70 kvm, men da sa kommunen nei. Tomta vår er på 2357 kvm, men utnyttelsesgrad så lav som 10%. Og selv i ei lita bygd ris det paragrafer, altså.

Planen videre er å vente til etter 1. juli og så sette opp 2 bygg tett i tett, garasje på 49 kvm og bod på inntil 35 kvm.

Som dere ser av bildene er det en fjellskråning i bakkant der, derfor må jeg ha en solid vegg der som kan fylles inntil og planeres. Tanken er som følger, bakvegg på bod (blått) og bakvegg på garasje settes opp som en hel vegg slik at jeg får et tett rom mellom de 2 byggene til f eks bossdunker etc. I tillegg må jeg sikkert ha venstre garasjevegg (sett forfra) som en del av samme jobben. Da blir det veldig mye vegg, så spørmålet er hvordan vi løser dette?

Støp blir mye betong, og det koster sitt. Hvilke andre løsninger er aktuelle her?

Har ikke tegnet så mye enda, men la oss si at boden blir 9x4, da. Og garasjen 8x6. Litt vanskelig å bedømme veggen mellom byggene i bakkant der enda siden garasjen blir skråstilt, men la oss si 3 meter. Da får vi en hel vegg på ca 26 lengdemeter, og en høyde rundt 2 meter.

Tar vi med støp av 2 plater også, så blir det ganske mye betong. Og det kreves litt jobb for å forskale den bakveggen. Finnes det billigere og like gode løsninger med f eks LECA?
Signatur

   #1
 7,115     Akershus     1
Tanken var å kombinere garasje og bod i ett bygg på 70 kvm, men da sa kommunen nei. Tomta vår er på 2357 kvm, men utnyttelsesgrad så lav som 10%. Og selv i ei lita bygd ris det paragrafer, altså.

Planen videre er å vente til etter 1. juli og så sette opp 2 bygg tett i tett, garasje på 49 kvm og bod på inntil 35 kvm.

Som dere ser av bildene er det en fjellskråning i bakkant der, derfor må jeg ha en solid vegg der som kan fylles inntil og planeres. Tanken er som følger, bakvegg på bod (blått) og bakvegg på garasje settes opp som en hel vegg slik at jeg får et tett rom mellom de 2 byggene til f eks bossdunker etc. I tillegg må jeg sikkert ha venstre garasjevegg (sett forfra) som en del av samme jobben. Da blir det veldig mye vegg, så spørmålet er hvordan vi løser dette?

Støp blir mye betong, og det koster sitt. Hvilke andre løsninger er aktuelle her?

Har ikke tegnet så mye enda, men la oss si at boden blir 9x4, da. Og garasjen 8x6. Litt vanskelig å bedømme veggen mellom byggene i bakkant der enda siden garasjen blir skråstilt, men la oss si 3 meter. Da får vi en hel vegg på ca 26 lengdemeter, og en høyde rundt 2 meter.

Tar vi med støp av 2 plater også, så blir det ganske mye betong. Og det kreves litt jobb for å forskale den bakveggen. Finnes det billigere og like gode løsninger med f eks LECA?


Leca er en mulighet. Klarte ikke i farten heeelt å se for meg hvordan veggene ble, men dersom du skal vurdere leca må du se på massetrykket, eventuelt vurdere en lettere fyllmasse inntil veggen. Om det blir *mye* billigere er jeg usikker på. Har du sett på forskalingsblokker, som bare stables og fylles med betong som et alternativ? Du slipper forskalingene, men du får betongens styrke..

Det er antakelig en murer eller to her inne som kan komme med mer konkret informasjon enn meg. Men en tegning hadde gjort livet litt enklere Smile

.Thag
   #2
 234     Sunnmøre     0
"
Tanken var å kombinere garasje og bod i ett bygg på 70 kvm, men da sa kommunen nei. Tomta vår er på 2357 kvm, men utnyttelsesgrad så lav som 10%. Og selv i ei lita bygd ris det paragrafer, altså.

Planen videre er å vente til etter 1. juli og så sette opp 2 bygg tett i tett, garasje på 49 kvm og bod på inntil 35 kvm.

"

du vet vel at dette ikke blir noe mer lovlig etter 1 juli så lenge du går utenom reguleringsplanen som sier maks 10% utnyttelse?
  (trådstarter)
   #3
 364     Omegn     0
"
Tanken var å kombinere garasje og bod i ett bygg på 70 kvm, men da sa kommunen nei. Tomta vår er på 2357 kvm, men utnyttelsesgrad så lav som 10%. Og selv i ei lita bygd ris det paragrafer, altså.

Planen videre er å vente til etter 1. juli og så sette opp 2 bygg tett i tett, garasje på 49 kvm og bod på inntil 35 kvm.

du vet vel at dette ikke blir noe mer lovlig etter 1 juli så lenge du går utenom reguleringsplanen som sier maks 10% utnyttelse?


Åjoda, huset dekker 151 etter hva kommunen forteller meg, resten av regnestykket greier du selv? Og etter 1. juli kan jeg bygge inntil 50m2 (pr bygg) uten å søke, stemmer ikke det?

Kommunen sa nei fordi det også står i den urgamle planen deres at max størrelse på bygg er 50m2, da mente de at 70 ble altfor mye...
Signatur
   #4
 234     Sunnmøre     0
aha, ok, det var nye opplysninger her Smile da er det bare å gi gass. Men vil du ikke vri garasjen mer rett mot innkjørselen? og få den parallellt med boden? ser at du da må endre geometrien på boden for å få det til og at du da ikke får utnyttet tomten på samme måte.
  (trådstarter)
   #5
 364     Omegn     0
aha, ok, det var nye opplysninger her Smile da er det bare å gi gass. Men vil du ikke vri garasjen mer rett mot innkjørselen? og få den parallellt med boden? ser at du da må endre geometrien på boden for å få det til og at du da ikke får utnyttet tomten på samme måte.

Har ikke skikkelige bilder, ser jeg. Men jeg tenker det blir litt kjedelig med 3 symmetriske bygg, tror det blir bra med garasje litt på skrå mot huset. Da får jeg et fint lagerrom mellom byggene der, en trekant som er helt i le for vinden.

Uansett vanskelig å få til, også. Innkjøringen er via snuplassen i enden av veien, så blir plassen vår omtrent som en vifte, om du skjønner. Så garasjen setter jeg bakerst langs venstre "viftekant"... Dustete forklart, men... Du ser det kanskje litt bedre av dette bildet?
Bygge garasje og bod - div spørsmål -  - DonThomaso
Signatur
  (trådstarter)
   #6
 364     Omegn     0
Leca er en mulighet. Klarte ikke i farten heeelt å se for meg hvordan veggene ble, men dersom du skal vurdere leca må du se på massetrykket, eventuelt vurdere en lettere fyllmasse inntil veggen. Om det blir *mye* billigere er jeg usikker på. Har du sett på forskalingsblokker, som bare stables og fylles med betong som et alternativ? Du slipper forskalingene, men du får betongens styrke..

Det er antakelig en murer eller to her inne som kan komme med mer konkret informasjon enn meg. Men en tegning hadde gjort livet litt enklere Smile
.Thag


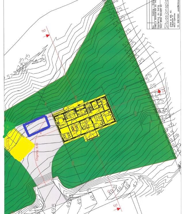
Legger ved en liten tegning, begge bygg skal forskyves litt fremover pga fjellet i bakkant. Men tanken er da den gule stipla linja som en hel vegg i full høyde.

Bak begge bygg er det fjell, så der ønskes en fylling slik at det er mulig å gå den veien. På venstre side av garasjen blir det plen på ca 1,5 meters høyde.

Jeg har ikke sett på forskalingsblokker, nei. Derfor jeg posta dette her, for å få innspill fra dere som gjerne har bygd før. Så forskalingsblokker høres ut som et alternativ, skal sjekke det.
Bygge garasje og bod - div spørsmål -  - DonThomaso
Signatur
   #7
 44     1
Hei!
I de fleste tilfeller skal det også etter 1 juli søkes om oppføring av garasje.
Frittliggende bygning på bebygd eiendom på inntil 50 m2 med avstand minimum 1,0 m fra nabogrensen kan settes i gang uten søknad, men forutsetter at
• Maksimal mønehøyde er 4,0 meter og gesimshøyde er 3,0 meter målt fra ferdig planert terrengs gjennomsnittsnivå rundt bygningen.
• Bygningen må være i én etasje og kan ikke underbygges med kjeller.
• Bygningen brukes som for eksempel garasje, uthus, verksted, hobbybod, skrivestue, veksthus eller dukkestue.
• Bygningen kan ikke inneholde beboelsesrom som kjøkken, stue, soverom eller våtrom eller brukes til overnatting.
Vegloven har bestemmelser om for eksempel avkjøring, frisiktsoner og avstand til veimidte, som må følges. Tiltaket kan ikke oppføres i byggeforbudssonen etter jernbaneloven § 10. Bygningen må heller ikke plasseres over vann- og avløpsledninger.
Tiltakshaver skal informere kommunen om bygningens plassering når den er ferdigstilt, slik at plasseringen kan føres inn i kommunens kartgrunnlag.
Du gjør så egne vurderinger om prosjektet ditt faller innenfor eller utenfor det ovenstående. Dersom du ønsker takkonstruksjon tilsvarende som huset, passerer du 4 meter på møne med god margin, og således må prosjektet ditt omsøkes.
Lykke til videre med prosjektet ditt.


Signatur

  (trådstarter)
   #8
 364     Omegn     0
Hei!
I de fleste tilfeller skal det også etter 1 juli søkes om oppføring av garasje.
Frittliggende bygning på bebygd eiendom på inntil 50 m2 med avstand minimum 1,0 m fra nabogrensen kan settes i gang uten søknad, men forutsetter at
• Maksimal mønehøyde er 4,0 meter og gesimshøyde er 3,0 meter målt fra ferdig planert terrengs gjennomsnittsnivå rundt bygningen.
• Bygningen må være i én etasje og kan ikke underbygges med kjeller.
• Bygningen brukes som for eksempel garasje, uthus, verksted, hobbybod, skrivestue, veksthus eller dukkestue.
• Bygningen kan ikke inneholde beboelsesrom som kjøkken, stue, soverom eller våtrom eller brukes til overnatting.
Vegloven har bestemmelser om for eksempel avkjøring, frisiktsoner og avstand til veimidte, som må følges. Tiltaket kan ikke oppføres i byggeforbudssonen etter jernbaneloven § 10. Bygningen må heller ikke plasseres over vann- og avløpsledninger.
Tiltakshaver skal informere kommunen om bygningens plassering når den er ferdigstilt, slik at plasseringen kan føres inn i kommunens kartgrunnlag.
Du gjør så egne vurderinger om prosjektet ditt faller innenfor eller utenfor det ovenstående. Dersom du ønsker takkonstruksjon tilsvarende som huset, passerer du 4 meter på møne med god margin, og således må prosjektet ditt omsøkes.
Lykke til videre med prosjektet ditt.

Takker for info, men vi skal ikke ha samme tak som på huset. Det var tanken i fjor, da med kino 2. etg, men den ballen er død. På garasjen, så blir det planert plen i en høyde på min 1,5 meter langs venstre vegg og bakre vegg, så tror vi er godt innafor her
Signatur