356
0
0
Plast på vegg i garasje
8
0
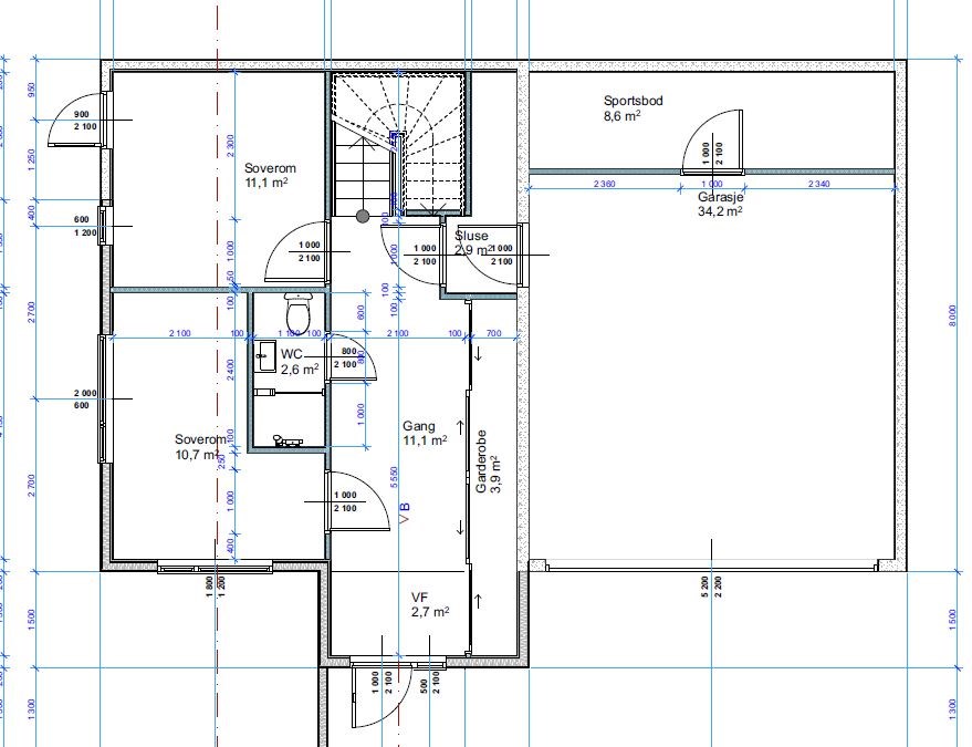
Vi har en garasje som er halvveis under huset.
Alle veggene i garasjen er i betong og garasjen er en egen branncelle.
Huset er bygd etter tek10 og det er isolasjon og tett plast på innsiden (hus siden) av vegg mellom garasje og hus. I garasjen har vi lektet ut veggene og isolert.
Skal vi legge plast på garasjeveggen (venstre side) mot huset?
Hvis jeg legger plast på veggen mot huset så blir det isåfall plast på begge sider av betongveggen.
Huset ligger i en skråning så på utsiden av bakvegg er det vorteplast, isodren og duk.
Skal det plast innvendig der?
På yttervegg i garasjen (høyre side) skal det lektes ut og legges vindspærre og trepanel.
Skal det plast på innside der?
Har tenkt å bruke osb og rehabgips på innervegger i garasje.
Takk for svar.
Alle veggene i garasjen er i betong og garasjen er en egen branncelle.
Huset er bygd etter tek10 og det er isolasjon og tett plast på innsiden (hus siden) av vegg mellom garasje og hus. I garasjen har vi lektet ut veggene og isolert.
Skal vi legge plast på garasjeveggen (venstre side) mot huset?
Hvis jeg legger plast på veggen mot huset så blir det isåfall plast på begge sider av betongveggen.
Huset ligger i en skråning så på utsiden av bakvegg er det vorteplast, isodren og duk.
Skal det plast innvendig der?
På yttervegg i garasjen (høyre side) skal det lektes ut og legges vindspærre og trepanel.
Skal det plast på innside der?
Har tenkt å bruke osb og rehabgips på innervegger i garasje.
Takk for svar.