1,531
1
0
Takstoler eller taksperrer på pulttak?
147
0
Hei
Min søster har valgt å ikke kjøpe garasje fra utbyggeren i området, og kun fått levert en meter høy mur der garasjen skal stå. Det ble søkt om garasje med pulttak som matcher huset, men noen hadde tydeligvis funnet frem feil tegninger, så nabogarasjene ble bygget med saltak. Kommunen avslo søknad om ferdigattest og sa garasjene måtte bygges om.
Garasjene skulle vært slik:

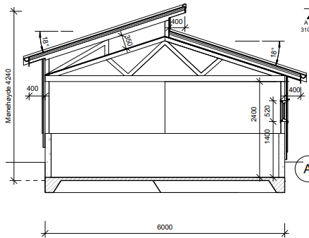
Men ble altå med saltak. De har laget tegninger for ombygging, og da ser det slik ut:

Garasjen er opprinnelig tegnet med to ekstremt smale porter, mens godkjent ombygget garasje har èn bred port, noe hun selvsagt også ønsker. Men hvordan ville dere gjort takkonstruksjonen?
Bestille takstoler noe lignende hva de ombygde garasjene har endt opp med? Eller taksperrer slik det opprinnelig var ment?
Jeg er litt usikker, fordi det nå er èn bred port, og dermed ikke blir samme støtte under drageren i fremkant av garasjen. Bør man da inn med ståldrager over porten og full pakke om det skal være taksperrer? Eller holder det med limtre? Eller like greit å bare gå for takstoler? Noen ulemper med dette?
Noe særlig prisforskjell? Det man sparer på enklere takkonstruksjon går vel med på heftigere dragere sikkert om man velger taksperrer?
Min søster har valgt å ikke kjøpe garasje fra utbyggeren i området, og kun fått levert en meter høy mur der garasjen skal stå. Det ble søkt om garasje med pulttak som matcher huset, men noen hadde tydeligvis funnet frem feil tegninger, så nabogarasjene ble bygget med saltak. Kommunen avslo søknad om ferdigattest og sa garasjene måtte bygges om.
Garasjene skulle vært slik:

Men ble altå med saltak. De har laget tegninger for ombygging, og da ser det slik ut:

Garasjen er opprinnelig tegnet med to ekstremt smale porter, mens godkjent ombygget garasje har èn bred port, noe hun selvsagt også ønsker. Men hvordan ville dere gjort takkonstruksjonen?
Bestille takstoler noe lignende hva de ombygde garasjene har endt opp med? Eller taksperrer slik det opprinnelig var ment?
Jeg er litt usikker, fordi det nå er èn bred port, og dermed ikke blir samme støtte under drageren i fremkant av garasjen. Bør man da inn med ståldrager over porten og full pakke om det skal være taksperrer? Eller holder det med limtre? Eller like greit å bare gå for takstoler? Noen ulemper med dette?
Noe særlig prisforskjell? Det man sparer på enklere takkonstruksjon går vel med på heftigere dragere sikkert om man velger taksperrer?
Drageren kan ev utføres som en fagverksbjelke med større høyde. Døråpningen blir krevende.