2,513    4    0  

Legge laminatfliser over ujevn kant? Er det mulig?

 23     Klepp Jæren     0
Har på kjøkkenet en liten del der gulvet er ujevnt gulvlegger har tilogmed sprukket.. Bør vi legge en list mellom og kappe inntil der gulvet vipper litt ned eller tror dere vi kan legge rett over ? Det er litt høydeforskjell

Legger link til bilde da jeg ikke kan laste opp vanlig fra iPad muligens

http://lh4.googleusercontent.com/-qPsNV7aocCc/T5b35z7a11I/AAAAAAAAAdU/oDNh-dh8uvE/s1024/IMAGE_04D49DF5-250D-4F3D-A0B0-2006CC3E4E42.JPG
Husk dette under oppussing: Lagre kvitteringer, bilder og avtaler i Boligmappa. Logg inn her

   #1
 21,481     Enebolig     0
Hvor mange mm på en meters lengde? Det kan avrettes med støp for tynne sjikt.
  (trådstarter)
   #2
 23     Klepp Jæren     0
Det er en lengde på ca 1,5 meter der det går et utbygg... så det har muligens noe med det å gjøre...

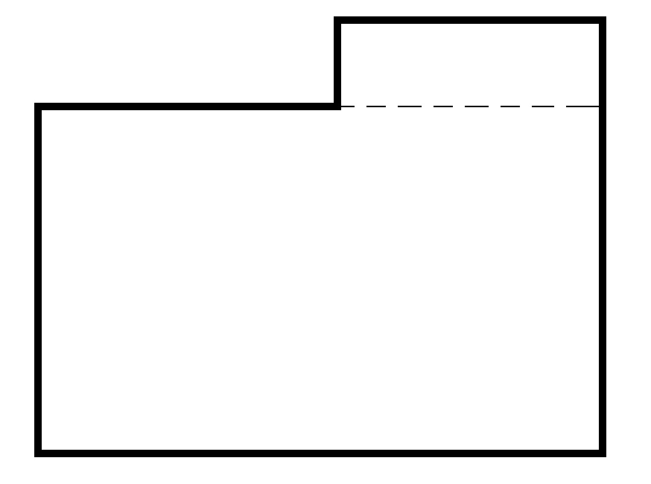
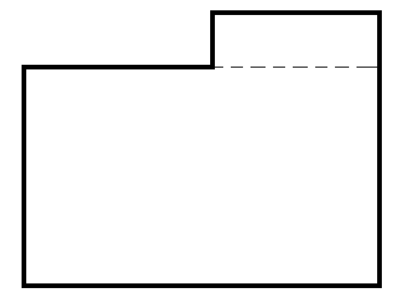
Nesten som gulvet går litt ned eller at det har svulma opp i skøten sånn at det er noen millimeter høyere enn det er på sidene av skøten... Legger ved et bilde der det viser ca kjøkkenet vårt, og den stipla linja er problemområdet
Legge laminatfliser over ujevn kant? Er det mulig? - Kjøkken.jpg - Handymom
   #3
 744     Hønefoss     0
Ville nok lagt list i dette tilfellet, men du kan nok kanskje klare å bygge opp med matter også.
  (trådstarter)
   #4
 23     Klepp Jæren     0
Ok takk!! Har også tenkt på om det kanskje går å skjære vekk gulvbelegget i midten der og sparkle, kanskje