8,976
7
1
Legge sammenhengende stort areal med parkett eller laminat - fare for sprekking?
651
Sunnmøre
0
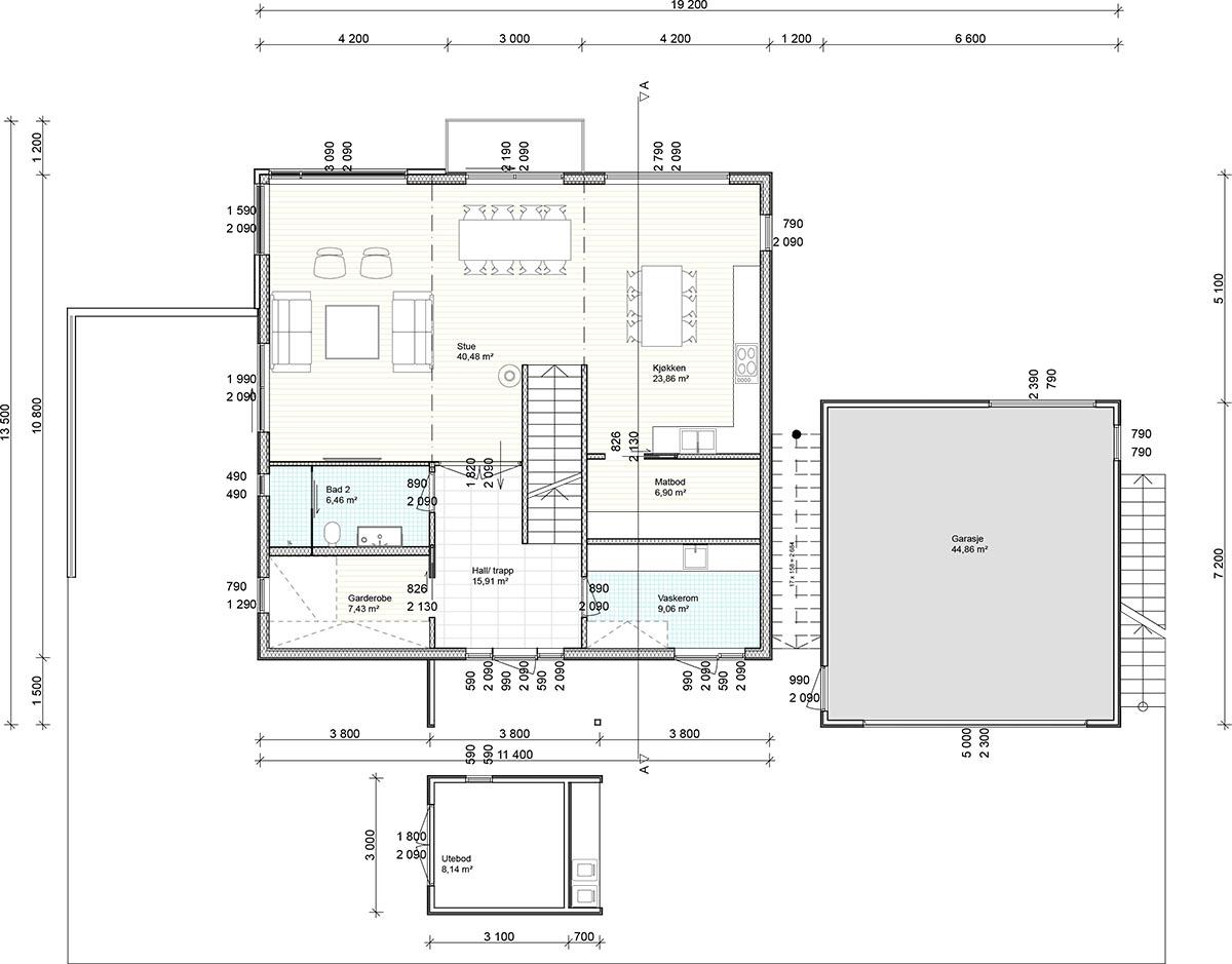
Har lagt ved plantegning. Som dere ser er det snakk om ca. 65 m2 om vi legger samme parkett/laminat på kjøkken og stue. Jeg vet man skal unngå sammenhengende gulv over i andre rom pga faren for sprekking, men hvordan vil det gå i dette tilfellet med så stort areal.
Ville dere lagt sammenhengende eller brutt opp gulvet mellom kjøkken og stue?
Ville dere lagt sammenhengende eller brutt opp gulvet mellom kjøkken og stue?
Signatur

http://winweb.imaker.no/alloc/PP/Norsk/Leggeanvisning/Alloc%20Commercial%20Leggeanvisning%202011.pdf
Mens denne parketten kun kan legges opp til 8 x 10 m:
http://winweb.imaker.no/alloc/PP/Norsk/Leggeanvisning/BerryAlloc%20Parkett%20Leggeanvisning%202012.pdf
Vi får jo en liten hesteskoform ifm. trappen og det var den jeg var mest bekymret for.
Vi hadde i utgangspunktet tenkt å legge vinyl på kjøkken pga. muligheten for søl osv. Men det var på bakgrunn av andre tegninger og vi ser nå, med de siste tegningene, at vi bør legge det samme på hele arealet.
Vi har mulighet for gode priser på Kronotex laminat og Saga parkett. I stue har vi kanskje mest lyst på parkett selv om vi går for laminat i resten av huset. Vil man kunne spesialbehandle parkett med tetting av skjøter på samme måte som jeg har hørt man gjør på laminat?
Sleneset - langtidsprosjektet som endelig realiseres
De fleste leverandører sier at du kan legge opptil 12m lengderetning, og 8 meter i bredde.
Men jeg ville delt parketten i døråpningen mellom kjøkken og matbod.
Lykke til.
Khars parkett, har hatt det i ca 3 år og ingen problem så langt.