2,207
1
0
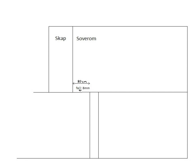
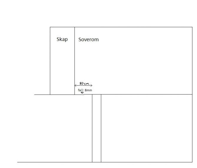
Rette av gulv under parkett
58
Vest Agder
0
Jeg holder på med å pusse opp soverommet hvor jeg nå bare har gulvet igjen. Huset er bygget i 1971 og har dermed 22mm furupanel på gulvet som var vanlig på denne tiden. Gulvet knirket, så jeg har revet av vinylet som lå samt underlaget som var noen gamle trefiberplater av en eller annen slag og har deretter gått over med stendersøker og skrudd annenhvert bord fast i bjelkelaget under, så nå knirker det nesten ingenting. Jeg skal legge parkett og gulvet er jevnt frem til hvor betongveggen (midtre) i kjelleren står. Her må jeg fylle på med en eller annen form for avretningsmasse som må gå fra 0-8mm. Det er vel et minimum med 1mm men det bør jo gå greit.
Hva bør jeg gå for her? gips eller sementbasert, med fiber eller ikke? Jeg antar at gulvet ikke er 100% stabilt(om jeg kan si det) altså at det kanskje gynger litt uten at jeg merker noe spesielt når jeg står og hopper her med 100 kg, men siden det er tre så er det vel litt svikt. Så det vil kanskje si at avretningsmassen kan sprekke littegrann, men det bør vel strengt tatt ikke ha noe å si med tanke på at jeg skal ha parkett over. Det er jo såpass lite jeg må rette av at vekten heller ikke bør ha noe å si? det går vel omtrent bare en 25 kg sekk på dette.
Er det noen som har noe tips å komme med?
Hva bør jeg gå for her? gips eller sementbasert, med fiber eller ikke? Jeg antar at gulvet ikke er 100% stabilt(om jeg kan si det) altså at det kanskje gynger litt uten at jeg merker noe spesielt når jeg står og hopper her med 100 kg, men siden det er tre så er det vel litt svikt. Så det vil kanskje si at avretningsmassen kan sprekke littegrann, men det bør vel strengt tatt ikke ha noe å si med tanke på at jeg skal ha parkett over. Det er jo såpass lite jeg må rette av at vekten heller ikke bør ha noe å si? det går vel omtrent bare en 25 kg sekk på dette.
Er det noen som har noe tips å komme med?

Heydi Best Flyt funker veldig fint fra 0-15mm. Enkel å arbeide med.