106
0
0
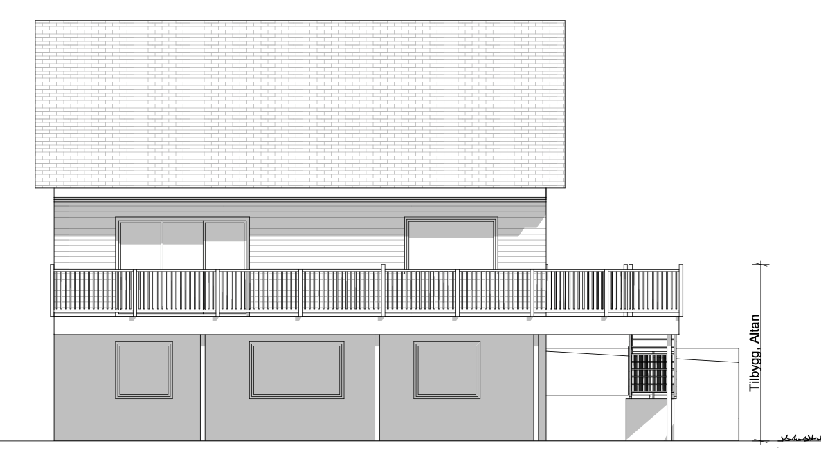
Tiltatt vekt på veranda
1
0
Hei, jeg har ett ønske å gå til innkjøp av ett massasjebad, men jeg er veldig usikker på hvordan jeg skal gå fram for å beregne hvor mye terrassen tåler pr m2. Er det noen her inne som har erfaring med dette?
Legger ved tegningen til terassen. Badet er tilgang i venstre høyre ved trappen
Kanskje litt vanskelig å svare på, men prøver meg selvom.
Jeg diskutere med tømreren som utførte jobben med terassen og han har forsterket plassen hvor den skal stå men ikke med bjelker. Han ville ikke u-tale seg om hvor mye trassen tålte.

Legger ved tegningen til terassen. Badet er tilgang i venstre høyre ved trappen
Kanskje litt vanskelig å svare på, men prøver meg selvom.
Jeg diskutere med tømreren som utførte jobben med terassen og han har forsterket plassen hvor den skal stå men ikke med bjelker. Han ville ikke u-tale seg om hvor mye trassen tålte.

