1,985
11
0
Innspill: 2etg hus med stor grunnflate og to leiligheter
91
Sola
0
På forhånd tusen takk til alle som tar seg tid til å lese/se gjennom og eventuelt komme med innspill, det blir satt stort pris på. Det er krevende å gjøre dette alene og stole nok på seg selv.
Mer info om prosjektet kan du få fra mine innlegg eller her: http://www.byggebolig.no/bygge-nytt-hus/egentegnet-betonghus-med-solenergi/msg731784
Ønsker tilbakemelding på planløsning generelt og spesielt om den som er kommentert under.
Huset blir konstruert i betong med hulldekker (HD265) så det er ikke behov for innvendig bæring og derfor kan vi gjøre nesten som vi vil. Vi har hatt fokus på at det skal være et luftig og romslig hus med fokus på kostnad. Vi styrer unna spesial løsninger som øker kostnad. (Utenom betong da, men det kan være besparende i flere tilfeller)
Det som er viktig for oss er å ha romløsninger som er praktisk lagt opp etter syklusen til familen. Vi lager mye mat fra grunn av og er glad i å varte opp, vi er en aktiv familie på fire (+ hund) som er glade i å være ute. Dette gjør at vi trenger kort vei til uteplass/hage, gode kjøkkenløsninger med kort vei inn for mat, god biingang for skitne unger (og voksne) og vaskerom/soverom/bad i en god "vaskesirkel". For økonomien og pensjonen vil vi helst ha to mindre leiligheter der en kan være utleid i kortere perioder og i bruk som gjestehybel ved besøk. Vi er et par i slutten av 30 årene med unger på 2 og 4 år (Og en mindre hund)
Alt er egen tegnet (hus og planløsning) Utvendig tegninger er ikke oppdatert etter siste planløsning enda. Det er en del jobb så jeg vil være litt sikrere. Tegner hus i Sketchup og planløsning i Roomsketcher.
Kommentar til løsninger:
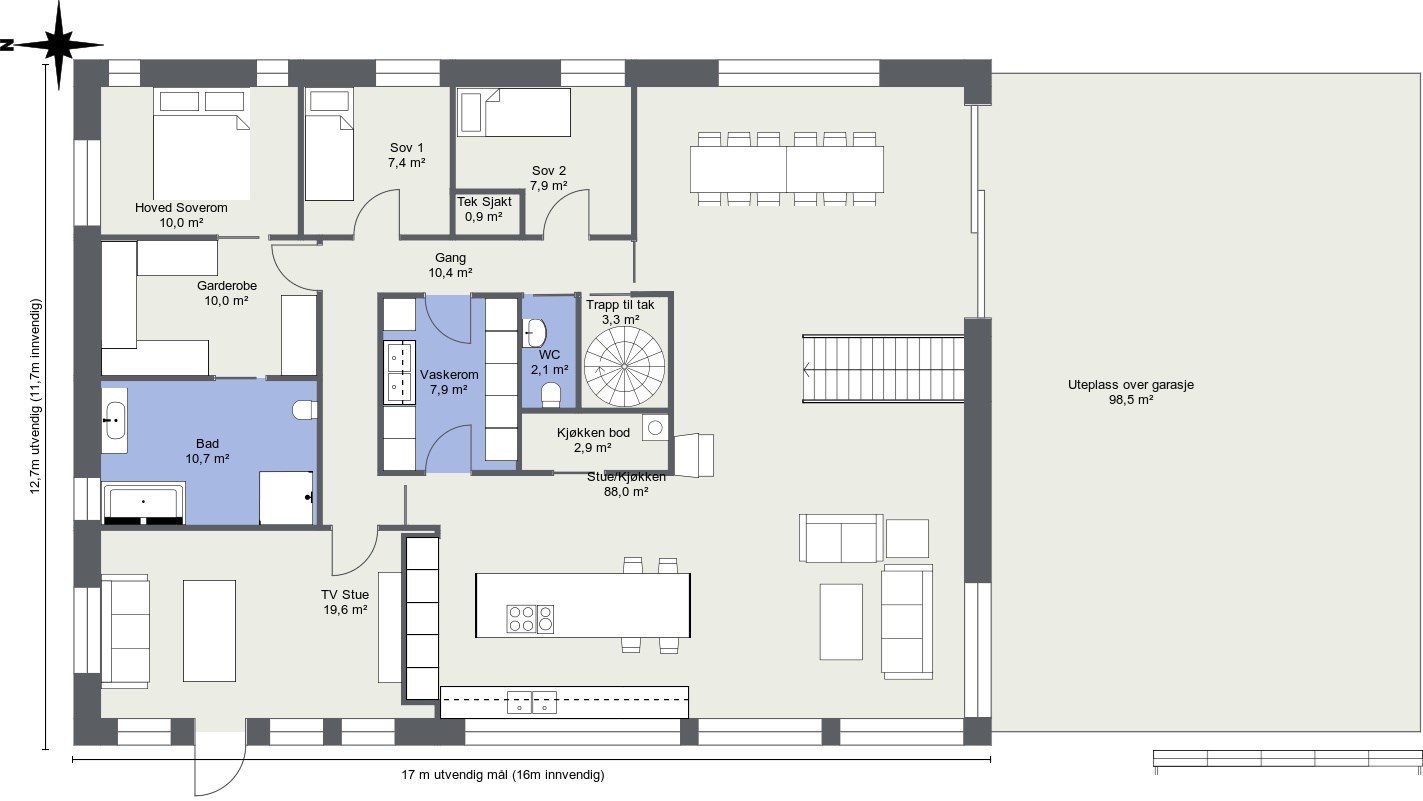
U etasje:
1 etasje:
Her er bilder av planløsning i 3D, ikke 3D og et par bilder av eksteriøret (Som ikke stemmer helt ift vinduer og inngang)







Mer info om prosjektet kan du få fra mine innlegg eller her: http://www.byggebolig.no/bygge-nytt-hus/egentegnet-betonghus-med-solenergi/msg731784
Ønsker tilbakemelding på planløsning generelt og spesielt om den som er kommentert under.
Huset blir konstruert i betong med hulldekker (HD265) så det er ikke behov for innvendig bæring og derfor kan vi gjøre nesten som vi vil. Vi har hatt fokus på at det skal være et luftig og romslig hus med fokus på kostnad. Vi styrer unna spesial løsninger som øker kostnad. (Utenom betong da, men det kan være besparende i flere tilfeller)
Det som er viktig for oss er å ha romløsninger som er praktisk lagt opp etter syklusen til familen. Vi lager mye mat fra grunn av og er glad i å varte opp, vi er en aktiv familie på fire (+ hund) som er glade i å være ute. Dette gjør at vi trenger kort vei til uteplass/hage, gode kjøkkenløsninger med kort vei inn for mat, god biingang for skitne unger (og voksne) og vaskerom/soverom/bad i en god "vaskesirkel". For økonomien og pensjonen vil vi helst ha to mindre leiligheter der en kan være utleid i kortere perioder og i bruk som gjestehybel ved besøk. Vi er et par i slutten av 30 årene med unger på 2 og 4 år (Og en mindre hund)
Alt er egen tegnet (hus og planløsning) Utvendig tegninger er ikke oppdatert etter siste planløsning enda. Det er en del jobb så jeg vil være litt sikrere. Tegner hus i Sketchup og planløsning i Roomsketcher.
Kommentar til løsninger:
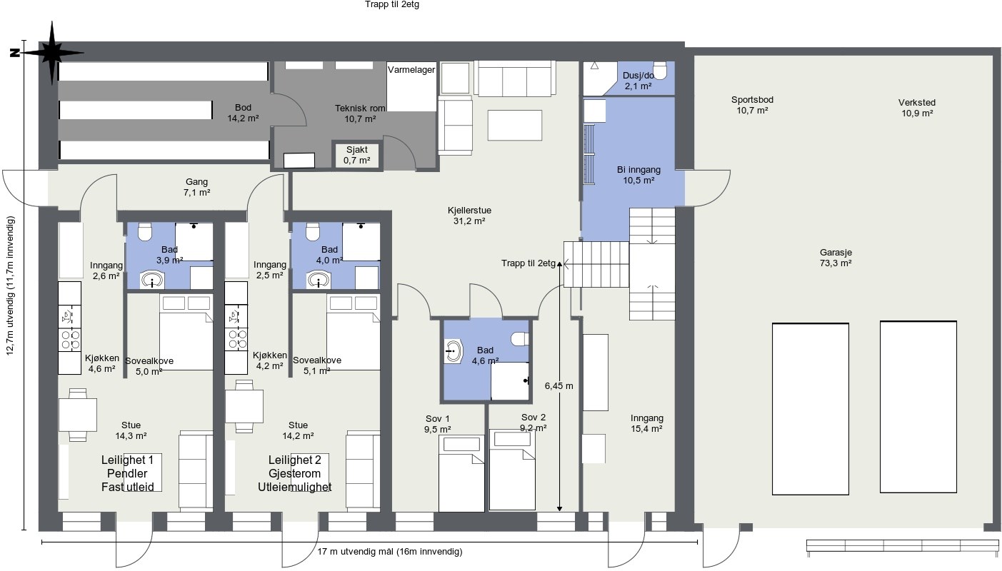
U etasje:
- Er leiligheten godkjent slik som de er tegnet, jeg finner ikke noe galt men er litt usikker på sovealkoven som ikke har vindu?
- Inngangspartiet til leiligheten tar en del plass men gir oss fleksibilitet (Det skal være en dør mellom vår gang og leilighetgang. Det er bare planen og søke om en godkjent utleiedel.
- Inngang/Bi inngang og trapp opp til 1etg er vi ikke 100% fornøyd med. Det må være en godt fungerende bi inngang med kort vei opp til kjøkken. Trappen må komme opp til 1 etg på en fornuftig plass som ikke ødelegger.
- Tenker hele veien på tekniske løsninger for VVS og elektrisk. Det er tegnet inn en sjakt for vannrør og ventilasjon til tak. Det blir ca 300cm mellom betongen så det blir god plass til tekniske føring over himling (Tenker litt industribygg/kontor når det kommer til teknisk) Regner med at det vil spare tid og penger (Da jeg skal gjøre veldig mye selv)
1 etasje:
- Det er litt utfordrende å innrede et så bredt hus.
- Uteplassen er lun og rett mot sør og utsikt ut fjorden blir mot nordvest fra sørvestre hjørne der stuen er i dag. Det er luftig og god utsikt generelt mot vest.
- Er fornøyd med stue/kjøkken, kjøkkenet for utsikt fra benkeplate og øyen for spiseplass for hverdagsmaten (Etter inspirasjon av en på forumet her, WF tror eg)
- Spisestuen kommer litt unna kjøkkenet ved gjester, og stuen for det beste utsikten.
- Hovedsoverom delen (Sov/wic/garderobe) er eg veldig usikker på, særligt en inngang via WIC.
Her er bilder av planløsning i 3D, ikke 3D og et par bilder av eksteriøret (Som ikke stemmer helt ift vinduer og inngang)







Signatur
Planløsning 1etg (3D Planløsning nederst):
Følgende er endret:
Trapp er flyttet for å ta mindre plass i stuen, men ødelegger litt for sittegruppen i det fineste hjørnet med utsikt. Retningen på trappen er motsatt av hovedinngang, kanskje litt rart men tanken var å ha kortere vei for oss selv som bruker bi inngang. Kort vei med mat osv.
WIC/Bad er byttet med Sov1/2, syns dette ble mer effektivt. Bad ligger over teknisk rom, det er utgang til hage og basseng fra bad, soverom slipper å ligge veggivegg med spisestuen.
Spørsmål:
Er trappen fornuftig plassert ift stue og inngang/biingang?
Er spisestuen på rett plass, noen mener den er for langt vegge fra kjøkken og burde byttes med sofagruppen?
Planløsning Uetg (3D Planløsning nederst):
Trapp er flyttet, retning fra biingang for å gi oss kortere vei inn og opp, er det rett?
Leilighet 1 er speilvendt, gir vindu på soverom (og med 15m3 er det nå et soverom, ikke alkove), kjøkken mot kjøkken er effektivt teknisk.
Bad ved kjellerstue er flytte vegg i vegg med leil 2 bad for å gjøre det mer effektivt og større soverom.
Er sovealkove i leilighet 2 lovlig og godkjent? Jeg finner ikke som som sier at en sovealkove trenger eget vindu.
Grunnen til 2 leiligheter er at 2x30m2 gir mer inntekt en 1x60m2, det gir mer stabilitet og leilighet 2 kan vi eventuelt korttidsutleie og bruke som gjesterom ved behov (Har litt venner rundtomkring i Norge og utland greit å kunne tilby et skikkelig gjesterom.
Takk til dere som leser og kommenterer
Eivind
Eivind Bø
Telefon 90911133
*fornavn*@atus.no
Dobbelrolle
Smarthus, belysning og generell bygg entusiast.
Planlegger å bygge selv de nærmeste årene
Representerer HDL Nordic (Buspro) i Rogaland og Vestagder
Driver et Smarthus kompetanse firma som heter Atus AS
Vi har demorom på Forus med HDL buspro og LED produkter. Ta kontakt for en hyggelig smarthus og LED prat. Vi brenner for det vi driver med!
www.hdlnordic.no
www.atus.no
Hadde satt veldig pris på noen kommentarer, det er litt skummelt å gjøre dette selv uten arkitekt...
Eivind Bø
Telefon 90911133
*fornavn*@atus.no
Dobbelrolle
Smarthus, belysning og generell bygg entusiast.
Planlegger å bygge selv de nærmeste årene
Representerer HDL Nordic (Buspro) i Rogaland og Vestagder
Driver et Smarthus kompetanse firma som heter Atus AS
Vi har demorom på Forus med HDL buspro og LED produkter. Ta kontakt for en hyggelig smarthus og LED prat. Vi brenner for det vi driver med!
www.hdlnordic.no
www.atus.no
Jeg ville droppet døren fra kjøkkenet og inn på vaskerommet. Om mulig ville jeg hatt foldedør eller skyvedør så døren ikke tar for mye plass av gulvarealet.
For vår del, er skilledøren mellom kjøkken og stue uvurderlig. Å slippe bråk fra oppvaskemaskin og arbeid på kjøkkenet og inn i stuen er deilig.
Ellers ville jeg hatt trappen andre vei, hvor dere slipper å måtte gå rundt trappen for å komme opp i stuen.
For meg personlig ville jeg hatt en ganske annen planløsning. Å måtte bære alt opp og ned en trapp er ganske tungvindt. Vi hadde det sånn i det gamle huset og resultatet i det gamle huset ble ofte til at det lå rot ved trappen i påvente av å bli bært opp eller ned.
Hvis dere liker å fyre i peisen, ville jeg hatt mulighet til å se inn fra alle kanter.
Jeg går utifra at du vet om krav til rømning og lysinnslipp i oppholdsrom og har tatt høyde for dette. Når det kommer til sovealkoven deler vi samme oppfatning, men det blir bare synsing fra min side dessverre.
Om du vil bytte plass mellom sofagruppe og spisegruppe senere er vel ikke noe stort problem. Det spørs vel i hovedsak på hvordan dere bruker dette i hverdagen. Vi spiser for det meste på kjøkkenet eller ved tven og spisestuen blir brukt når vi har gjester. Da er det kjekt at det er et stykke fra kjøkkenet syns jeg.
Ellers lurer jeg på om dere har tenkt gjennom kjøkkeninnredningen godt nok. Å ha så lite overskap betyr at man må bøye seg ekstremt mye når man holder på. For vår del er kjøkkenet kanskje det viktigste rommet når det kommer til praktisk funksjon i hverdagen. Jeg ser imidlertid at dere har mye benkeplass og det er bra.
Når det kommer til spisegruppen på kjøkkenet ville jeg hatt bordplaten noe lavere enn benkeplaten. Bordplaten bør ikke være over 80cm fra gulvet, og kjøkkenbenken bør være over 90.
Når det kommer til soverommene nede, er jeg ekstremt enig i at dere flyttet badet. Det må være mulig for å kunne leke, gjøre lekser og ha en praktisk oppbevaring av leker og klær.
Jeg vet ikke, men mulig vaskerommet ikke trenger å være oppe?
At dere har god bodplass er jeg en tilhenger av, men jeg ser det går på bekostning av utleiedelen. Jeg forstår dere vil ha høyest mulig inntekt pr utleiedel, men for at det skal fungere, dvs at leietaker skal bli boende over lengre tid må han/hun trives. Blant annet mener jeg kjøkkendisken er alt for liten.
Det er ikke nødvendig med spisebord når man har sofabord. Å måtte henge fra seg regntøy og ha sko osv midt i stuen er også en dårlig løsning. Kan leieboer ha inngang fra gangen ved boden slik som gjesterommet? Setter dere opp en dør i gangen mellom enhetene så er de fremdeles adskilt. Da kan leieboer henge fra seg klær osv i gangen, enn å måtte ta alt inn i stuen.
Ellers ser det ut som et spennende prosjekt! Lykke til
Beklager sen respons, er på ferie, prøver å unngå internett...
Kommentarer:
Vaskerom
Er enig her, må da ta plass fra soverom ved siden eller flytte WC/Trapperom mer ut i stuen, skal se hvordan det blir i versjon 3.
Skilledør kjøkken-stue
Vet ikke om jeg forstår helt her, er det bra at vi har seperat TV stue med dør eller mener du vi burde skilt kjøkkenet med vegg?
Trapp
Skal jobbe mer med trappen, ønsker å ha kort vei fra bi inngangen og opp. Tror nok vi prøver å få til en løsning som alt 1 der vi går opp fra både hovedinngang og bi inngang og kommer opp på tvers av stuen.
Generell planløsning
Parkering blir nede og soverom/oppholdsrom må bli oppe, det er ikke så lett å få til noe annet. Prøve å få til en løsning der inngang var oppe men det ble ikke så bra. Føler det er ganske kort vei fra bi inngang til kjøkken sånn som det er nå.
Peis
Vi ønsker peis med vannkappe med innsyn fra alle kanter
Rømming og lysinnslipp
Sofagruppe/Spisegruppe
Her er vi veldig enige
Kjøkkeninnredning
Kjøkken er ikke detalj tegnet, bare en grov plan. Er enig at kjøkken er det viktigste rommet, det ligger en del plan bak det. Det er plassert med god utsikt mot vest med vindu over benkeplate. Syns skuffer under benk er en effektiv løsning. Det kommer også en kjøkken bod som vil ha mye hyller i full høyde, ser for meg lagring av kjøkken redskaper og tørrvarer der. Det blir 5 høyskap i kortenden av øyen, her skap det et kjøleskap ovn, resten er skap plass.
Spisegruppe / Kjøkkenøy
Det var planen å ha hele øyen i samme høyde, altså ca 90, og heller planlegge med gode høye stoler med skikkelig rygg. Det blir ryddigere å ha en flate tenkte jeg. Må tenke litt å det.
Vaskerom
Vaskerommet vil jeg ha oppe, hele huset planlegges etter den normale flyten i en familie. En del av dette er klessyklusen, den er tidkrevende. Sånn som det er tegnet nå får vi en fin sirkel og kort vei for klær. Det er planen å ha en vaskemaskin i biinnang for jakker, sko osv.
Utleiedel
Er enig i at vi kanskje bør utvide litt for å gjøre den mer atraktiv. Det er feil på tegning, begge leilighetene skal ha inngang fra gangen som går bak de. De har begge garderobeskap ved inngang. Det er planen at begge leilighetene skal leies ut fra staren av, men at nr 2 kan være litt mer fleksibel. Kanskje mer korttidsutleie, eller bruke den selv ved behov.
Igjen, takk for gode og gjennomtenkte tilbakemeldinger
Eivind Bø
Telefon 90911133
*fornavn*@atus.no
Dobbelrolle
Smarthus, belysning og generell bygg entusiast.
Planlegger å bygge selv de nærmeste årene
Representerer HDL Nordic (Buspro) i Rogaland og Vestagder
Driver et Smarthus kompetanse firma som heter Atus AS
Vi har demorom på Forus med HDL buspro og LED produkter. Ta kontakt for en hyggelig smarthus og LED prat. Vi brenner for det vi driver med!
www.hdlnordic.no
www.atus.no
Med egen tvstue er alt greit
Peis med vannkappe er en bra ide, men vær oppmerksom på hvor mye vedbæring det blir hvis du tenker å bruke denne for oppvarming i nevneverdig grad. Det spørs selvsagt litt på hvor mye peisen gir til luft, men jeg ville tenkt grundig gjennom om det er en løsning dere er fornøyd med. Både fordi det innebærer mye bæring, men også fordi det tar mye tid.
Litt avhengig av hvilken tresort dere fyrer med, gir ikke ved stort sett mer enn 3000kwt pr kubikk ved 20% fuktighet. Bjørk gir 2700kwt, men er som regel dyrere enn strøm.
Selv syns jeg en ren vedovn i oppholdsrom er det beste, og eventuelt en vedkjele i en fyringsbod hvis du vil ha varmt vann fra veden.
Er det solcelle eller solfanger du har tenkt å ha på taket?
Det og et ønske at solfangere og eventuelt solceller skal kunne justeres i høyden. (elevasjon) for å tracke solhøyden. Dette skal gi ca 30% mer energi.
Se mine tidligere poster ang energi løsningen med bla bruk av basseng som varme lager
Igjen takk for tilbakemelding, setter veldig pris på det
Eivind Bø
Telefon 90911133
*fornavn*@atus.no
Dobbelrolle
Smarthus, belysning og generell bygg entusiast.
Planlegger å bygge selv de nærmeste årene
Representerer HDL Nordic (Buspro) i Rogaland og Vestagder
Driver et Smarthus kompetanse firma som heter Atus AS
Vi har demorom på Forus med HDL buspro og LED produkter. Ta kontakt for en hyggelig smarthus og LED prat. Vi brenner for det vi driver med!
www.hdlnordic.no
www.atus.no
1 etg:
Her er det ikke de store forandringene, men små justeringer. Hele kjøkkenet er flytte litt mot nord ca 1 meter (Spist av plassen til TV stuen) dette for å gjøre salongen mot SV litt mer romslig og åpne for en skyvedør/vegg mellom kjøkken og stue (Peisen er en utfordring da) Trappen er flyttet litt mot øst for å få litt bedre harmoni i spisestuen og mer plass til sofagruppen. Det er også satt inn to skyvedører. Det er også 2 miljø bilder fra stue/kjøkken.
U etg:
Her har begge leiligheten forandret seg mye og blitt større (Fra ca 2x30m2 til 45 og 42m2, +27m2 totalt) Gang og bod ble ofret. Leilighet 2 har fått bedre innvendig vei men en dårligere inngang rett inn i stuen. Ungenes fremtidige bad er slått sammen med bad i biinngang for å effektivisere. Bi inngang er utvidet i bredden. Badet i biingang er også "utebadet" for hage og basseng da det er fliselagt/betong vei helt inn.
Tegner uten arkitekt, har gjort alt selv så setter stor pris på tilbakemeldinger. Er alltid redd for å glemme noe eller å gjøre en stor feil.
Eivind Bø
Telefon 90911133
*fornavn*@atus.no
Dobbelrolle
Smarthus, belysning og generell bygg entusiast.
Planlegger å bygge selv de nærmeste årene
Representerer HDL Nordic (Buspro) i Rogaland og Vestagder
Driver et Smarthus kompetanse firma som heter Atus AS
Vi har demorom på Forus med HDL buspro og LED produkter. Ta kontakt for en hyggelig smarthus og LED prat. Vi brenner for det vi driver med!
www.hdlnordic.no
www.atus.no
Det der kommer til å bli et VELDIG kult hus! Jeg liker spesielt tanken om 2 utleiedeler isteden for 1
Badet som er innenfor WIC, er det tenkt for gjester i tillegg til de som bor på soverommet? Hvis ikke ville jeg vurdert å ha soverommet i midten, så man slipper å gå gjennom garderoben for å komme til badet (eller soverommet).
Men uansett kult! Lykke til!
Nikolai Dehli
Prosjektleder
Husdrømmen Arkitektur AS
www.husdrommen.no
Badet er i utgangspunktet bare for oss og ungene før de eventuelt flytter ned, det er en gjeste WC rett over gangen. Når badet i Uetg blir ferdig kan ungene bruke dette + det blir bad og do for de som er i hagen og eventuelle badegjester hvis bassenget blir realisert. Men det å ha soverommet i midten var ikke så dumt, tenkte det var logisk å ha soverommet der det var mest mulig yttervegger for vinduer osv..
Har noen konkrete ting jeg lurer på:
-Er sovealkoven i leilighet 2 godkjent som soverom?
-Vaskerom, det kan trekkes mot gangen og bli en del større, vi mister da gangen men det blir mulig gjennomgang i vaskerom. Er det verdt det?
- Soverom delen vår, 10m2 soverom, 7m2 WIC, eller 17m2 soverom med garderobeskap? Her er det 27m2 totalt vi kan boltre oss på, føler ikke det er ideelt enda. Noen bedre forslag?
Eivind
Eivind Bø
Telefon 90911133
*fornavn*@atus.no
Dobbelrolle
Smarthus, belysning og generell bygg entusiast.
Planlegger å bygge selv de nærmeste årene
Representerer HDL Nordic (Buspro) i Rogaland og Vestagder
Driver et Smarthus kompetanse firma som heter Atus AS
Vi har demorom på Forus med HDL buspro og LED produkter. Ta kontakt for en hyggelig smarthus og LED prat. Vi brenner for det vi driver med!
www.hdlnordic.no
www.atus.no
Vaskerommet sånn du har tegnet syns jeg var veldig fint.
Når det gjelder soverommet og garderoben så ville jeg personlig valgt å ha separat walk-in. Jeg ville ha flyttet soverom som foreslått over til midten, og hvis du ønsker mere plass så kan man spise litt av både bad og wic. Men jeg syns størrelsene er fine som de er :p
Nikolai Dehli
Prosjektleder
Husdrømmen Arkitektur AS
www.husdrommen.no