227
3
0
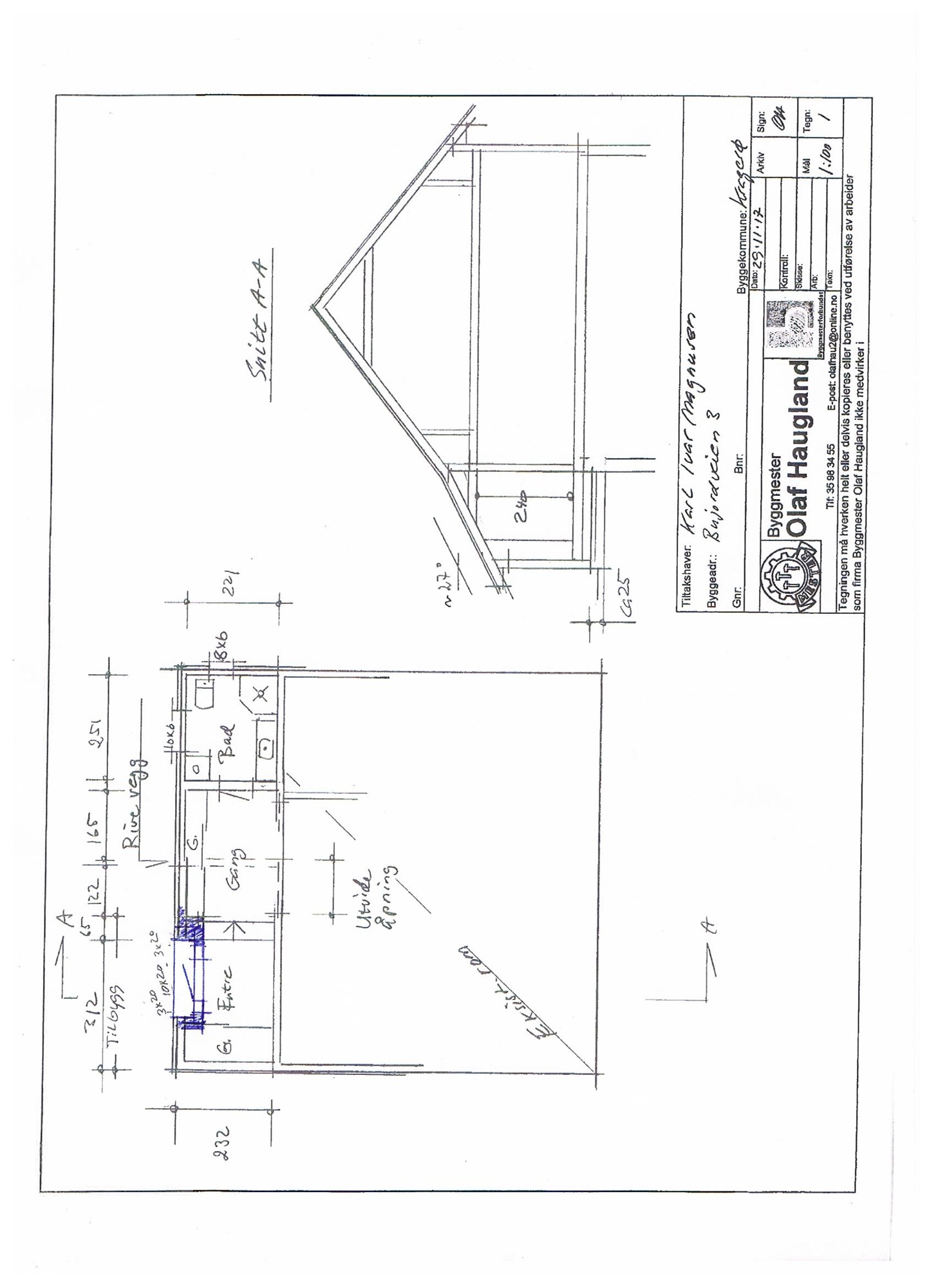
Innspill på inngangsparti ønskes
21
Telemark
0
Ønsker innspill på to løsninger for plassering av ytterdør. Vi planlegger bygging av en yttergang og er usikre på beste plassering av to sidefelter og inngangsdør. Forslaget med inntrukket dør gir mer beskyttelse for været og kanskje penere «inngangsparti» men stjeler litt plass, som vi mangler i dag og er grunnen til at vi bygger ut. Hva mener folket?

Me har liten trang entre i dag. Det er eit kaos kvar morgon når ein skal kle på seg og ut med ungane.