166    2    0  

Kjøkken i større rehab prosjekt

 79     0
Hei, vi har kjøpt oss et stort rehabiliteringsprosjekt, hus med grunnflate på 125 kvm. Kjeller + 1. etasje. Alt må gjøres..

Vi har begynt å planlegge kjøkken og ser på flere muligheter. Interessant å se hva andre hadde tenkt.
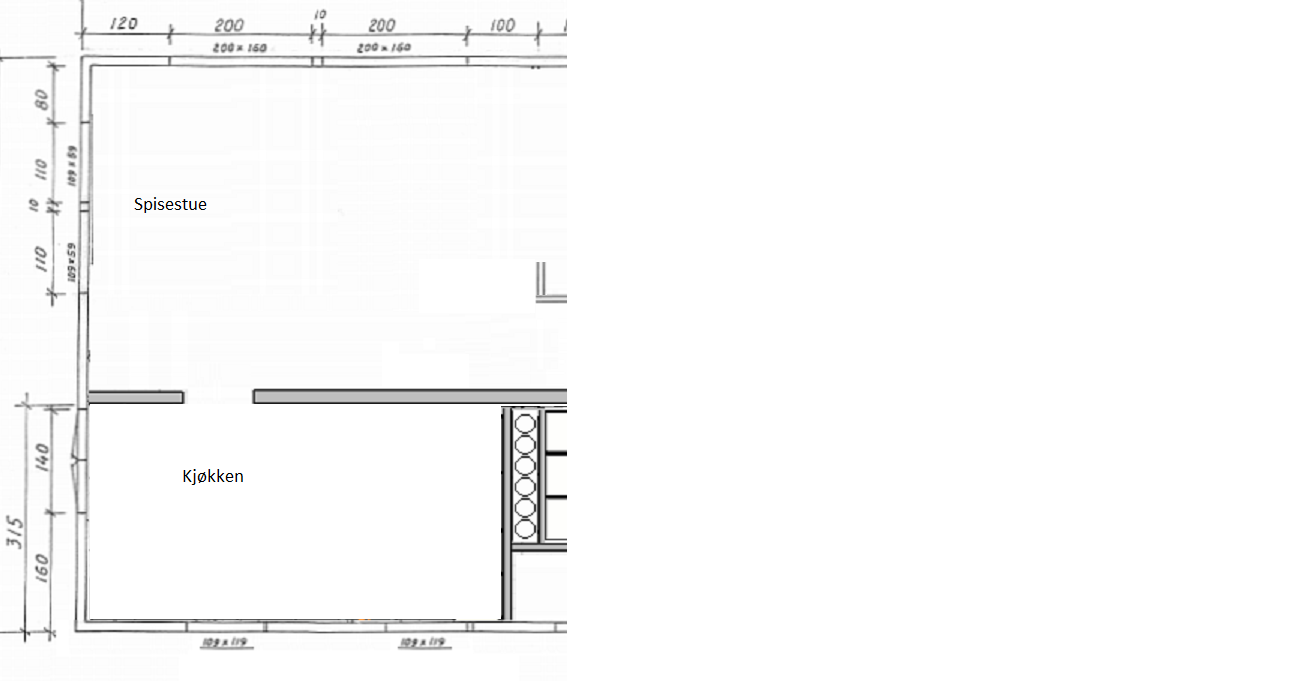
Utgangspunktet når det gamle kjøkkenet er tatt ned og en dør lukket er slik som bildet. Langveggen kan helt eller delvis fjernes. Vinduer kan flyttes på.
Noe som vil starte med å kaste ut ideer?

Kjøkken i større rehab prosjekt - kjokken.png - sveiern
Husk dette under oppussing: Lagre kvitteringer, bilder og avtaler i Boligmappa. Logg inn her

  (trådstarter)
   #1
 79     0
Her et et par forslag jeg har tenkt på. Begge har sine fordeler og ulemper.

Vi ønsker primært ikke en 100% åpen stue/kjøkkenløsning. En grunn er muligheten å få en bakvegg i spisestue til å f.eks plassere et vitrineskap og det å kunne stenge lyd og annet litt ute fra resten av huset.
Vi ønsker en god løsning for at barn kan sitte og følge med, gjøre lekser og at vi alle kan ta en kjapp matbit eller jobbe på pc uten å sitte et annet sted. En helt åpen løsning med øy løser dette bedre. Men jeg ser at med øy slik det er her, blir de skuffene i øya litt sånn i ingenmannsland.

2 av høyskapene er kjøleskap og fryser, ikke innbygging. Ovn og mikro skal inn i et skap.

Ingen av tegningen er ment å være 100% ferdige. Jeg har brukt Ikeas sitt program, uten at det er bestemt at det blir leverandøren.

Takk for alle innspill! Smile

Kjøkken i større rehab prosjekt - kjokken2.png - sveiern
Kjøkken i større rehab prosjekt - kjokken2_3d.JPG - sveiern
Kjøkken i større rehab prosjekt - kjokken3.png - sveiern
Kjøkken i større rehab prosjekt - kjokken3_3d.png - sveiern
   #2
 460     0
Jeg liker det første forslaget best. Det ligner litt på mitt eget kjøkken, og jeg er veldig fornøyd med hvordan løsningen med høyskapene endte opp. I utgangspunktet endte jeg opp der fordi takhøyden langs langveggen skrår ned til to meter, og jeg hadde ikke lyst å begynne å skråskjære høyskap for å få plass til dem, men i praksis så fungerer den veggen også som et passe skille mellom kjøkken og stue. At man kan sette ting mot veggen på stue-siden er også en fin bonus.

Jeg vurderte også å legge til en halvøy lignende den du har, men i mitt tilfelle syntes jeg den ville ha tatt for mye areal fra spisestua. I ditt tilfelle tror jeg den kan bli bra.