218  
                     2  
                     0
                     
                
                
            Beste valg av ansvarlig søker for kjellerutbygging?
                     4   
                     0
                
            
        Hei!
Spør ang et område jeg ikke har vær innom før. Så mulig det har et åpenbare svar.
I borettslaget der jeg bor så har det lenge vært åpning for å bygge ut kjeller og loft. Det er i utgangspunktet 3 etasjer + kjeller og loft. Jeg kjøpte min leilighet for over 10 år siden og den ligger i 1 etg, og da var allerede kjelleren bygget ut og det foreligger ferdigattester osv på det. Og alle vinduene på tegningen er allerede innenfor str til rømningsvei osv.
Men nå er det flere naboer som ønsker å endre litt på fellesarealet, noe som kan bety at jeg kan få muligheten til å kjøpe litt ekstra. Jeg har pusset opp mye, men ikke gjort noe som krever at jeg søker kommunen (Oslo) med en ansvarlig søker. Siden jeg skal flytte veggen og dermed endre på branncellen så må jeg det så vidt jeg skjønner?
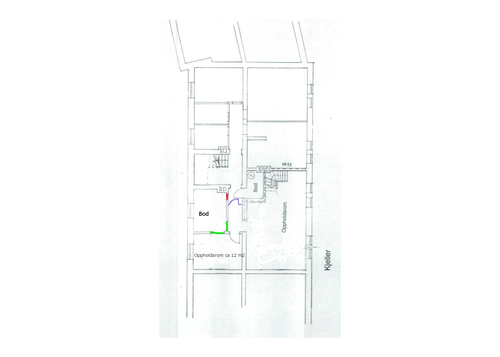
Jeg har laget en kjapp skisse av kjelleren slik den er i dag:

Rommet merket oppholdsrom er dagens kjellerstue. Arealet som kan bli tilgjengelig-gjort er det som er merket badstue, garderobe, boden til høyre for disse to samt gangen i mellom. Det som i dag er dusj skal borettslaget gjøre om til en bod, og flytte døren til punktet som er merket rødt på tegning 2 "kjelleretter"
Om de finner ut at skal selge dette slik, så var planen min å utvide dagens oppholdsrom, samt slå sammen badstu/garderobe i den andre rommet (badstuen står bare på betonggulvet i det rommet) til et oppholdsrom nr 2.
Jeg tenkte å rive, pigge gulvet og legge i leca, radonduk og isolasjon selv, leie elektriker til å legge varmekabler og støype og legge parkett selv, pusse vegger, legge takplater osv. Både for å spare penger og fordi jeg liker å holde på med denslags. Så det er litt av grunnen til at jeg er fristet om det nå blir en åpning.
På tegningen "kjelleretter" ser dere at jeg flytter dagens branndør litt lengre bort i gangen, merket med blått. Den gangen er 109 cm bred, så det blir en ganske enkel der mesteparten av arealet er døren + karm.
Jeg tenker også at tar bort to dører inn til den gamle dusjen til badstua, de står i dag i murvegger av tegelstein som er 13 cm tykke. Planen var å fjerne dørene og leie en murer til å mure igjen hullene etter dørene (altså ny mur på de to grønne strekene) slik at det blir hele tegelsteinsvegger.

Spørsmålet mitt er om en slik 13 cm tegelsteinsmur vil bli godkjent som brannsikker vegg etter ulike forskrifter så lenge jeg kan dokumentere at det er utført av fagfolk? De øvrige veggene der er bærevegger i tegelstein ig 60 cm tykke så de holder stand antar jeg. Jeg kommer uansett til å liste de de ut og plate med gips osv. Men har lyst å presentere en så enkel søknad som mulig som ivaretar sikkerhetskrav osv.
Og videre. Jeg ser at i de aller fleste byggsaker i borettslagene rundt her når jeg ser i kommunens papirer så bruker folk en sivilarkitekt som ansvarlig søker, og så har man fagfolk som leverer delprosjekt.
Jeg ser ikke helt at jeg trenger en arkitekt for å flytte døren noen meter bort, samt mure igjen to hull i veggen (er det noe her jeg ikke ser?). Er det for tegnejobben i seg selv som skal til kommunen man trenger en?
Er det mulig å leie et firma\fagperson som tar på seg ansvaret for disse to prosessene og også fungerer som ansvarlig søker. Eller er dette for lite for de fleste som har godkjenning som ansvarlig søker, og at det er derfor mange bruker en siv.ark? Eventuelt andre fordeler med det?
Noen andre forslag/tips vs papirmølla? Blir dette noe av har jeg mest lyst til å få det fort gjennom og starte. Men samtidig har jeg lyst å gjøre så mye som mulig selv på prosjektet. (og jeg har ingenting imot arkitekter altså, bare så det er sagt!)
Mange spm, og setter pris på alle svar!
 
       
            Spør ang et område jeg ikke har vær innom før. Så mulig det har et åpenbare svar.
I borettslaget der jeg bor så har det lenge vært åpning for å bygge ut kjeller og loft. Det er i utgangspunktet 3 etasjer + kjeller og loft. Jeg kjøpte min leilighet for over 10 år siden og den ligger i 1 etg, og da var allerede kjelleren bygget ut og det foreligger ferdigattester osv på det. Og alle vinduene på tegningen er allerede innenfor str til rømningsvei osv.
Men nå er det flere naboer som ønsker å endre litt på fellesarealet, noe som kan bety at jeg kan få muligheten til å kjøpe litt ekstra. Jeg har pusset opp mye, men ikke gjort noe som krever at jeg søker kommunen (Oslo) med en ansvarlig søker. Siden jeg skal flytte veggen og dermed endre på branncellen så må jeg det så vidt jeg skjønner?
Jeg har laget en kjapp skisse av kjelleren slik den er i dag:

Rommet merket oppholdsrom er dagens kjellerstue. Arealet som kan bli tilgjengelig-gjort er det som er merket badstue, garderobe, boden til høyre for disse to samt gangen i mellom. Det som i dag er dusj skal borettslaget gjøre om til en bod, og flytte døren til punktet som er merket rødt på tegning 2 "kjelleretter"
Om de finner ut at skal selge dette slik, så var planen min å utvide dagens oppholdsrom, samt slå sammen badstu/garderobe i den andre rommet (badstuen står bare på betonggulvet i det rommet) til et oppholdsrom nr 2.
Jeg tenkte å rive, pigge gulvet og legge i leca, radonduk og isolasjon selv, leie elektriker til å legge varmekabler og støype og legge parkett selv, pusse vegger, legge takplater osv. Både for å spare penger og fordi jeg liker å holde på med denslags. Så det er litt av grunnen til at jeg er fristet om det nå blir en åpning.
På tegningen "kjelleretter" ser dere at jeg flytter dagens branndør litt lengre bort i gangen, merket med blått. Den gangen er 109 cm bred, så det blir en ganske enkel der mesteparten av arealet er døren + karm.
Jeg tenker også at tar bort to dører inn til den gamle dusjen til badstua, de står i dag i murvegger av tegelstein som er 13 cm tykke. Planen var å fjerne dørene og leie en murer til å mure igjen hullene etter dørene (altså ny mur på de to grønne strekene) slik at det blir hele tegelsteinsvegger.

Spørsmålet mitt er om en slik 13 cm tegelsteinsmur vil bli godkjent som brannsikker vegg etter ulike forskrifter så lenge jeg kan dokumentere at det er utført av fagfolk? De øvrige veggene der er bærevegger i tegelstein ig 60 cm tykke så de holder stand antar jeg. Jeg kommer uansett til å liste de de ut og plate med gips osv. Men har lyst å presentere en så enkel søknad som mulig som ivaretar sikkerhetskrav osv.
Og videre. Jeg ser at i de aller fleste byggsaker i borettslagene rundt her når jeg ser i kommunens papirer så bruker folk en sivilarkitekt som ansvarlig søker, og så har man fagfolk som leverer delprosjekt.
Jeg ser ikke helt at jeg trenger en arkitekt for å flytte døren noen meter bort, samt mure igjen to hull i veggen (er det noe her jeg ikke ser?). Er det for tegnejobben i seg selv som skal til kommunen man trenger en?
Er det mulig å leie et firma\fagperson som tar på seg ansvaret for disse to prosessene og også fungerer som ansvarlig søker. Eller er dette for lite for de fleste som har godkjenning som ansvarlig søker, og at det er derfor mange bruker en siv.ark? Eventuelt andre fordeler med det?
Noen andre forslag/tips vs papirmølla? Blir dette noe av har jeg mest lyst til å få det fort gjennom og starte. Men samtidig har jeg lyst å gjøre så mye som mulig selv på prosjektet. (og jeg har ingenting imot arkitekter altså, bare så det er sagt!)
Mange spm, og setter pris på alle svar!

At noen bruker en arkitekt som ansvarlig søker betyr enten at de har for mye penger eller at det er praktisk i det tiltaket. I mange prosjekter er uansett arkitekten med i hele prosessen og kan da like gjerne gjøre byggesaken også.
Noe overordnet prosjektering kan foretas av arkitekter. Det er også visse krav til tegninger som leveres i en byggesak, men ikke nødvendigvis at de lages av en arkitekt. For større bygg er det krav til prosjektering av arkitektur som eget fagområde i byggesaken.
Ansvarlig søker behøver ikke være arkitekt. Ansvarlig søkers ansvar er å dele byggesaken opp i relevante områder, ansvarlig for dokumentasjonen i byggesaken og samordne tiltaket mot kommunen.
Det er altså et vesentlig skille mellom arkitekt/arkitektur og rollen ansvarlig søker.
Autorisert takstingeniør (MNT), Bygg- og tømrermester, Sentralt godkjent for Ansvarsrett og Godkjent Våtromsbedrift (FFV)
Tjenester:
Verdivurdering, tilstandsanalyse, våtrom, uavhengig kontroll, prosjektering/tegning, byggeledelse.
Hjemmeside