4,424
41
4
Kjellerutgraving i hus fra 1962
63
2
"Huff, hva er det jeg har begitt meg ut på??" Slik starter en kjent tråd av Frodes på dette forumet som handler om det samme temaet som jeg nå skal begi meg ut på, jeg har selvsagt tenkt de samme tankene og hatt venner, samboer og andre som har fortalt meg at jeg må være gal - men allikevel, den som intet våger ... osv.
Jeg startet planleggingen for ca 1 år siden, begynte å lese meg opp på temaet, å tegne løsninger, spesifisere prosjektet i detalj og hentet inn priser på å få utført hele prosjektet av ekstrene. Denne fremgangsmåten ble selvsagt alt for dyr, men har gitt meg viktig innsikt i hvilke deler av prosjektet jeg kan og bør få hjelp til, i tillegg til hvilke jeg bør gjøre selv.
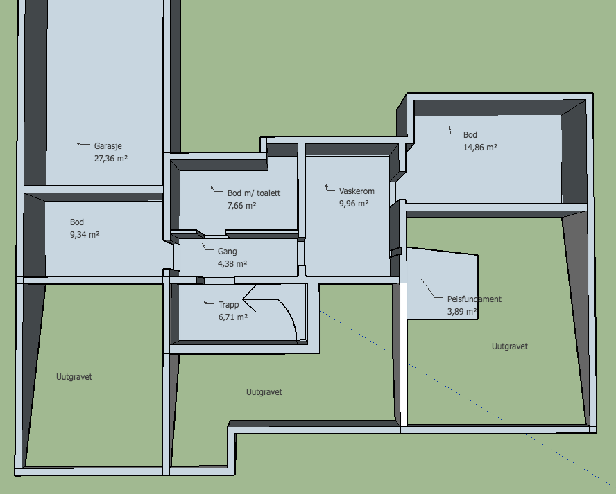
Kjelleren består av en del råkjeller og en del krypkjeller, planløsningen slik den er idag:

Krypkjelleren består av jord, stein og en god del skiferaktig fjellmasser, det er iallefall det jeg har sett så langt, men det kan jo gjemme seg overraskelser under. Grunnmuren står på disse massene i de uutgravede rommene.
Jeg har tatt litt bilder fra inni krypkjelleren, rommet til venstre (Rom 1), rommet i midten (Rom 2), rommet til høyre(Rom 3) på tegningen:
Rom 1(med tommel)

Rom 1

Rom 1

Rom 1

Nærbilde av "fjellet"

Rom 2

Rom 2

Rom 2

Rom 3

Rom 3

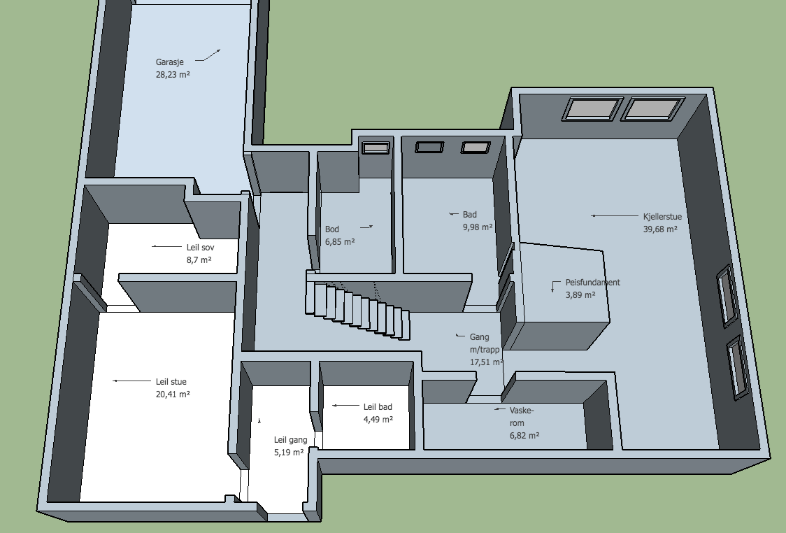
Planløsningen jeg ser for meg er følgende, tar gjerne imot innspill :

Jeg har sett en del på leie av utstyr, men dette prosjektet kommer til å pågå over ganske lang tid så da gikk jeg til skrittet med å kjøpe inn utstyr til å løse jobben jeg skal gjøre. Så skal jeg prøve å leie ut noe i mellomtiden, for så å mest sannsynlig selge når jeg er ferdig.
Cat 300.9D:

Med pigghammer:

Soroto 6m transportbånd :

Unimec beltegående minidumper:


Neste steg på planen er å søke om alle endringene som skal gjøres, samt å gjøre litt betongsaging for å komme seg inn og ut av kjelleren med massene. Noen som er interessert i ca 250m3 med glimrende fyllmasse forresten?
Kommer nok til å ta litt tid før jeg kommer ordentlig igang, men kom gjerne med innspill og kommentarer!
Jeg startet planleggingen for ca 1 år siden, begynte å lese meg opp på temaet, å tegne løsninger, spesifisere prosjektet i detalj og hentet inn priser på å få utført hele prosjektet av ekstrene. Denne fremgangsmåten ble selvsagt alt for dyr, men har gitt meg viktig innsikt i hvilke deler av prosjektet jeg kan og bør få hjelp til, i tillegg til hvilke jeg bør gjøre selv.
Kjelleren består av en del råkjeller og en del krypkjeller, planløsningen slik den er idag:

Krypkjelleren består av jord, stein og en god del skiferaktig fjellmasser, det er iallefall det jeg har sett så langt, men det kan jo gjemme seg overraskelser under. Grunnmuren står på disse massene i de uutgravede rommene.
Jeg har tatt litt bilder fra inni krypkjelleren, rommet til venstre (Rom 1), rommet i midten (Rom 2), rommet til høyre(Rom 3) på tegningen:
Rom 1(med tommel)

Rom 1

Rom 1

Rom 1

Nærbilde av "fjellet"

Rom 2

Rom 2

Rom 2

Rom 3

Rom 3

Planløsningen jeg ser for meg er følgende, tar gjerne imot innspill :

Jeg har sett en del på leie av utstyr, men dette prosjektet kommer til å pågå over ganske lang tid så da gikk jeg til skrittet med å kjøpe inn utstyr til å løse jobben jeg skal gjøre. Så skal jeg prøve å leie ut noe i mellomtiden, for så å mest sannsynlig selge når jeg er ferdig.
Cat 300.9D:

Med pigghammer:

Soroto 6m transportbånd :

Unimec beltegående minidumper:


Neste steg på planen er å søke om alle endringene som skal gjøres, samt å gjøre litt betongsaging for å komme seg inn og ut av kjelleren med massene. Noen som er interessert i ca 250m3 med glimrende fyllmasse forresten?
Kommer nok til å ta litt tid før jeg kommer ordentlig igang, men kom gjerne med innspill og kommentarer!
Byggebolig-måten, ja - om det ikke engang er lov, så har du i hvert fall benyttet sjansen til å kjøpe inn noe ordentlig verktøy!
Jeg skal følge denne tråden også. (Hvor i verden/landet?)
Hehe, jeg det jeg skal søke om er jo ganske rett frem da! Har allerede snakket med den naboen som er mest berørt og han støtter planene
Dette prosjektet utføres på Høvik i Bærum kommune.
Det finnes en kjellerventil i Rom 1 rett på innsiden av den åpningen jeg skal sage ut.
Ville det vært best å utvide den ventilen for å få plass til en byggvifte eller lignende der?
Innspill og tips tas imot med takk!
http://www.nederman.no/products/fans-and-vacuum-pumps/medium-and-high-airflow-fans/n-series-fans
Legger ved noen tegninger på hva som ble diskutert:
Forslag 1 var den planløsningen jeg kom inn med. Forslag 2 var etter innspill fra arkitekten.
Forslag 1 - planløsning kjeller:
Forslag 1 fasade:
Forslag 2 fasade:
Forslag 2 - planløsning
Fordelen med forslag 2 er at det blir mindre arbeid med å etablere egen inngang til hybelen, man får en mer effektiv planløsning der. Ved å ha hovedinngang for huset nede slipper man mye arbeid med trapp inn til huset(mange trappetrinn for å komme til inngangsdøra). Det negative er at inngangen blir nede, mens mesteparten av oppholdsrommene er oppe. Men man får vel ikke i pose og sekk! Dessverre.
Tanker eller innspill?
Regner med at du må senke bunnledningen. Har du da nok overhøyde og fall ut til kommunal ledning ?
Jeg har forholdsvis god høyde til stikkledningen(?) som går ut av huset, jeg skal senke gulvet i eksisterende rom i kjelleren men jeg tror jeg har den høyden jeg trenger. Hvis jeg må senke stikkledningen noe så er det en del fall fra husveggen til dreneringskum som ligger på tomten, jeg håper selvsagt å unngå dette.
Er det ikke krav til brannvegger og sluse fra garasjen.
Fra internettet
"Bruttoareal mindre enn 50 m²
vegg i vegg med huset, skal alle skillekonstruksjoner mellom garasjen og øvrige rom i huset være gasstette. Det tillates ikke direkte forbindelse (dør) fra garasje til oppholdsrom eller rømningsvei, kun via mellomliggende rom med dører som kan lukkes. En bilbrann kan utvikle store røykmengder og være en vesentlig risiko for sikkerheten til mennesker i boliger som er sammenbygd med garasjer."
mvh