152
6
0
Lage nytt rom - er fukt på vegg mot kjøkken noe å tenke på?
7
0
Hei,
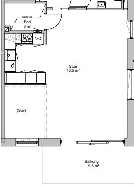
Vi bor i et nybygg fra 2020, hvor vi har tenkt til å få satt opp to lettvegger i ene hjørne av en åpen stue/kjøkken. Se bildet under (beklager dårlige tegneskills).


Er tenkt enkle gipsvegger opprinnelig. Den ene veggen (1) vil altså gå ut mot kjøkken, og den andre ut mot stue (2). For veggen som går ut mot kjøkken ønsker vi at det på et senere tidspunkt skal være mulig å sette opp kjøkkenskap, altså at den tåler litt belastning. Vi hadde en inne til befaring forleden som nevnte noe om sponplate. Jeg forstod det først som noe på innsiden av gipsen, men fikk ikke helt klart for meg hva det gikk ut på (vil vel bli klarere når et spesifisert pristilbud foreligger).
Uansett, kom til å tenke på at fukt kanskje er en faktor her? Har lest om at gips tåler fukt litt bedre enn mange andre materialer, og om sponplater som etter hvert "buler ut". Det skal sies at vi har "balansert ventilasjon" og at for tørr luft er et mye større problem enn for fuktig luft, men akkuratt i kjøkkenområdet kan jeg jo se for meg at det i perioder er fuktigere, når vi lager mat. Hva tenker dere om dette? Og hva tenker dere er beste løsning for denne veggen mtp. mer bæreevne enn bare gips?
En annen ting... Det kreves at det nye rommet er minst 15m3 for å regnes som P-areal. Etter oppmålinger av han som var på befaring blir det nye rommet rett over dette (15,5 m3). Men jeg begynte å lure på om det er en fare for at man f.eks. feilberegner total tykkelse på nye vegger eller lignende med noen små marginer som er nok til å vippe oss under 15m3-grensa. Er det vanlig/mulig å spesifisere at det nye rommet må møte dette kravet i en form for kontrakt? Holder det med typ en bekreftelse på dette fra de som utfører arbeidet via mail? Ingen erfaring her.
Vi bor i et nybygg fra 2020, hvor vi har tenkt til å få satt opp to lettvegger i ene hjørne av en åpen stue/kjøkken. Se bildet under (beklager dårlige tegneskills).


Er tenkt enkle gipsvegger opprinnelig. Den ene veggen (1) vil altså gå ut mot kjøkken, og den andre ut mot stue (2). For veggen som går ut mot kjøkken ønsker vi at det på et senere tidspunkt skal være mulig å sette opp kjøkkenskap, altså at den tåler litt belastning. Vi hadde en inne til befaring forleden som nevnte noe om sponplate. Jeg forstod det først som noe på innsiden av gipsen, men fikk ikke helt klart for meg hva det gikk ut på (vil vel bli klarere når et spesifisert pristilbud foreligger).
Uansett, kom til å tenke på at fukt kanskje er en faktor her? Har lest om at gips tåler fukt litt bedre enn mange andre materialer, og om sponplater som etter hvert "buler ut". Det skal sies at vi har "balansert ventilasjon" og at for tørr luft er et mye større problem enn for fuktig luft, men akkuratt i kjøkkenområdet kan jeg jo se for meg at det i perioder er fuktigere, når vi lager mat. Hva tenker dere om dette? Og hva tenker dere er beste løsning for denne veggen mtp. mer bæreevne enn bare gips?
En annen ting... Det kreves at det nye rommet er minst 15m3 for å regnes som P-areal. Etter oppmålinger av han som var på befaring blir det nye rommet rett over dette (15,5 m3). Men jeg begynte å lure på om det er en fare for at man f.eks. feilberegner total tykkelse på nye vegger eller lignende med noen små marginer som er nok til å vippe oss under 15m3-grensa. Er det vanlig/mulig å spesifisere at det nye rommet må møte dette kravet i en form for kontrakt? Holder det med typ en bekreftelse på dette fra de som utfører arbeidet via mail? Ingen erfaring her.
Anbefaler dog å montere en eller annen form for fuktbeskyttelse i forbindelse med vask, og kanskje også komfyrtopp. Der dere skal ha kjøkken ville jeg enten montert osb eller konstruksjonsfiner på stender, så gips utenpå dette igjen.
Eller lagt inn spikerslag i riktig høyde mellom stenderne. Det siste krever at dere har bestemt dere for kjøkkenleverandøren og kan få høyden de må være i.
Men for å gjøre forvirringen komplett, så er det en del kjøkken i dag som leveres med overskap som monteres med en skinne-løsning, som lar deg skru i stender uavhengig av hvordan skapseksjonene havner. Da trenger man ikke tenke på spikerslag overhode.
Du kan gjerne kontraktsfeste det, men det er jo enkelt å måle arealet av et kvadratisk rom. Ville kanskje vurdert å legge seg litt over 15m2, om det er mulig.
.Thag
Skal det være mest mulig reverserbart så en skal forsøke å sette skillevegg oppå dagens gulv eller skal det tas bort under. Det er litt fare for at en kan låse fast gulvet hvis ting legges oppå men skal ting reverseres noen gang må en legge helt nytt gulv hvis det er fjernet.
Var nok litt uklar, var med tanke på spon (eller annet "ikke-gips" for å forsterke mtp. fremtidige kjøkkenskap) jeg lurte på dette med fukt.
Kjøkken er allerede montert, leiligheten er ferdig, dette er et OBOS-nybygg av ganske standard sort. Det nye her er altså de to lettveggene som skal settes opp for å utvide med et ekstra rom.
Arealet er betydelig mindre enn 15m2, det vil bare være på ca. 6m2. Men hvis jeg har forstått det riktig er det til volum det stilles krav (altså lengde*bredde*høyde), og dette er 15m3. Mtp. luft. Så det blir et lite rom, ment som hjemmekontor og gjesterom. Det viktigste er at det fyller lovens krav til å tas med som et "rom til varig opphold" (p-rom). Vindu har det heldigvis også.
Var kanskje litt uklar: m3, altså volum (lengde*bredde*høyde). Du har nok rett i at kjøkkenet vil føles betydelig mindre. Vi har sett en lignende løsning hos en nabo med samme type bolig (dette er OBOS-nybygg), og det ble greit nok.
"Husk på å lage vegg slik at en evt har noe oppheng i veggen (overskap f.eks hvis en skulle ønske dette en gang) "
Det er dette jeg er nysgjerrig på. Hva bør vi tenke på her for at et senere oppheng på veggen skal være mulig? Han som var på befaring nevnte altså spon eller noe annet på innsiden av veggen, og det var her jeg plutselig ble usikker på om fukt potensielt ville kunne være en utfordring.