125
0
0
Overta bolig, pusse opp kjeller , fjerning av bærevegg
7
0
Hei, håper alle har hatt en fin jul.
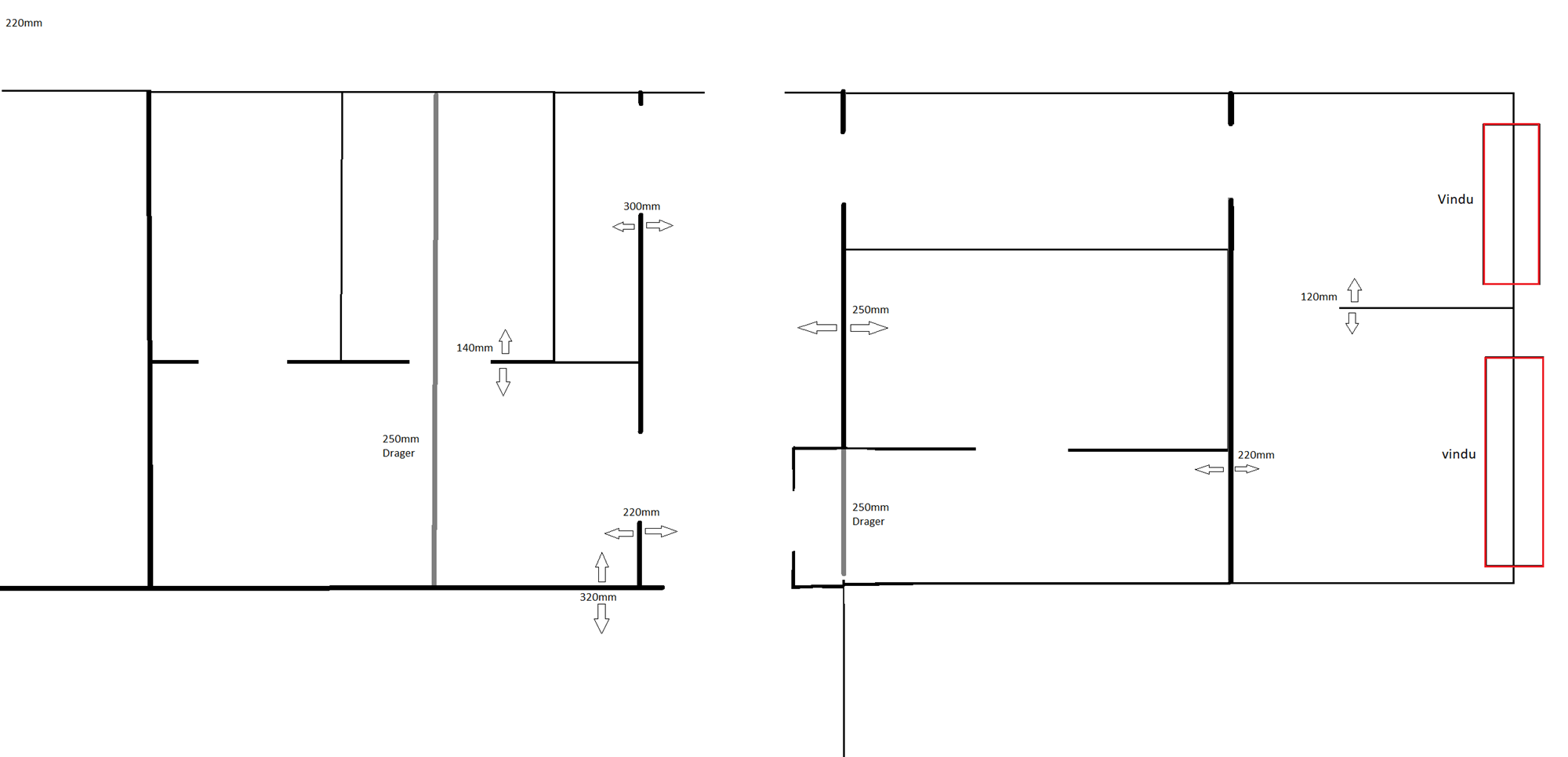
Jeg og samboer skal arve en bolig på ett plan med tilhørende kjeller,
kjelleren er på rundt 120 kvadrat å vi ønsker å gjøre om denne til en eller to leiligheter.
Nå planlegger vi litt men vi har noen vegger vi ønsker å fjerne for å åpne opp litt men usikker på hvilke av disse som er bærevegger, er det noen som kan si noe om dette utifra tegningen?
Spm 2. Det er kjeller med egen inngang, men alle vinduer er i dag typiske kjellervinduer på ca 30cm og 70cm fra toppen av vinduet og ned til bakken uten ifra.
Hvor store vinduer har man lov til å sette inn mtp konstruksjon?
regner med at det ikke lar seg gjøre å sette inn 2 stk vinduer på 140Lx90H hver seg på samme vegg?
Jeg og samboer skal arve en bolig på ett plan med tilhørende kjeller,
kjelleren er på rundt 120 kvadrat å vi ønsker å gjøre om denne til en eller to leiligheter.
Nå planlegger vi litt men vi har noen vegger vi ønsker å fjerne for å åpne opp litt men usikker på hvilke av disse som er bærevegger, er det noen som kan si noe om dette utifra tegningen?
Spm 2. Det er kjeller med egen inngang, men alle vinduer er i dag typiske kjellervinduer på ca 30cm og 70cm fra toppen av vinduet og ned til bakken uten ifra.
Hvor store vinduer har man lov til å sette inn mtp konstruksjon?
regner med at det ikke lar seg gjøre å sette inn 2 stk vinduer på 140Lx90H hver seg på samme vegg?
