3,257
3
1
Veien til et funksjonelt hus
89
0
Hei.
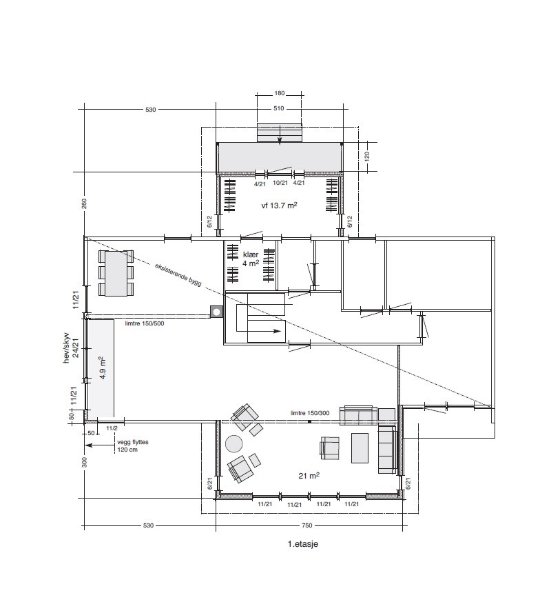
Vi har et husbankhus fra 85 som vi har fått tegnet 2 utbygg på. Har fått estimert en kostnad på 1,5 mill på alt. Da gjør vi veldig lite selv. Det blir nytt inngangsparti, gang, trapp, stue og kjøkken.
Vi synes det var veldig mye med 1,5 mill i kostnad og sitter nå å ser på hvordan vi kan få kostanden ned.
Jeg legger ut tegningene på huset vårt og vil gjerne ha tilbakemeldinger fra dere her inne om dere har noen ideer eller tips.





Vi har et husbankhus fra 85 som vi har fått tegnet 2 utbygg på. Har fått estimert en kostnad på 1,5 mill på alt. Da gjør vi veldig lite selv. Det blir nytt inngangsparti, gang, trapp, stue og kjøkken.
Vi synes det var veldig mye med 1,5 mill i kostnad og sitter nå å ser på hvordan vi kan få kostanden ned.
Jeg legger ut tegningene på huset vårt og vil gjerne ha tilbakemeldinger fra dere her inne om dere har noen ideer eller tips.







Dette gir en kvadratmeterpris på 30.000,- pr kvm.
Dette er i øvre enden av skalaen for kvadratmeterpris ved nybygg, men her går det mye ekstra tid til å tilpasse nybygget til det eksisterende, store endringer i takkonstruksjonen samt å beskytte eksisterende hus mot vær og vind i byggeperioden. Opplever ikke 1,5 mill som urimelig.
Det blir litt mye gang, faktisk 3 av dem for å komme inn, men vanskelig å fikse uten en "full redesign" av første etasje, som vel kanskje ikke er ønskelig.
Viktigste faktoren for besparelse heter nok egeninnsats
En billigere måte å bygge ut huset på ville være å forlenge det. Da kan det eksisterende huset beholdes som det er bortsett fra en vegg, takkonstruksjonen trenger ikke å endres, og hvis man bare forlenger i en retning vil man bare få en ekstra "ting" i stedet for de planlagte to. Men så spørs det om tomta tillater det, og om det kan gi en planløsning som passer.
En annen måte å bygge ut huset på er å løfte taket og legge inn en ny etasje. Det gir neppe lavere kostnader, men det gir flere kvadratmetre til en lavere kvadratmeterpris.
Jafo: Vi har fått tegnet om gangpartiet slik at man får et åpent rom i stedet for flere små rom slik det er nå på tegningen
Vi er klar over at å lage en "ark" takkonstruksjon er den dyreste når det gjelder å bygge ut stuen, men vi er veldig i tvil om det hadde blitt pent å dratt ut taket i samme vinkel slik at påbygget blir med skråtak hvis du skjønner.
Inngangspartiet er satt, det skal vi gjøre, men tenker så det knaker angående stuen. Om det er mulig å utvide den uten det store tilbygget på 21kvm. Det er innhuker som vi kaller det
KarstenBeate: Vi har 2 og 1/2 etasje så plass har vi nok av egentlig, det er bare at omtrent alle rom i huset er lange og smale. Drar vi ut huset blir det ingen endring på det
Jag skal legge ut bilder av stuen så dere får se. Man ser ikke det jeg har forklart om på tegningene