14,785    13    1  

Bærevegg eller ikke?

 121     0
Hei

Jeg har et hus over to plan med A-takstoler og fjernede hanebjelker. Takstolene har en knevegg under overgurten på hver side som strekker seg fra yttervegg til yttervegg på langsidene.  Denne kneveggen strekker seg derimot ikke over hele husets lengde i et strekk, men stopper og fortsetter ca på midten av loftet. Under denne kneveggen i 2.etg har jeg noen vegger som går paralellt.

Er disse veggene bærevegger eller er taket selvbærende?

Huset er fra 85. Har kommunen informasjon rundt dette?
Husk dette under oppussing: Lagre kvitteringer, bilder og avtaler i Boligmappa. Logg inn her

   #1
 4,452     Vestlandet     0
På husets tegninger er ofte bærevegger markert, hvertfall relativt nye tegninger som fra 85.

Taket ditt, A-takstoler, mener jeg er selvbærende. Har slike selv og jeg har ingen vegger rett under kneveggene. Jeg forstår det slik at du ikke har loft, men at undergurten er taket i etasjen under? Hvis så, så er jeg ganske sikker på at disse veggene som går parallellt med kneveggene ikke er bærevegger.

Men en tegning hadde vært fint, vanskelig å slå fast noe bare med tekst.
Signatur
   #2
 1,003     buskerud     0

På husets tegninger er ofte bærevegger markert, hvertfall relativt nye tegninger som fra 85.

Taket ditt, A-takstoler, mener jeg er selvbærende. Har slike selv og jeg har ingen vegger rett under kneveggene. Jeg forstår det slik at du ikke har loft, men at undergurten er taket i etasjen under? Hvis så, så er jeg ganske sikker på at disse veggene som går parallellt med kneveggene ikke er bærevegger.

Men en tegning hadde vært fint, vanskelig å slå fast noe bare med tekst.
A takstoler er som regel ikke selvbærende da spennet på underkurten (gulvbjelken) får et spenn som fort blir rundt 5 m
da må det nødvendig bæring under spennet er som regel maks 3.5m forat det skal fungere som en gulvbjelke,det står at hanebjelken er fjernet ,hvis det tilfelle så er ikke takstolen fungerende lenger
   #3
 25,738     Akershus     0
Beskrivelsen til TS er ikke utfyllende. Her trenges det en skisse.

At hanebjelken er fjernet høres ikke bra ut. Da kan det "dette ned"!

Knevegg er også uklart her. Isolert sett bærer den ikke noe som helt. Hva er under?

Kort sagt - hva er det en spør om her?
Signatur
   #5
 4,452     Vestlandet     0


På husets tegninger er ofte bærevegger markert, hvertfall relativt nye tegninger som fra 85.

Taket ditt, A-takstoler, mener jeg er selvbærende. Har slike selv og jeg har ingen vegger rett under kneveggene. Jeg forstår det slik at du ikke har loft, men at undergurten er taket i etasjen under? Hvis så, så er jeg ganske sikker på at disse veggene som går parallellt med kneveggene ikke er bærevegger.

Men en tegning hadde vært fint, vanskelig å slå fast noe bare med tekst.
A takstoler er som regel ikke selvbærende da spennet på underkurten (gulvbjelken) får et spenn som fort blir rundt 5 m
da må det nødvendig bæring under spennet er som regel maks 3.5m forat det skal fungere som en gulvbjelke,det står at hanebjelken er fjernet ,hvis det tilfelle så er ikke takstolen fungerende lenger


Ser ut som du er inne på noe tømrerbob, sjekket litt rundt. http://norsktre.no/v_re_produkter/takstoler/grunntyper_takstoler/ f.eks.
Signatur
  (trådstarter)
   #6
 121     0
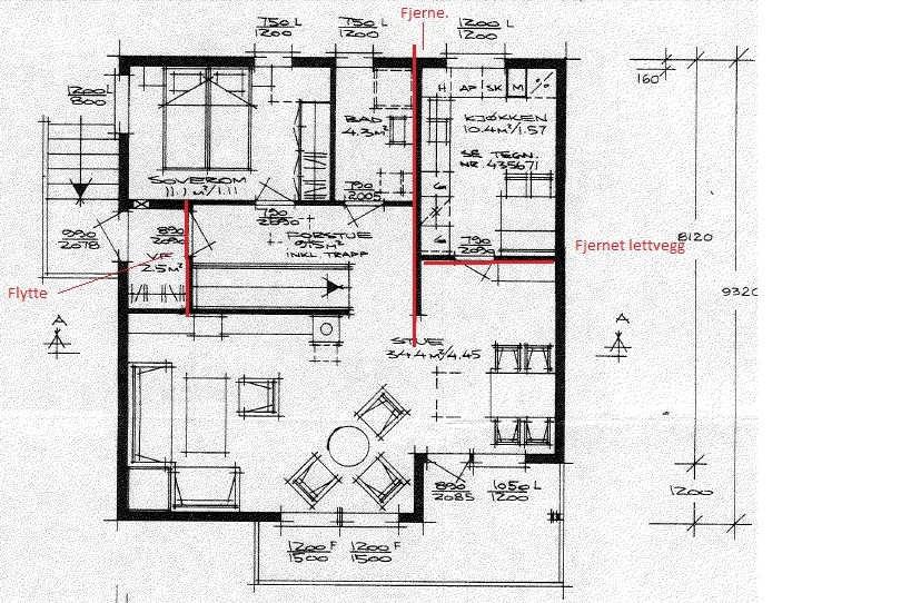
Her er tegningene til huset. Skal kanskje flytte veggen i gangen også hvis ikke det er for mye jobb. Den skal settes helt intill rekkverket på enden da det er 1kvm med ubrukelig plass mellom enden av rekkverk og vegg. Det er ikke helt som på plantegningen.

Ellers skal hele veggen på kjøkkenet fjernes.
Bærevegg eller ikke? - Snitt av bolig.jpg - Opppuss
Bærevegg eller ikke? - Kjeller.png - Opppuss
Bærevegg eller ikke? - 1.etg riktig.jpg - Opppuss

  (trådstarter)
   #8
 121     0

Beskrivelsen til TS er ikke utfyllende. Her trenges det en skisse.

At hanebjelken er fjernet høres ikke bra ut. Da kan det "dette ned"!

Knevegg er også uklart her. Isolert sett bærer den ikke noe som helt. Hva er under?

Kort sagt - hva er det en spør om her?


Har stått i over 30 år så det er nok ingen fare =) .. Planen er som beskrevet i tegningene vedlagt
   #9
 25,738     Akershus     0
Vil foreslå at du får beregenet det taket på nytt uten hanebjelke (hvor var den) og utn bæring under.

Forøvirg ville jeg beholdt muligheten for å kunne stenge av kjøkken fra resten av stua, men hver sin smak. 
Signatur
  (trådstarter)
   #10
 121     1
Bare glem dette med hanebjelke. Jeg skulle ikke nevt det da det ikke er relatert til spm. Min feil.  Selve spørsmålet mitt er om de veggene som er markert med rødt er bærevegger slik det er fremstillt på plantegningen! Og ja jeg har et råloft. Undergurt er taket i 1.etg