2,283
4
0
Bjelkedimensjon på søyler for hytte
3
0
Hei,
Vi skal bygge Jabo Flex 25 kvadrats hytte, men er litt usikker på dimensjonering på bjelkelag i bunn. Problemet er at vi ikke skal bygge denne på flat mark/grus som plantegningene foreslår, med 24 leca/konstuksjons-blokker. Vi skal bygge hytten i kupert terreng, der vi har gravd ned til berg og laget betongsøyler. Hytten er ca. 5.56 meter x 4.34 meter. Foreløpig har vi satt opp 6 stk. søyler, dvs. 2 på kortsiden x 3 på langsiden.
Så til spørsmålene:
1) Vil dette holde for hytten, dersom vi f.eks legger 3x8'' (spenn blir da 4.34 meter og 2.28 meter)? Kan vi deretter legge nytt bjelkelag oppå (f.eks 2x4'', 4 stk. i lenderetning) slik at alle "støttepunktene" i vedlagt plantegning fra produsenten Jabo er ivaretatt?
2) Jeg ser egentlig for meg å lage noen ekstra støtter, under sees de eksisterende (O) og de 4 ekstra støttene jeg planlegger å lage (X). Vil dette være nødvendig kanskje?
<-4.34m->
O X O ^
|
5.56 m
O X X O |
|
|
O X O v
3) Hva med sideavstivning, vil dette bli noe problem? De eksisterende søylene består av 4 støpte søyler (25 cm diameter) med armeringsjern. De er ca. 40cm under bakken (fylt igjen med pukk) og ca. 30 cm over bakken. De to siste søylene er av konstuksjonsblokker på plant underlag, jeg ser for meg disse hjelper bedre med sideavstivning.
Alle innspill mottas med takk!
Vi skal bygge Jabo Flex 25 kvadrats hytte, men er litt usikker på dimensjonering på bjelkelag i bunn. Problemet er at vi ikke skal bygge denne på flat mark/grus som plantegningene foreslår, med 24 leca/konstuksjons-blokker. Vi skal bygge hytten i kupert terreng, der vi har gravd ned til berg og laget betongsøyler. Hytten er ca. 5.56 meter x 4.34 meter. Foreløpig har vi satt opp 6 stk. søyler, dvs. 2 på kortsiden x 3 på langsiden.
Så til spørsmålene:
1) Vil dette holde for hytten, dersom vi f.eks legger 3x8'' (spenn blir da 4.34 meter og 2.28 meter)? Kan vi deretter legge nytt bjelkelag oppå (f.eks 2x4'', 4 stk. i lenderetning) slik at alle "støttepunktene" i vedlagt plantegning fra produsenten Jabo er ivaretatt?
2) Jeg ser egentlig for meg å lage noen ekstra støtter, under sees de eksisterende (O) og de 4 ekstra støttene jeg planlegger å lage (X). Vil dette være nødvendig kanskje?
<-4.34m->
O X O ^
|
5.56 m
O X X O |
|
|
O X O v
3) Hva med sideavstivning, vil dette bli noe problem? De eksisterende søylene består av 4 støpte søyler (25 cm diameter) med armeringsjern. De er ca. 40cm under bakken (fylt igjen med pukk) og ca. 30 cm over bakken. De to siste søylene er av konstuksjonsblokker på plant underlag, jeg ser for meg disse hjelper bedre med sideavstivning.
Alle innspill mottas med takk!

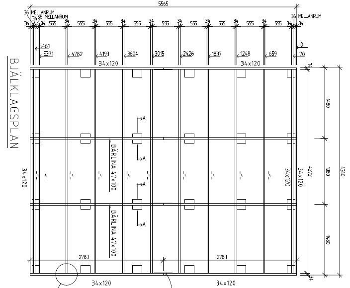
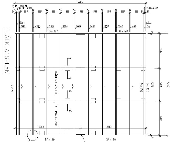
Dvs at gulvet er selvbærende gitt understøttelse i disse punktene.
Ville kontaktet leverandøren.
Her, litt ned vises konstruksjonen: http://www.jabo.no/media/1574285/150407%20Flex%2025%20N.pdf
Fabrikanten anbefaler fire rader med understøttelse, alle i lengderetningen. Det tilsier at fire dragere burde kunne gjøre susen.
Ad dimensjon vet jeg ikke.
Til info, stuegulvet her er over en spennvidde på ca 4,25m 3*9 cc 40