2,005
2
0
Er det en lettvegg?
3
0
Har akkurat overtatt en leilighet og ønsker å modernisere kjøkkenet. I den sammenheng lurer jeg veldig på om en vegg er lett eller bærende.
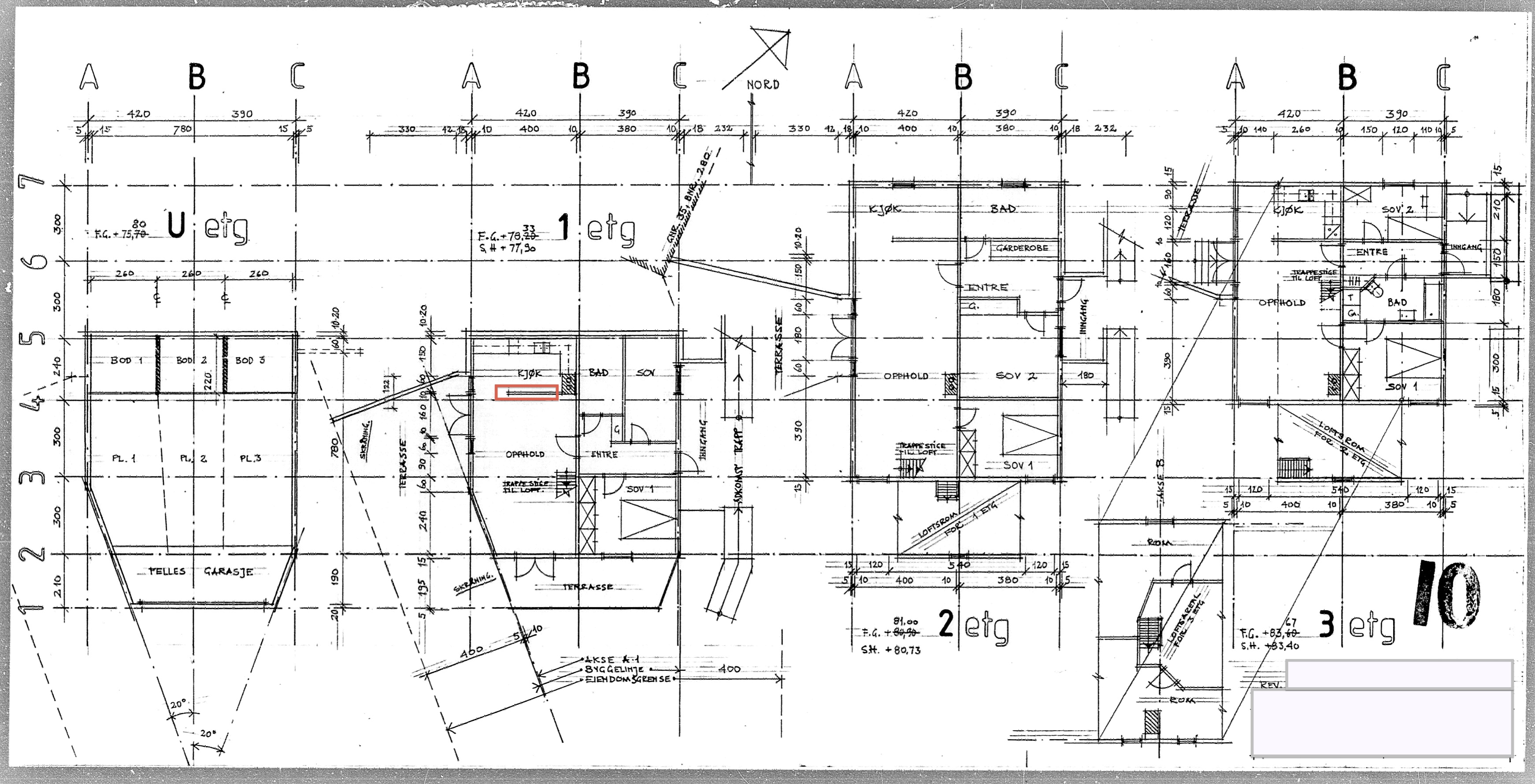
Veggen er 10,5 cm tykk kledd med gips, det er litt over en meter mellom stenderene. Ut i fra hva jeg kan se på tegningene er det ingen tilsvarende vegg i rett over. Under, i garagen, er det heller ikke noen tilsvarende vegg. Ut i fra hva jeg har undersøkt er det kun en ledning i rør som går i veggen.
Huset er bygget i 91/92.
Veggen er i etg 1., markert i rødt.
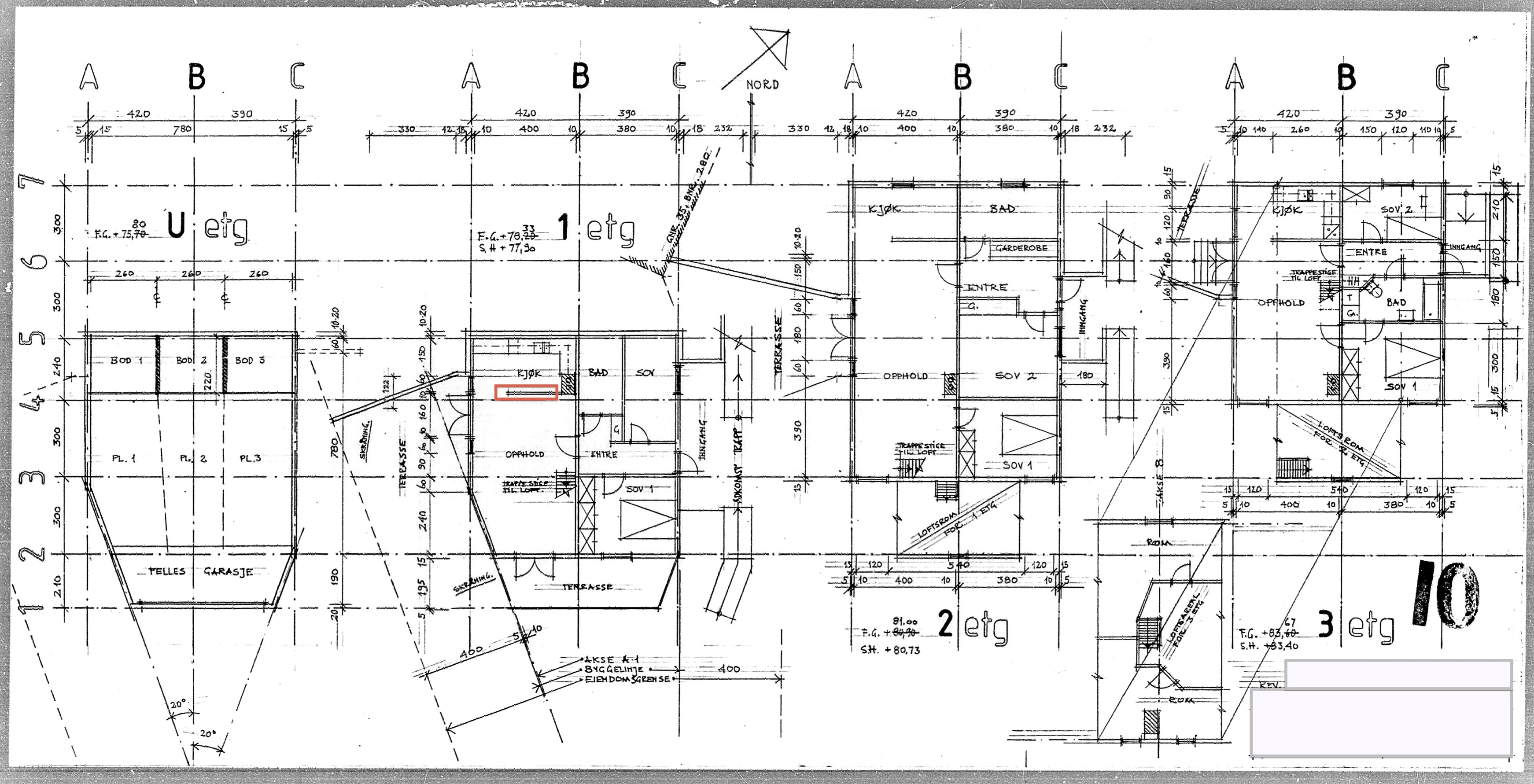
Veggen er 10,5 cm tykk kledd med gips, det er litt over en meter mellom stenderene. Ut i fra hva jeg kan se på tegningene er det ingen tilsvarende vegg i rett over. Under, i garagen, er det heller ikke noen tilsvarende vegg. Ut i fra hva jeg har undersøkt er det kun en ledning i rør som går i veggen.
Huset er bygget i 91/92.
Veggen er i etg 1., markert i rødt.
bolig
241
0
Det ser definitivt ut som en delevegg/lettvegg.
chefsteen
148
Sør Trøndelag
0
lettvegg
