696    3    1  

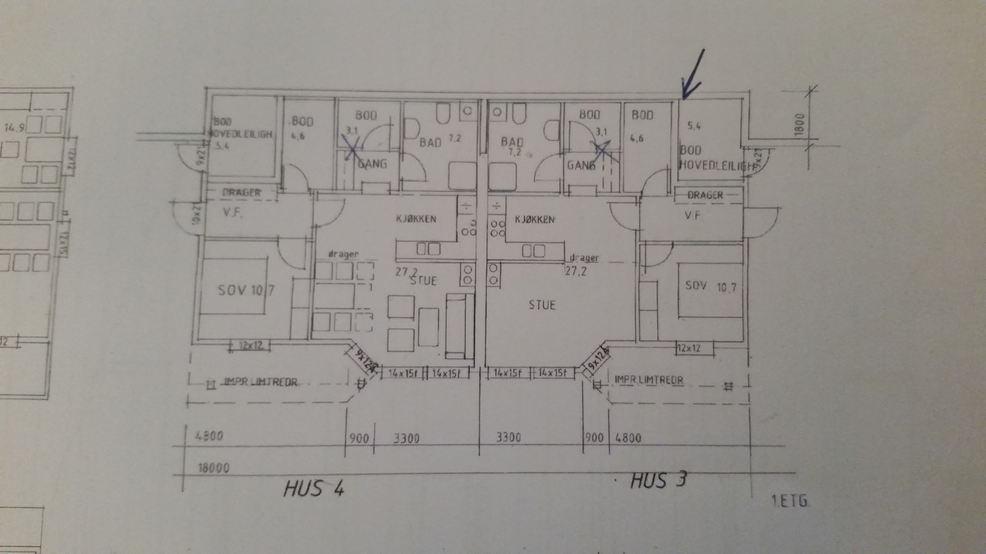
Er dette en bære vegg. ?

 1     0
Er en bod på 5,4kvm rommet ved siden av er 4,6 kvm 
Noen som vet dette :) 
Er dette en bære vegg. ? - 1438991350596.jpg - RonnyH
Er dette en bære vegg. ? - 1438991393263.jpg - RonnyH
Husk dette under oppussing: Lagre kvitteringer, bilder og avtaler i Boligmappa. Logg inn her

   #1
 277     Hjemme     1
Veldig usannsynlig, hvis du ser etter så går det en drager på tvers av den veggen. Her vil nok bjelkelaget ligge samme vei som din vegg.

Ellers som alltid når det gjelder sånn med bæring osv. så ta med deg en kyndig på plassen for å verifisere.
   #2
 5,111     Sørnorge     0
Er det saltak vil nesten alltid alle bærevegger gå parallelt med mønet. Tegningen har et element merket "drager" rett under pilen som går i husets lengderetning. Det er en tydelig indikasjon på at bærende konstruksjon ligger i samme retning og veggen drageren er en forlengelse av er bærende. Vegger som går på tvers av disse er sjelden bærende. At veggen du peker på er så nær yttervegg gjør det enda mindre sannsynlig at den er et av unntakene fra regelen.
   #3
 3,083     Gol     0
Stemmer nok det at dette ikke er en bærevegg.
Har huset w-takstoler?
Signatur