6,250
6
1
Flatt tak med terrasse over varmt rom
63
0
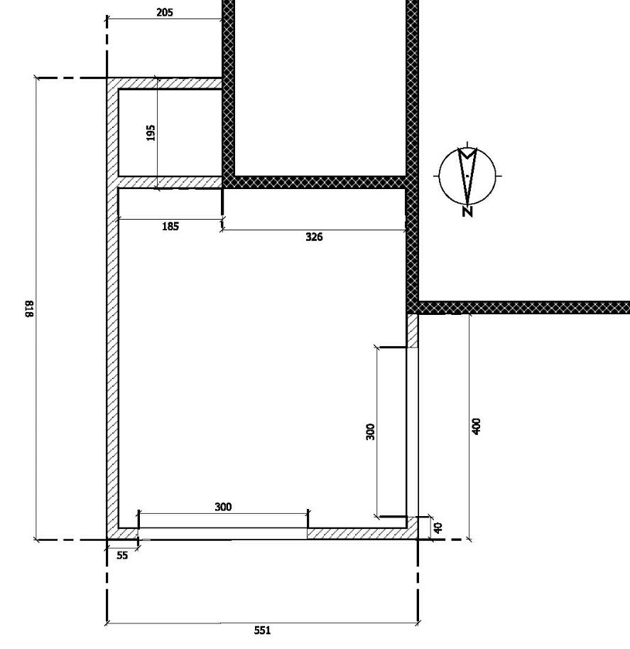
Hei.
Håper noen kan være behjelpelig med sine synspunkt i forhold til takkonstruksjon for flatt tak med terrasse over varmt oppholdsrom. Det gjelder tilbygg inn mot eksisterned bygg.
Under er plantegning og bilde som viser hvor tilbygg skal stå i forhold til eksisterende konstruksjon.
I plantegningen er eksisterende vegger i sort farge, og det planlagte bygget har vegger i lys farge.
Dersom man sammenligner plantegning med bilde, er innvendig hjørne ved garasjeport tilsvarende innvendig hjørne like ved kompassrose i plantegningen.
Garasjen som er innenfor porten skal konverteres til oppholdsrom og vil sammen med det planlagte tilbygget bli til et stort rom.
Til venstre i plantegning der man kan se et mindre rom, er dette tenkt som en utebod der tak blir en del av terrassen som er tenkt over hele tilbygget.
Tanken er at vegg som skiller bod fra oppholdsrom skal konstrueres som bærende. (Bør man i tilfelle ha ringmur under denne veggen?)
Også, som man kan se av plantegning, skal det settes inn to like skyvedører på 3 meters bredde og 2,2 meters høyde. En på side mot nord, og en på side mot vest. (Se kompass rose i tegning)
Jeg har imidlertid en begrensning i forhold til takhøyde. Som bildet viser, er dør for terrasse allerede montert, samt at det ideelt sett ønskes minst mulig «steg» ned fra eksisterende bygg i samme etasje som tilbygg som kommer.
I utgangspunktet er jeg begrenset til en høyde som inkluderer takbjelker, isolasjon, taktro, tekking, terrassebord og annet, tilsvarende 40cm.
Så, noen med gode tips her?
På forhånd takk for alle tilbakemeldinger.

Håper noen kan være behjelpelig med sine synspunkt i forhold til takkonstruksjon for flatt tak med terrasse over varmt oppholdsrom. Det gjelder tilbygg inn mot eksisterned bygg.
Under er plantegning og bilde som viser hvor tilbygg skal stå i forhold til eksisterende konstruksjon.
I plantegningen er eksisterende vegger i sort farge, og det planlagte bygget har vegger i lys farge.
Dersom man sammenligner plantegning med bilde, er innvendig hjørne ved garasjeport tilsvarende innvendig hjørne like ved kompassrose i plantegningen.
Garasjen som er innenfor porten skal konverteres til oppholdsrom og vil sammen med det planlagte tilbygget bli til et stort rom.
Til venstre i plantegning der man kan se et mindre rom, er dette tenkt som en utebod der tak blir en del av terrassen som er tenkt over hele tilbygget.
Tanken er at vegg som skiller bod fra oppholdsrom skal konstrueres som bærende. (Bør man i tilfelle ha ringmur under denne veggen?)
Også, som man kan se av plantegning, skal det settes inn to like skyvedører på 3 meters bredde og 2,2 meters høyde. En på side mot nord, og en på side mot vest. (Se kompass rose i tegning)
Jeg har imidlertid en begrensning i forhold til takhøyde. Som bildet viser, er dør for terrasse allerede montert, samt at det ideelt sett ønskes minst mulig «steg» ned fra eksisterende bygg i samme etasje som tilbygg som kommer.
I utgangspunktet er jeg begrenset til en høyde som inkluderer takbjelker, isolasjon, taktro, tekking, terrassebord og annet, tilsvarende 40cm.
Så, noen med gode tips her?
På forhånd takk for alle tilbakemeldinger.

Selv om de primært beskriver dette på den svenske siden har de levert dette til også norske byggeplasser.
Du trenger mye isolasjon noe som byggforsk får til ved å øke etasjehøyden. Siden det ikke viker som en løsning må du gjøre noe lurt. Jeg ville valgt løsningen over. De kan lagre selvbærende tak på veldig store lengder.
Da har du 10cm (hvis du isolerer 30) å få det til å gå opp, max 22mm plater, 3-4ish mm til membran (husker ikke helt tykkelsen) 28mm går til terrasse dekke. Da har du 45mm igjen til lekter med fall og tilfarere til terrasse dekke, er litt for lite, absolutte minimum du bør ha av lufting under platene er 20mm åpning, da får du bare 25mm høyde forskjell på dekke som er 5.5meter som igjen tilsier at du bær egentlig har litt mer lufting og mer fall å gå på, så hvis du får stjelt 2cm til så får du en løsning som er sikker. Jeg antrenger meg som regel til å ha 70mm totalt tykkelse tilsammen for både luftelekter og terrasse tilfarerne (di kappes med motsatt fall) på terrasser som er rundt 5m i sperre retningen. Da får jeg nok lufting og slipper å tenke på punktering av membran når jeg skrur (bruk kortere terrasse skruet på innerste bordene kan hjelpe).
Ble litt mye..håper tanketåka mi er forståelig
Har grublet på dette i "snart 2 år" og har vært innom flere løsninger.
TRP kan fungere men pga nyttelasten så blir nedbøyningen for stor.
K-stender - Da pakker man inn organisk materiale i tilnærmet diffusjonstett miljø
Jeg avsto tidlig fra løsningen med vanlige dragere.. pga byggforsk ikke har noen gode retningslinjer på denne løsningen.
Svar på K-stender eller heltre bjelker, er derfor undertaksduken er der, for å lufte ut.
Bjelker, diff åpen undertaks duk, luftelekter med fall, plater, membran, tilfarere med motsatt fall, terrasse bord. Er membran utført riktig, så er det like sikkert som et kompakt tak. Oppgradere duken fra en vanlig åpen vindsperre til undertaksduk er kun for å sikre mot om det på et eller annet vis skulle komme noen dråper som ikke tørket raskt.