2,382
10
0
Fore ut eller sette opp innvendig vegg?
53
0
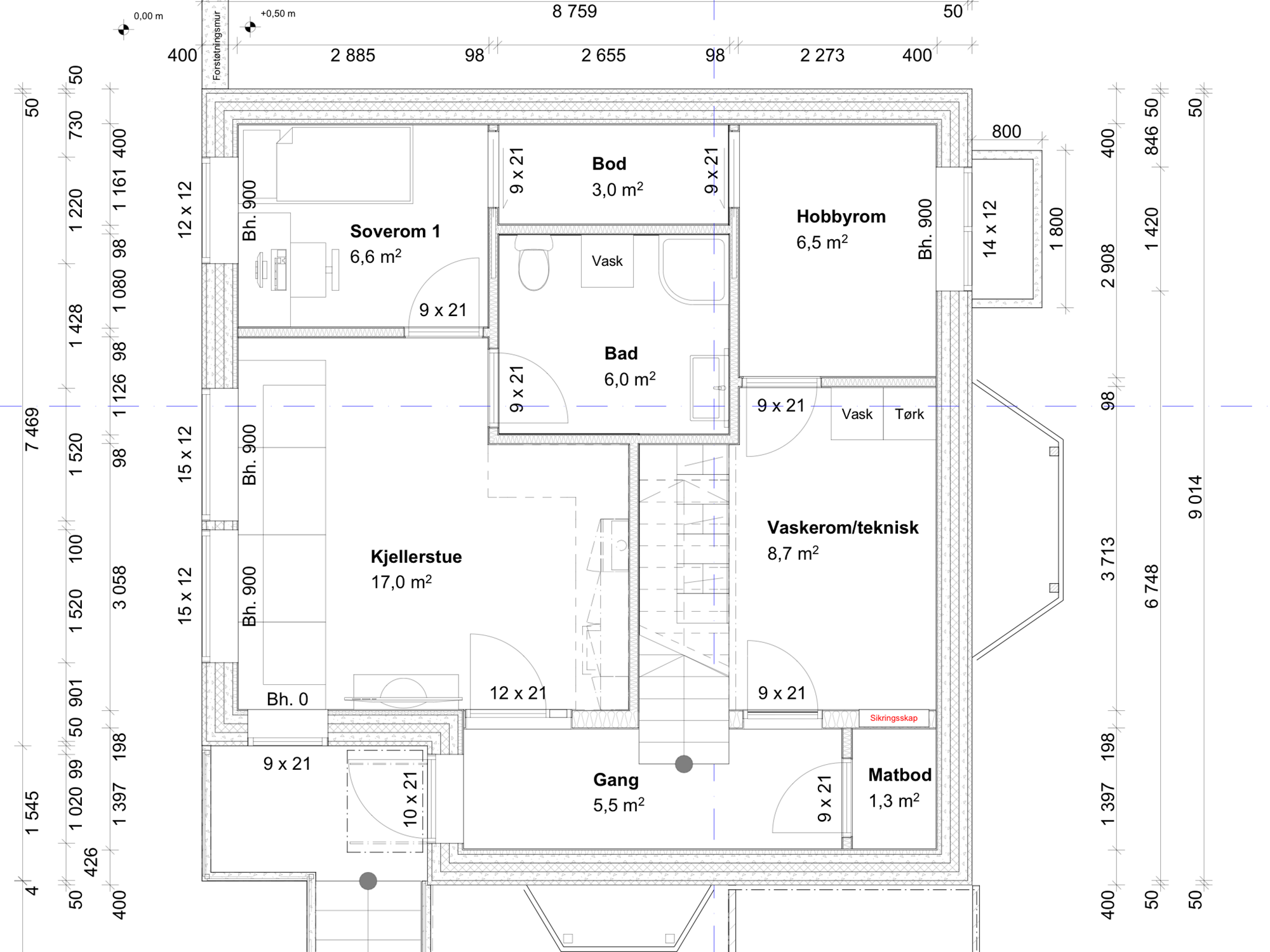
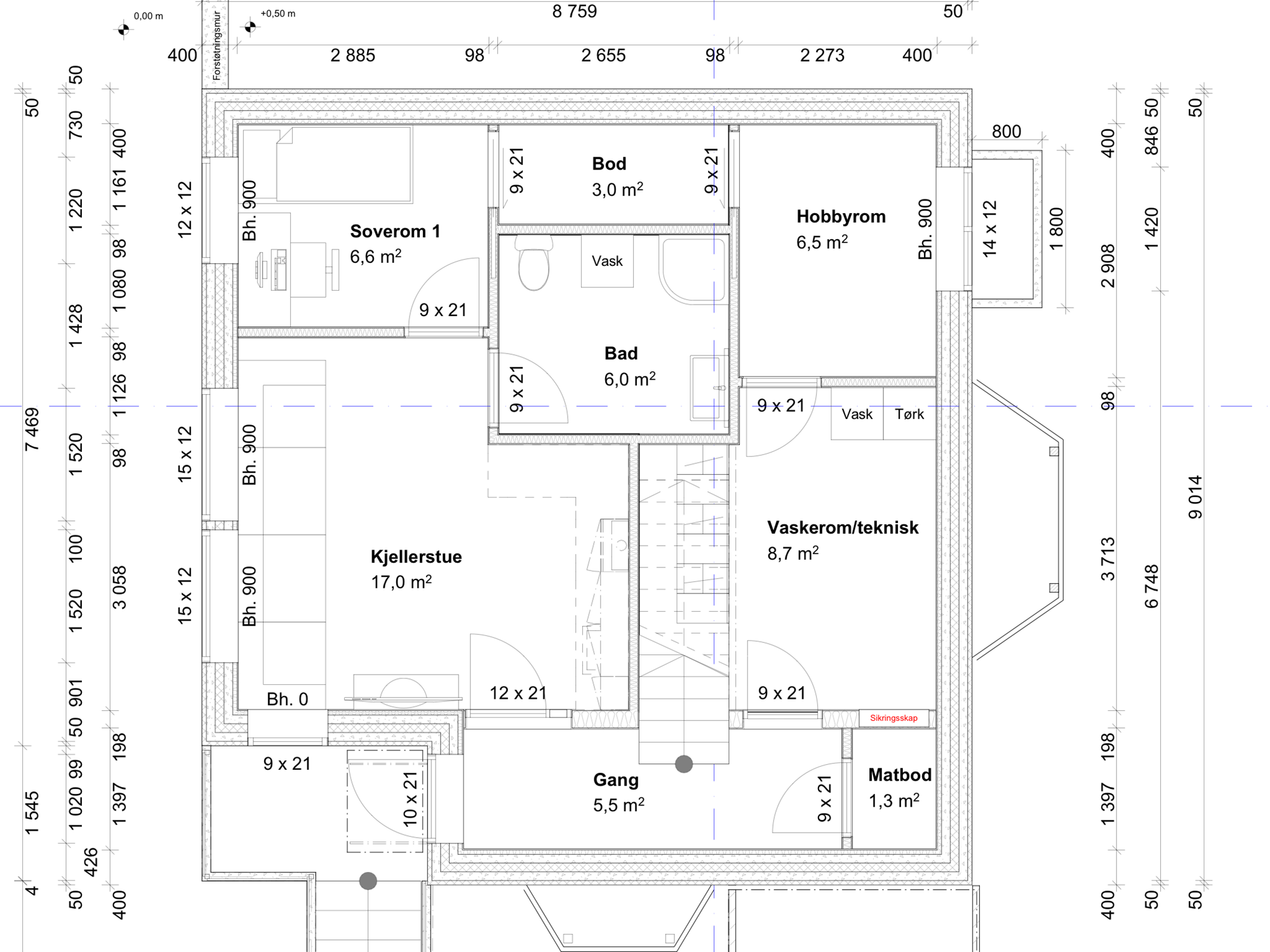
Tømrer går i gang og skal innrede kjeller neste uke. Kjelleren består av kjerneisolert betong, og opprinnelig var planen å fore ut med 5 cm (2-toms?) og isolere / legge teknisk pluss gipse. Nå har tømrerfirma foreslått å sette opp innvendig vegg (3-toms?) med i stedet for å fore ut. Dette fordi de mener de vil være mye mer effektivt i forhold til å bore i betong, samt å få det rett. Det betyr litt mer materiale pluss kanskje 3 cm (?) mindre areal. Hva anbefaler dere? Vil 3 cm føles mindre i de aktuelle rommene eller utgjør det i praksis ingenting? Vil tiden bespart på denne måten gjøre dette til en mer kosteffektiv løsning tross mer material? Håper noen kan dele sine erfaringer og tanker rundt dette
-Dersom det er kun arbeidsmengde det står på kan man vel sette opp en 2" vegg med en enkelt forankring mot mur?
man fester en bunnsvill og en toppsvill, og midt på veggen kan en vinkel borres fast i muren og skrues fast i 2"'en.
mister minst mulig av rommet, og det er enkelt og greit
Utlektinga må være noe fra betongveggen uansett, så det vil ikke bli mye forskjell på løsningene.
Merk info fra Byggforsk at kjellerveggene må være tørre.
Samlet litt på nettet her