4,532
5
0
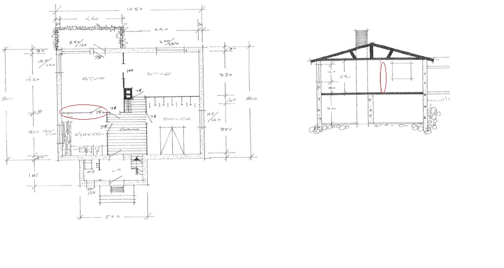
Kan denne veggen rives? Se tegning
28
Trondheim
0
Hei! Kan veggen vist med rødt på tegningen rives - for å åpne opp mellom kjøkken og stue? Det ser ikke ut som en bærevegg for meg - men vil gjerne dobbeltsjekke. Vurderer å kjøpe huset og greitt å vite litt om hvilken muligheter her er :)
På forhånd takk for svar!
På forhånd takk for svar!

Ser litt pussige ut. Vanligvis er taksoler utformet med en "W" inne på loftet slik at det dannes trekanter i bæringen. Takvinkelen synes også noe flat.
Ellers så ser det ut til at veggen din ikke har bærevegg under og takstolen har ikke noen stav som møter toppen på veggen.
Jeg antar derfor som andre her, at dette er en selvbærende takstol over 8m.
Takk for hjelpen!