7,219    11    0  

Kan jeg fjerne denne veggen?

 121     0
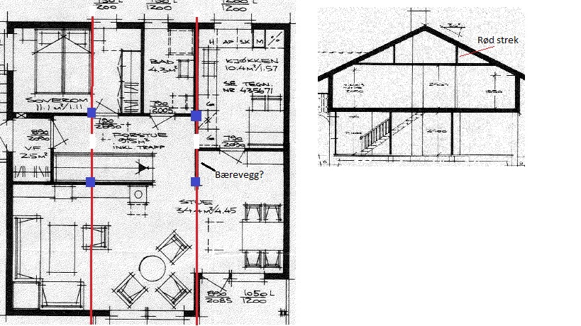
Driver å pusser opp i rommet merket med forstue på tegning. Jeg har åpnet alle veggene å ser at det er satt opp fire støtter.  Det er de blå firkantene jeg har tegnet inn på tegningen og er 3stk 2"4 med en stålplate på toppen som støtter opp de to kneveggene på loftet merket med rødt.
Kneveggene på loftet går fra gavlvegg til gavlvegg men har et opphold på ca 20cm på midten av loftet som jeg har tegnet på tegningen. (bjelkelaget går på kryss av dette gjen)

Jeg mener jeg da kan fjerne eller lage en stor åpning i veggen merket med bærevegg uten at dette skal ha noen betydning. sålenge jeg ikke fjerner støtta på enden av veggen. Det er jo ingen slik vegg på den andre kneveggen? Grunnen til at jeg er litt i tvil er at kneveggen ikke går i et strekk, men er delt på midten akkurat der jeg vil lage en åpning/fjerne

Kan noen bekrefte dette så jeg er 100% sikker?  ;D
Kan jeg fjerne denne veggen? - www.jpg - Opppuss
Husk dette under oppussing: Lagre kvitteringer, bilder og avtaler i Boligmappa. Logg inn her

   #2
 25,754     Akershus     0
Så langt jeg kan se så er det ingen understøttelse på motsatt side over gang/trapp?
Dersom knevegg etc er likt for de to sidene på loftet ser det for meg ut til at du kan rive iveg.
Signatur
  (trådstarter)
   #3
 121     0
Nei det er ingen understøttelse på den andre kneveggen bortsett fra de stolpene, men veggen jeg skal fjerne gir jo indirekte støtte på den andre kneveggen også da den ligger under taksperrene. taksperrene igjen ligger jo under kneveggen. det er 3-4 meter fra knevegg til knevegg.

men jeg er rimelig sikker på at taket holder hvis jeg fjerner den. De 4 støttene knekker jo  med det første=)
   #4
 6,515     tromsø     0
Hva med noen bilder. Det inneholder mer data en noen skisser Smile
   #5
 4     0
Mest sansynlig så ligger det en drager fra gavel til gavel som er opplagret på søylepunktene. Dette antageligvis en ståldrager siden det er stål på toppen av søylene. Du kan jo se om du ser drageren underifra eller fra loftet. Hvis den er der så er det ingen fare å rive veggen.
Det eneste du må tenke på er at når du river veggen mot søylen så må du sjekke at søylen er godt festet i topp og bunn slik at den ikke flytter på seg når den plutsellig blir stående uten en vegg å "støtte seg på".
  (trådstarter)
   #6
 121     0
Her er den ene kneveggen på loftet rett over den 2 meter lange veggen jeg skal fjerne/åpne som jeg merket på plantegningen.

Jeg skal da fjerne veggen mellom støttene ( se bilde )

Legg merke til den lille glippa på kneveggen.
Kan jeg fjerne denne veggen? - bilde.jpg - Opppuss
  (trådstarter)
   #7
 121     0

Mest sansynlig så ligger det en drager fra gavel til gavel som er opplagret på søylepunktene. Dette antageligvis en ståldrager siden det er stål på toppen av søylene. Du kan jo se om du ser drageren underifra eller fra loftet. Hvis den er der så er det ingen fare å rive veggen.
Det eneste du må tenke på er at når du river veggen mot søylen så må du sjekke at søylen er godt festet i topp og bunn slik at den ikke flytter på seg når den plutsellig blir stående uten en vegg å "støtte seg på".


Ingen ståldrager ( se bilde )

Men du har rett i at støtta på enden av veggen ikke er forankret. Må få festet den på en måte=)

   #8
 25,754     Akershus     0
Kneveggen din er egentlig en fagverksdrager - 70cm høy "H-bjelke". En ser tydelig spikerplatene. Skråstreberne her må ikke fjernes!

Årsaken til glippa på midten er at en har valgt å lage denne lange drageren i to deler. En har lagt inn litt slingringsmon for unøyaktighet i lengden av huset. Det er mao et lite "oveheng" mellom bærestolpen dine.

Jeg mener du trygt kan fjerne alt av innervegger overalt bortsett fra bærestolpene og gavleveggen, gitt at stolpene er forankret slik at de ikke kan flytte seg.
Signatur
   #9
 6,515     tromsø     0
Vil det ikke hjelpe å bolte fast fagverk dragerne i hverandre med en overlapende 12 mm skrysfinerplate. Da vil ikke en av dem kunne falle. Ekstra sikkerhet.. Smile
   #10
 39,535     Lillestrøm kommune     0
Gitterbjelkene blir også stivere ved at de faktisk går ut over enden av hver støtte. Det er derfor ikke en fordel og skjøte oppå støtter med slike konstruksjoner.  Vær obs hvis veggene avistiver konstruksjonen sideveis.  I så fall bør du være sikker på at dette er erstattes av andre skråavstivere.