2,598
3
0
Ny terrasse - hjelp og synspunkter
431
0
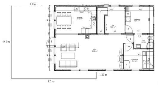
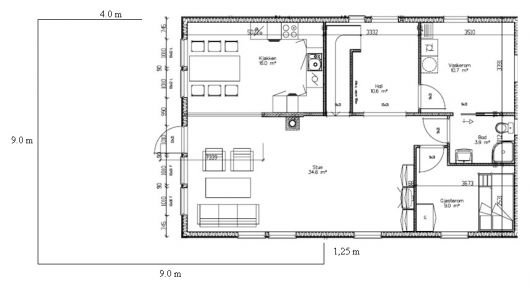
Vi skal bygge en terrasse omtrent som på bildet. Den blir på totalt ca 42-43 m2. Det er skrå tomt, slik at den ligger delvis på mark ved kjøkken, og har en full etasje høyde over bakken rundt stuen.
1. Noen som vet hvor jeg kan finne en prinsippskisse for en lignende terrasse?
2. Noen som har synspunkter på utseende o.l.? Dette er et nytt hus, og tomten er ikke ferdig, så planen er å bygge denne terrassen "foreløpig", og sannsynligvis bygge videre i rundt ved kjøkkenet (øverst på tegningen).
Takk for hjelp!
1. Noen som vet hvor jeg kan finne en prinsippskisse for en lignende terrasse?
2. Noen som har synspunkter på utseende o.l.? Dette er et nytt hus, og tomten er ikke ferdig, så planen er å bygge denne terrassen "foreløpig", og sannsynligvis bygge videre i rundt ved kjøkkenet (øverst på tegningen).
Takk for hjelp!

Hvis hele arealet til venstre kommer "2,40" over bakkenivå tror jeg det blir seende litt stort ut, og ville lagt mer av arealet der du har bakke under.
Ellers så bør du vurdere å sette opp en levegg (f.eks bare heve rekkverket til verandaen et stykke) et sted slik at du får en lun solkrok.
Ville tegnet, tilført terrassen på noen fasadebilder for å få ett innrykk av utseendet.
Om tomten skrår slik at man ser huset fra "nedsiden" så vil en terrasse fort dominere totalt hvis du strekker den noe særlig foran huset. Terrassen dekker selve huset/veggen og man ser front og bunn av terrassen fremfor selve huset og fasaden.
I en annen tråd her ble det vist eksempler på terrasse og bruk av kontrastfarger og et før/etter tilfelle som illustrerer godt hva fargevalg kan bety.
Selv ville jeg brukt tid på ulike skisser med ulike løsninger.
Kortveggen på huset ligger mot sør, og det er morgen- og kveldssol.
Jeg tipper 2/3 av arealet kommer godt over bakkenivå. Det skrår, slik at kun kanskje 1/3 har høyde rundt 2 meter, og resten går gradvis ned mot bakkenivå. Vi har sett en tegning der terrassen var 3 meter ut i begge retninger. Denne så fin ut, men var litt stor. Dessuten er det mest hensiktsmessig å ha mest sol mot sør.