7,154
11
0
Retning på bjelkelag
104
0
Er det vanlig å skifte retning på bjelkelagene i gulv etter fasongen på muren? Alle eksemplene jeg ser på nett så går alle bjelker i samme retning.
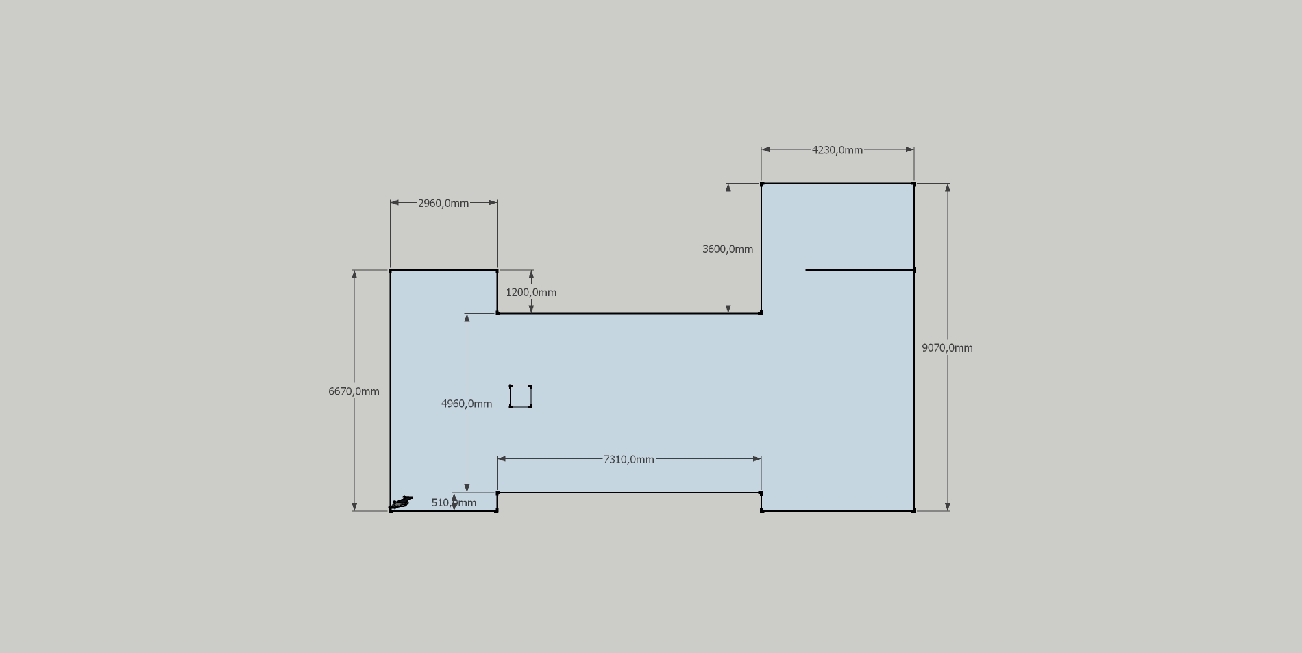
Se vedlegg, er det naturlig med liggende, stående, liggende i mitt tilfelle?
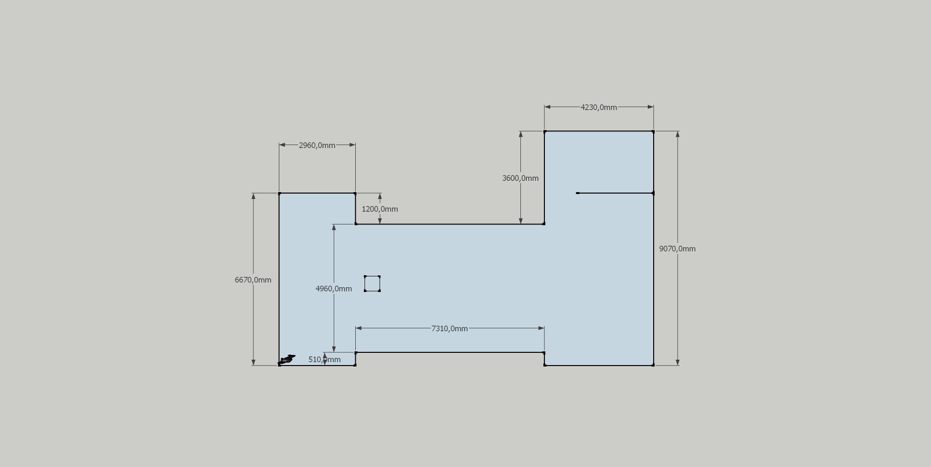
Se vedlegg, er det naturlig med liggende, stående, liggende i mitt tilfelle?

Kommer jeg til å finne en eller flere ståldragere under eksisterende gulv når jeg begynner å rive?
Jeg har kikket under gulv, men kan ikke se noe pga isolasjon. Men det er vel en umulighet at de har bygget det gamle gulvet uten dragere under.
Skal skiftes på grunn av skade på gammelt gulv. Finner jo selvsagt detaljene når jeg begynner å rive og vil bygge det likt det gamle, men er litt nysgjerrig.
Du har kanskje ikke sett alle eksemplene på nett ennå?
Når jeg ser etter eksempler på nett, finner jeg med en gang eksempler på gulv lagt med varierende retning på bjelkelaget. Som dette Google-søket etter bilder av retning på bjelkelag (på engelsk):
http://www.google.co.uk/search?hl=en&q=joist%20direction&um=1&ie=UTF-8&tbm=isch
Har lest tømrerteoriboka om bjelkelag, men der er huset et flott rektangel, og det har de andre eksemplene jeg har sett vært også.
Mja, kanskje er det juks, men søket ble gjort i god mening, så jeg synes vi får la det gå :-)
Norskspråklige personer utgjør under en promille av verdens befolkning, og kanskje en prosent av den industrialiserte delen av befolkning, så det meste av innholdet på nett er på andre språk enn norsk...
Google Translate er brukbar til mange typer "juks"
Hvordan regner jeg i så fall på lengde mellom søyler?
Og er det ok å feste bjelkelaget med bjelkesko i dragerne, eller må de hvile oppå og med overlapp til andre siden?
Lekte litt med dynamiske modeller i Sketchup. Nokså greit program, men jeg antar at dette kommer helt automatisk hos en forhandler?
Kommentarer?