9,693
10
0
Noen småting med legging av rør i betong..
330
0
Vannbåren varme i garasje og leilighet over.
Både garasjegulv og etasjeskille blir i betong, og jeg legger også rørene i betong.
Samlestokken blir stående i garasjen.
Det jeg lurer på:
1) Tenkte å dele inn stue/kjøkken/gang i 3 sløyfer, med felles termostat, hvordan utføres dette? Skal alle sløyfene gå ned til stokken?
2) Tenkte å ha 20 mm rør og cc 30 i garasjen, det må vel være greit?
3) Hva slags leggemønster bør jeg velge oppe da jeg vil ha det litt tettere enn cc 30, spesielt på bad!?
4) Lurte på å ha 20mm rør overalt, men det er vel kanskje vanskelig å legge det tett da eller?
Både garasjegulv og etasjeskille blir i betong, og jeg legger også rørene i betong.
Samlestokken blir stående i garasjen.
Det jeg lurer på:
1) Tenkte å dele inn stue/kjøkken/gang i 3 sløyfer, med felles termostat, hvordan utføres dette? Skal alle sløyfene gå ned til stokken?
2) Tenkte å ha 20 mm rør og cc 30 i garasjen, det må vel være greit?
3) Hva slags leggemønster bør jeg velge oppe da jeg vil ha det litt tettere enn cc 30, spesielt på bad!?
4) Lurte på å ha 20mm rør overalt, men det er vel kanskje vanskelig å legge det tett da eller?

Du finner mye god info her http://www.uponor.no/~/media/Files/Uponor/Norway/BLD_solutions/Handbooks/BLD-UFH_Handbok_GV_5014_09_2006.pdf
Når det gjelder sløyfer må du legge tur røret langs hele ytterveggen først før du "fyller" resten av arealet du ønsker på kursen, gjerne både en tur ut og tilbake før du starter å gå tilbake slik du ser i den brosjyren.
Alle kurser skal tilbake til samlestokken. Vanligvis er 120 meter rør maks på en kurs med 16/20 mm rør.
Etterpå kan en termostat på vegg styre flere kurser samtidig enten med kablet eller trådløst anlegg.
Takk! Det var et svar jeg har lurt på lenge!
Kan liksom ikke finne noe særlig info om det..
Alle rørene her: http://www.buildahouse.dk/gulvvarme/gulvvarmeror.html kan støpes ned (står vel også på siden =) )
Ikke gjør tabben jeg gjorde, og det var å bruke rørskåler for isolasjon rundt rørene enkelte plasser. Disse fløyt veldig godt!!!
Hvis du ønsker å legge tettere og/eller ha jevnere varme (ikke kritisk ved tykk støp) så kan du jo legge i sneglehus.
EDIT: Jeg kommer aldri til å legge 20mm igjen (når jeg har gjort meg ferdig). Heller flere kretser med 16/17mm. Var pyton å jobbe med så stive rør.
Stefan
Ingen utdanning innen bygg, anlegg, elektro eller VVS.
Tenkte å legge sneglehus i etasjeskille, da er det jo mulig å få det litt tettere
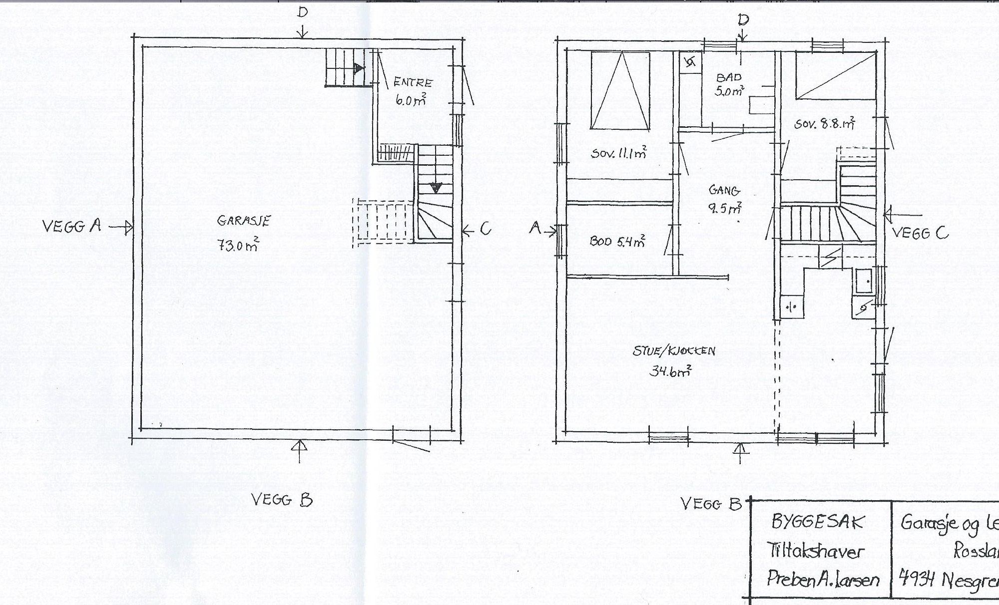
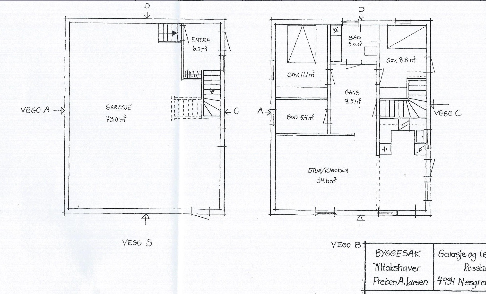
Dette er en tegning over garasjegulvet. Hadde vel strengt tatt ikke trengt noen varme der i det hele tatt, men i og med at jeg skal oppholde meg der en del, synes jeg det er greit, da jeg allikavel skal ha vannbåren :)
Så det er altså lurt å isolere tur/retur sløyfene selv i garasjen?
Men nå er ikke jeg noen ekspert på dette her, jeg bare kommer med kommentarer
Stefan
Ingen utdanning innen bygg, anlegg, elektro eller VVS.