1,143    8    0  

Nytt hus.. Hva synes dere om ventilasjon tegningen?

 30     0
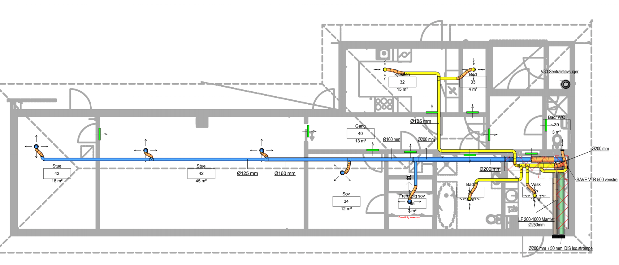
Vi bygger nytt hus, på 140m2 på en flate og sitter å ser på ventilasjonstegninger vi har fått.

Vi lurte på om dere har noen innspill på dette?

Vi har valgt å overdimensjonere anlegget litt, slik at vi kan kjøre det på lavere hastighet men oppnå høy utveksling.

Vi skal også ha luft åpning oppe på dørene og ikke under, som er vanlig. Noen erfaringer med dette?


Eneste vi kan sette fingeren på, er kanskje ett litt langt strekk, uten ut-luft fra på stuen og tv-stuen i enden av huset?
Nytt hus.. Hva synes dere om ventilasjon tegningen?  - Skjermbilde 2018-02-21 kl. 01.49.39.png - mikalfra

   #1
 156     0
Hei der,

Det ser forsåvidt ut som du får ventilert boligen din bra med dette anlegget, men rommet som sentralstøvsuger står ville jeg satt inn en avtrekk på da dette ser ut som en bod/tekniskrom.

Luftgjennomstrøm under dører er best for spredningen av luft i rommet, men det er ikke noe problem med luftgjennomstrøm over dørene hvis du plasserer ventilene litt vekk fra dørene.

Kim
Makitech.no
Signatur
  (trådstarter)
   #2
 30     0
Sentralstøvsugeren står i en liten "utebod", på 1x2m. Den er isolert. Den har også en ventil gjennom veggen..


Så du synes ikke det blir litt for langt for de to stuene i enden av huset og utluften på bad/kjøkken?
   #3
 25,680     Akershus     0
Personlig ville jeg bekymret meg mer over varme soverom.

Signatur
   #5
 25,680     Akershus     0
Vanligvis fører balanser ventilasjon til nær lik temperatur i hele huset. Dersom en ønsker 10 grader på soverommet, må det være 10 grader på stua, badet og kjøkkenet også. Løsningen er et flersonesystem. Det er det få som spanderer.
Signatur
   #6
 1,463     Harstad     0
Vi angrer på at vi ikke la inn avtrekk OG friskluft gjennom taket på badene. Ventil under dør medfører at det alltid er kaldt på gulvet foran døra.

På soverommene skulle jeg ønske at vi hadde et separat anlegg som hentet kald uteluft uten å føre det gjennom varmeveksler. Det resulterer i at vi sover med vinduene åpen hele tiden for å få ned temperaturen.

Synes det er rart at leverandørene av ventilasjon ikke er opptatt av å informere om dette, de får jo mersalg også.
Signatur
   #7
 156     0
Angående det lange strekket med tilluft så er ikke det noe problem, all friskluften som kommer ut av de tre ventilene må helt tilbake til kjøkken og bad, du får da god sirkulasjon på lufta i disse rommene.

Hvis du tenker på å sette inn noe flere avtrekk i nærheten av disse rommene ville jeg satt et punkt hvor sko og klær blir tatt av, da lukt fra dette ikke alltid er greit å få inn på kjøkken Smile
Signatur

   #8
 25,680     Akershus     0
En jukseløsning kan være å sette gløtt på soveromsvinduet og blokkere luft fra ventilasjonsanlegget til soverommet. For soverommets del vil systemet da fungere omtrent som mekanisk avtrekk.

En annen løsning kan være å sette inn miniventilasjon på soverommene. Mao, et flerkretssystem.
Signatur