10,885
5
1
Passende innstilling for luftmengde - balansert ventilasjon?
42
0
Hei!
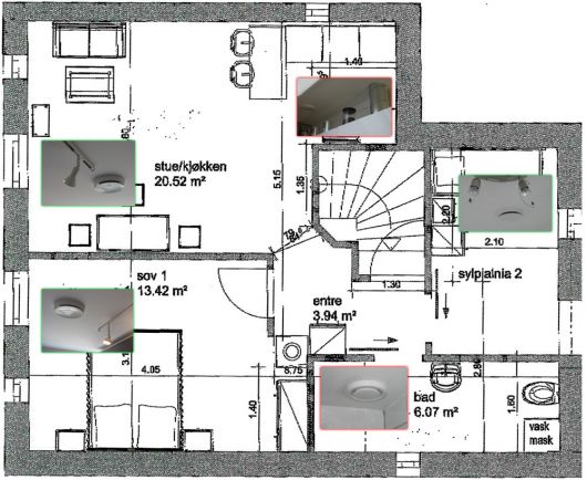
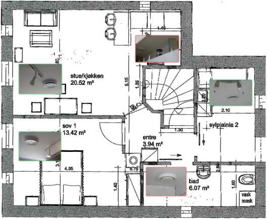
Har fått installert Villavent VR 400 DC i min leilighet. Vi bor to stykker her. 54 kvm gulvareal og 48 BOA (har litt skråtak). Aggregatet og kanalene står på kaldt loft over leiligheten. Tilluft på de to soverommene og i stuen, avtrekk på bad og i tak i kjøkkenhjørne (markert på plantegning).
Har lyst til å se litt på innstillingene for luftmengde. Nå er min-normal-max satt til 20-60-107 liter per sekund, og jeg bruker minimum som standardinnstilling. Tenker at det kanskje er greiere å ha standardinnstillingen på normal, og sette min og max til noe som duger til hhv. ferie (tom leilighet) og mange gjester/dusjing/osv.
Noen spørsmål:
Axel
Har fått installert Villavent VR 400 DC i min leilighet. Vi bor to stykker her. 54 kvm gulvareal og 48 BOA (har litt skråtak). Aggregatet og kanalene står på kaldt loft over leiligheten. Tilluft på de to soverommene og i stuen, avtrekk på bad og i tak i kjøkkenhjørne (markert på plantegning).
Har lyst til å se litt på innstillingene for luftmengde. Nå er min-normal-max satt til 20-60-107 liter per sekund, og jeg bruker minimum som standardinnstilling. Tenker at det kanskje er greiere å ha standardinnstillingen på normal, og sette min og max til noe som duger til hhv. ferie (tom leilighet) og mange gjester/dusjing/osv.
Noen spørsmål:
- Hva vil være tre gode alternativer for luftmengde her? F.eks. 10-20-60 l/s?
- Trenger jeg å skru opp luftmengden ved dusjing, eller holder 20 l/s? Jeg har også avtrekk over kjøkkenet, men det suser mer badet så jeg tror det er lagt opp til at det meste av luften går ut der.
Axel

men ved dusjing er det lurt å kjøre opp farten.
monterer du inn en fuktføler øker aggregatet selv ved fuktigluft og går til min igjen etter en stund.
da slipper du å tenke på det.
Kent (Jobber i ventilasjonsbransjen)
Vet ikke helt hva jeg synes er passe, men de første dagene med balansert vent har vært helt nydelig sammenlignet med tett leilighet uten en eneste ventil..! Ser du jobber i ventilasjonsbransjen. Hvilke luftmengder hadde du valgt til min, normal og max for en leilighet av min størrelse?
Da skal jeg ordne det slik at jeg kjører opp hastigheten ved dusjing. Nå er panelet et stykke unna, så fuktføler kan være praktisk. Jeg har allerede en tom veggboks med rør til loft utenfor badet, så et alternativ er en enkel bryter her som kobles på DI1 på hovedkortet.
luftmengde er antall m2xtakhøyde delt på halv luftskifte i timen.
til deg blir det da ca 65m3h hvis leil er 54 m3h det er da TEK kravet, men som sagt tidligere, det beste er hva du føler.
min 10ls(borte)du kan koble til bevegelse sensor som registrer om du er hjemme
norm 18-20(normaldrift-hjemme)
max 60-90ls(forsjering dusj etc)
det er ett forslag ikke fasit
du har et anlegg som kan kjøres med rolig gange og dermed bedre enøk,
lykke til med bra inneklima.
Kent (Jobber i ventilasjonsbransjen)
Har et spm til. Vet du hvilke tilluftteperaturer de ulike temp-innstillingene gir? Er det definerte temperaturer, eller er de relativt til avtrekksluften aggregatet får?
Slik ser forresten herligheten ut på loftet:
laveste er ca 12 grader og øker ca 2,5 grader for vært felt som fargelegges på symbolfeltet.
så bra ut hærligheten da.
Kent (Jobber i ventilasjonsbransjen)