6,931
15
0
Møblering av bad med gjennomgang
34
0
Jeg og fruen holder på å planlegge bad 2. etg i en funkisbolig. Det som kanskje gjør badet litt spesielt er at det er et soverom innenfor badet. Ideen med dette er at dette badet vil fungere primært som bad for dette soverommet, men at gjester kan bruke badet på dagtid uten at de trenger å gå inn på soverommet.
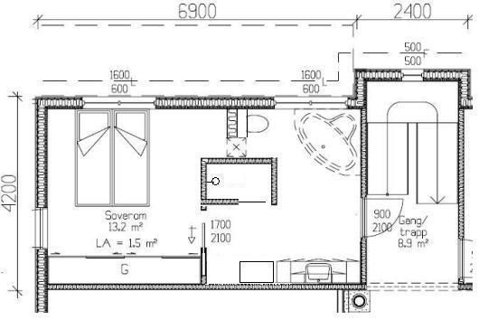
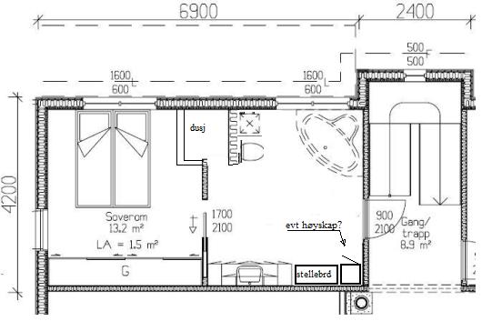
Vi har fått tegnet en baderomsløsning, men vi er ikke 100% fornøyd enda. Vedlagte bilde viser planen slik den foreligger nå. Mellom soverom og bad planlegger vi en skyvedør. Den lille "kassen" med et kryss i er skittentøyssjakt som går ned til vaskerom i 1.etg. Veggen mellom soverom og bad kan justeres noe, men den tjukke delen sammenfaller med vegg i vaskerommet under. Vinduets plassering og størrelse er låst (nabovarsel sendt).
Vi er usikre på om badet vil virke veldig åpent med mye ledig gulvplass i midten av rommet?
Her er ønskelisten for drømmebadet som vi ikke har fått til å tegne:
- Et litt mer avskjermet toalett
- Skap/hylleplass
- Plass til en stellekommode
- Dusjnisje (gjerne dobbel dusj)
- Badekar med plass til to (kan gjerne være mere ovalt eller rektangulært enn det som tegningen viser.)
Håper noen vil ta seg bryet med å kommentere, evt tegne noe alternative løsninger da vi står ganske fast. Da hadde vi blitt veldig glade!
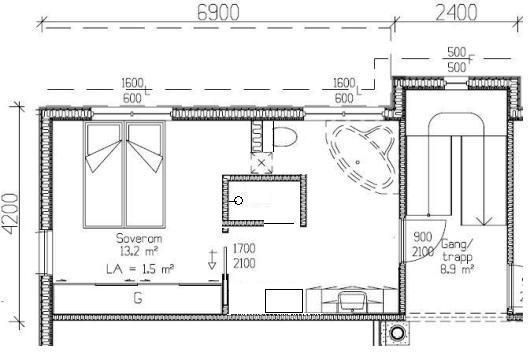
Vi har fått tegnet en baderomsløsning, men vi er ikke 100% fornøyd enda. Vedlagte bilde viser planen slik den foreligger nå. Mellom soverom og bad planlegger vi en skyvedør. Den lille "kassen" med et kryss i er skittentøyssjakt som går ned til vaskerom i 1.etg. Veggen mellom soverom og bad kan justeres noe, men den tjukke delen sammenfaller med vegg i vaskerommet under. Vinduets plassering og størrelse er låst (nabovarsel sendt).
Vi er usikre på om badet vil virke veldig åpent med mye ledig gulvplass i midten av rommet?
Her er ønskelisten for drømmebadet som vi ikke har fått til å tegne:
- Et litt mer avskjermet toalett
- Skap/hylleplass
- Plass til en stellekommode
- Dusjnisje (gjerne dobbel dusj)
- Badekar med plass til to (kan gjerne være mere ovalt eller rektangulært enn det som tegningen viser.)
Håper noen vil ta seg bryet med å kommentere, evt tegne noe alternative løsninger da vi står ganske fast. Da hadde vi blitt veldig glade!

Weheee
Usikker på om det er plass til dusj ved siden av vindu, evnt kan man lage dusjnisje med halvegg + glass øverst mot badekar..
Egne prosjektfilmer på YouTube
Og eg ville seriøst vurdert om de treng eit så stort badekar. Det finst litt nettare modellar som er breie i ei kortside og smale ved føttene. Så får ein heller sparke kvarandre på leggene da.
edit: med Bidda si løysing kan du ha ein heil, lang benk i forb. med vasken. Du vil kanskje ha nokre høge skap da, men likevel; masse fin flate. Mine to barn har ikkje hatt stellebord, men ei stellematte (god og polstra), oppå ein benk. Fungerer minst like bra til ein brøkdel av prisen, og skuff til babyting kan du ha like under. Bading gjorde vi i babybalje, på benken, og seinare i balje inne i dusjen
får jo et veldig eksklusiv bad med en slik løsning ;D
Weheee