1 2 Bidda 02.02.2010 07.34 #11 Bidda Gå til profilen Tråd Link til innlegget Legende 3,706 Ringerike 0 Tenkte vegg ikke helt til taket og delvis av glasstein,.Kan tas i 2 trinn, la det være åpent nå når barna er som minst og tette igjen når det blir et større behov for avskjerming. Døra til dusjen kan lages slik at du snur slagretningen. Signatur Eier av Lesjø Utvikling AS, og har stor interesse for prosjekter, teknikk, logistikk og planløsninger Egne prosjektfilmer på YouTube Bidda 02.02.2010 08.46 #12 Bidda Gå til profilen Tråd Link til innlegget Legende 3,706 Ringerike 0 Ett forslag til vedlagt :oSjakt stopper i høyde 80cm og kan da ha hyller over dette. Glassstein i vegg som ikke går til tak. Frostet dører dusj og wc. Signatur Eier av Lesjø Utvikling AS, og har stor interesse for prosjekter, teknikk, logistikk og planløsninger Egne prosjektfilmer på YouTube BeritS 02.02.2010 19.28 #13 BeritS Gå til profilen Tråd Link til innlegget Junior 220 Sørlandet 0 http://megaflis.no/VVS/Dusjloesninger.aspxHer har de saloondører..... Signatur Alenemor til tre gutter. Flyttet 28.8 inn i "selvbygget" enebolig med utleieleilighet Bidda 02.02.2010 22.58 #14 Bidda Gå til profilen Tråd Link til innlegget Legende 3,706 Ringerike 0 Kan fint bruke skyvedør også, kanske mere praktiskt og heller bruke saloondører inn til dusjrommet. Signatur Eier av Lesjø Utvikling AS, og har stor interesse for prosjekter, teknikk, logistikk og planløsninger Egne prosjektfilmer på YouTube trondrb (trådstarter) 03.02.2010 10.20 #15 trondrb Gå til profilen Tråd Link til innlegget Aspirant 34 0 God ide! Fruen var litt skeptisk til saloondører 1 2 Delta i diskusjonen Du er i ferd med å poste i en gammel tråd, siste innlegg ble postet den 2/3/2010 Om du vil ha nye øyne på denne problemstillignen kan du lage en ny tråd: jeg ønsker å bidra i denne tråden jeg vil starte en ny tråd Vedlegg… Varsling Svar Du er ikke innlogget. For å publisere i tråden må du logge på først. Logg på Du er nå innlogget. Du kan fortsette. Du er nå innlogget, men du må aktivere brukeren din med aktiveringslinken som vi sendte til deg før du får publisere tråden. Denne eposten utløper om 30 minutter.
Bidda 02.02.2010 07.34 #11 Bidda Gå til profilen Tråd Link til innlegget Legende 3,706 Ringerike 0 Tenkte vegg ikke helt til taket og delvis av glasstein,.Kan tas i 2 trinn, la det være åpent nå når barna er som minst og tette igjen når det blir et større behov for avskjerming. Døra til dusjen kan lages slik at du snur slagretningen. Signatur Eier av Lesjø Utvikling AS, og har stor interesse for prosjekter, teknikk, logistikk og planløsninger Egne prosjektfilmer på YouTube
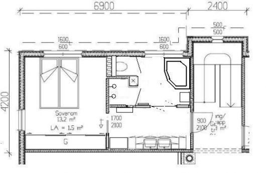
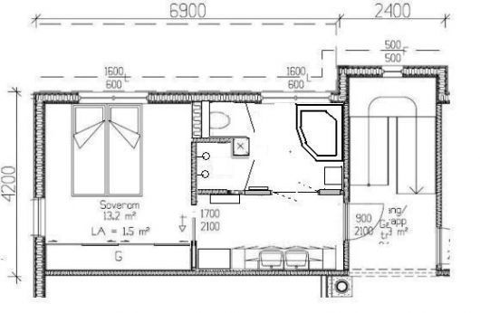
Bidda 02.02.2010 08.46 #12 Bidda Gå til profilen Tråd Link til innlegget Legende 3,706 Ringerike 0 Ett forslag til vedlagt :oSjakt stopper i høyde 80cm og kan da ha hyller over dette. Glassstein i vegg som ikke går til tak. Frostet dører dusj og wc. Signatur Eier av Lesjø Utvikling AS, og har stor interesse for prosjekter, teknikk, logistikk og planløsninger Egne prosjektfilmer på YouTube
BeritS 02.02.2010 19.28 #13 BeritS Gå til profilen Tråd Link til innlegget Junior 220 Sørlandet 0 http://megaflis.no/VVS/Dusjloesninger.aspxHer har de saloondører..... Signatur Alenemor til tre gutter. Flyttet 28.8 inn i "selvbygget" enebolig med utleieleilighet
Bidda 02.02.2010 22.58 #14 Bidda Gå til profilen Tråd Link til innlegget Legende 3,706 Ringerike 0 Kan fint bruke skyvedør også, kanske mere praktiskt og heller bruke saloondører inn til dusjrommet. Signatur Eier av Lesjø Utvikling AS, og har stor interesse for prosjekter, teknikk, logistikk og planløsninger Egne prosjektfilmer på YouTube
trondrb (trådstarter) 03.02.2010 10.20 #15 trondrb Gå til profilen Tråd Link til innlegget Aspirant 34 0 God ide! Fruen var litt skeptisk til saloondører
Egne prosjektfilmer på YouTube
Sjakt stopper i høyde 80cm og kan da ha hyller over dette. Glassstein i vegg som ikke går til tak. Frostet dører dusj og wc.
Egne prosjektfilmer på YouTube
Her har de saloondører.....
Egne prosjektfilmer på YouTube
Fruen var litt skeptisk til saloondører