Ja, tiden går og det trekker litt ut i tid. Satser på å sende nabovarsler I løpet av oktober og forhåpentligvis komme I gang med selve byggigen I starten av 2017.
Per nå går tiden mye med til å se på kjøkken, fliser og varmeløsning til huset.
Når det gjelder varme så tenkte vi I utgangspunktet å ha varmekabler I hele 1 etasjen og sette opp et xcomfort system for styring. Men, er faktisk begynt å vurdere vannbåren varme igjen da (om en skipper xcomfort) prisforskjellen ikke blir så enorm. Jobber med å få en eksakt prisforskjell fra leverandør.
PÅ kjøkkenfronten er det mye rart. Det vi er mest forbauset over er prisforskjellen ! Vi får "like mye" kjøkken for 40000 på Ikea som for 150000 hos Sigdal og Norema. Visste at det var forskjell, men gud bedre. Samtidig ser vi og litt på EPOQ og Aubo. Kanskje noen som har litt anbefalinger på dette området? Per nå trekker vi nok litt mot EPOQ, Aubo eller IKEA.
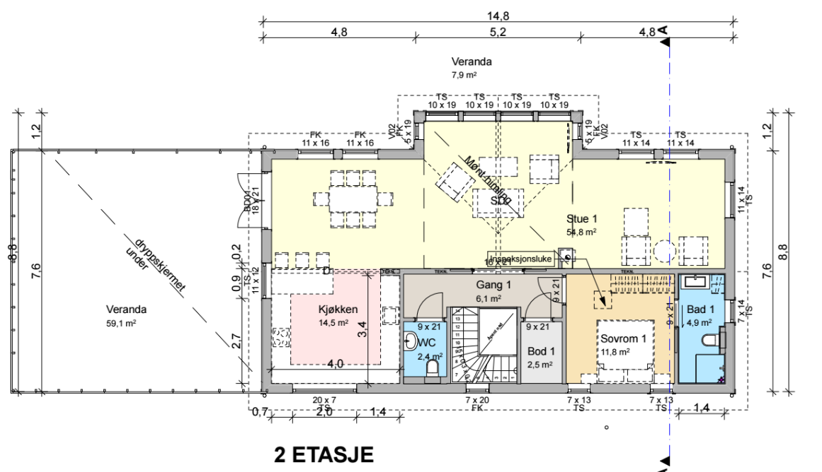
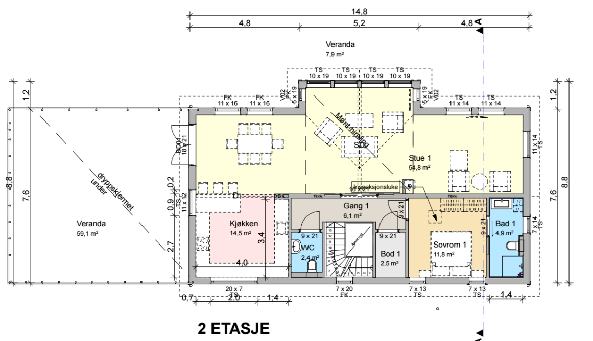
Samtidig har vi gjort noen småendringer på huset. Satser på å få tegninger iløpet av neste uke som vi kan legge ut her.
Jeg holder på å bygge nå, og har gått for et Aubo-kjøkken. Ser ut som et veldig bra kjøkken, til god pris. Ca. 8 meter innredning + en god kjøkkenøy endte vel på rundt 75 000 med 20-25% rabatt. Det inkluderer blant annet fire sokkelskuffer, som utnytter rommet under kjøkkenbenken, som vanligvis bare er tomrom. Fulgte med kjøkken for 65 000 kr, så ble ikke mye ekstra. Aldri betal fullpris, bare å prute eller slå til på kampanje, evt. om husleverandøren skaffer bra rabatt.
Ja, men er nok redd for at kostnaden med vannbåren blir såpass mye større at vi må kutte i xcomfort budsjettet....
Spennende at du har valgt Aubo. Vi har og et veldig godt inntrykk av de. I vår kontrakt er det faktisk med kjøkken for 150 k hos Sigdal og Norema så en burde tro en fikk en del for det. Trekker vi ut leveransen er det kun 100 k, men vi får faktisk mer for 100 k hos Aubo, IKEA og Epoq enn for 150 k hos de andre. Setter vi det opp selv er det enda større forskjell. Vil gjerne høre om dine erfaringer når du setter dette opp og tar i bruk!
Da har vi fått unna de siste endringene, så nå er det nabovarsling neste!
Av endringer vi har gjort fra første post:
- Utvidet garasjen noe fra 6,2 til 6,5 meter i bredden. Lagt til dør ut mot huset. - Trukket vaskerommet lenger innover gangen. For å få plass til mer knagger for heng, samt få tekniske skap på vegg mot bad og ikke soverom. - Layouten på badet endrett litt. - Lagt inn vinduer i hele høyden på trappen. - Endret retning på en del dører til å slå ut av rom og ikke inn i rom. - Gjort dør fra spisestue til terrasse større og om til dobbeldør.
Er godt å endelig få sendt nabovarsel. Håper jo vi kan komme i gang på tomten rett over nyttår Nå kan vi jo da konsentrere oss mer om det innvendige.
Da har det gått en god del tid med søknader og utsettelser i feltet, men endelig er vi klarte til å gå i gang!
Denne uken gikk entreprenøren i gang med gravingen på tomten noe som er en stor milepæl. Vi har hatt oppstartsmøte og fått bekreftet levering av huset på byggeplass 8 august!
Ellers er vi i full gang med å få bekreftet flere av detaljene innvendig. Kjøkkenlayout er på plass, her går vi for EPOQ da vi har fått et godt inntrykk av kvaliteten der samt at prisen og er ganske grei.
Vi begynner og å få på plass alt av det elektriske, der kommer vi og til å gå for en løsning med Futurehomesystemet på lys og varmestyring.
Gratulerer med oppstart av tomten. Hva var det som gjorde at søknadsprosessen tok så lang tid? Måtte dere søke om dispensasjon eller fikk dere nabomerknader? Er dere fortsatt fornøyde med IEC?
Har dere bestemt dere for dører og vinduer nå? Er det lov å spørre om prisen dere fikk fra IEC-hus? Vi kuttet nøkkelferdig leveranse da det ble en del dyrere enn forventet. Fikk tips av boligkonsulenten vår at det ville bli billigere dersom vi ordnet underleverandørene selv. Har hentet inn pristilbud fra forskjellige og ser vi sparer en del på det. Har dere forresten vurdert trapp til terrassen?
Dere har totalleveranse, men har trekt ut gulv og kjøkken? Hvilken oppvarming har dere bestemt dere for, og hvilket gulv skal dere ha? Vi har også tenkt elektriske varmekabler i hele 1.etasjen pluss bad i 2.etasje. Hadde først tenkt å gå for laminat i hele huset, men vurderer nå å gå for parkett i 2. siden vi ikke har gulvvarme der. Er redd det ellers vil føles gulvkaldt. Vurderer også en L-L-varmepumpe i 2.etg for å spare litt strøm.
Gratulerer med oppstart av tomten. Hva var det som gjorde at søknadsprosessen tok så lang tid? Måtte dere søke om dispensasjon eller fikk dere nabomerknader? Er dere fortsatt fornøyde med IEC?
Har dere bestemt dere for dører og vinduer nå? Er det lov å spørre om prisen dere fikk fra IEC-hus? Vi kuttet nøkkelferdig leveranse da det ble en del dyrere enn forventet. Fikk tips av boligkonsulenten vår at det ville bli billigere dersom vi ordnet underleverandørene selv. Har hentet inn pristilbud fra forskjellige og ser vi sparer en del på det. Har dere forresten vurdert trapp til terrassen?
Dere har totalleveranse, men har trekt ut gulv og kjøkken? Hvilken oppvarming har dere bestemt dere for, og hvilket gulv skal dere ha? Vi har også tenkt elektriske varmekabler i hele 1.etasjen pluss bad i 2.etasje. Hadde først tenkt å gå for laminat i hele huset, men vurderer nå å gå for parkett i 2. siden vi ikke har gulvvarme der. Er redd det ellers vil føles gulvkaldt. Vurderer også en L-L-varmepumpe i 2.etg for å spare litt strøm.
Takker! Nei, det var utbygger av feltet som møtte på en del problemer som gjorde at det tok tid før vi fikk gått i gang. Ellers gikk søknadsprosessen greit, men det det ble litt frem og tilbake med kommunen. Det tok IEC seg av.
Vi kunne nok spart på å ta prosjektledelse selv, men vi orket det ikke. Blir tøft med tiden med små barn og full jobb.. Egentlig godt fornøyd med prisen IEC har gitt, vi sjekket med en del andre og de havnet nærmere 500 k under! Selve IEC leveransen vår havner på i overkant av 3,5. Det er da uten garasje, kjøkken, gulv og før massevis av oppgraderinger. Blir noen 100 k på elektro, vvs etc....
Når det gjelder terrassen så har vi tenkt på trapp der. Ble litt sen med det så fikk det ikke inn på tegningene. Tenker vi får ta det selv i etterkant. Skal selv ta garasjen og terrassen så da kan jeg gjøre klar for det.
Når det gjelder varme så går vi for varmekabler i hele 1 etasje og bad oppe. Skal og ha LL varmepumpe i stuen. Når det gjelder gulvet så blir det nok laminat i begge etasjer. Vi har parkett i dag og den er blitt veldig stygg med to små som herjer på. Vi var og usikre på det om gulvet ble kaldt, men noen venner har samme løsning og det fungerer bra. (Men, da er jo varmepumpa på god temperatur).
Tomten nærmer seg veldig ferdigstillelse, så nå er det kun å avtale mindre ting som kurver og fyllinger. Utrolig gøy!
Samtidig så klarte vi å oppdage en smart løsning for boden i 2.etasje. Der kommer da noe av bakdelen med en sånn gjennomføring som IEC har. En må betale 15 000 nok for å åpne tegningene igjen for å gjøre endringer. Litt irriterende å finne dette nå, da vi har brukt over ett år på å få tegningene rett. Uansett så er den ekstra bodplassen verdt pengene.
Har og fått bekreftet at huset blir levert på byggeplass 8.august! Det blir utrolig gøy.
Samtidig har vi nå begynt å se på gjerde på tomten. Fyllingene rundt vil bli ganske bratt, og høydeforskjellen stor. Har funnet norgesgjerde.no og smihuset. Tenker når vi først setter opp må det være skikkelig. Men, blir jo en 60-70 meter med gjerde :O Noen tips her?
Per nå går tiden mye med til å se på kjøkken, fliser og varmeløsning til huset.
Når det gjelder varme så tenkte vi I utgangspunktet å ha varmekabler I hele 1 etasjen og sette opp et xcomfort system for styring. Men, er faktisk begynt å vurdere vannbåren varme igjen da (om en skipper xcomfort) prisforskjellen ikke blir så enorm. Jobber med å få en eksakt prisforskjell fra leverandør.
PÅ kjøkkenfronten er det mye rart. Det vi er mest forbauset over er prisforskjellen ! Vi får "like mye" kjøkken for 40000 på Ikea som for 150000 hos Sigdal og Norema. Visste at det var forskjell, men gud bedre. Samtidig ser vi og litt på EPOQ og Aubo. Kanskje noen som har litt anbefalinger på dette området? Per nå trekker vi nok litt mot EPOQ, Aubo eller IKEA.
Samtidig har vi gjort noen småendringer på huset. Satser på å få tegninger iløpet av neste uke som vi kan legge ut her.
Trenger denne som rørene går til: http://www.xcomfort.no/installator/produkter/chaz-0112-12-kanals-aktuator
Denne som åpner/lukker for vannet: http://www.xcomfort.no/installator/produkter/chvz-0104-elektrotermisk/
Og termostat til å styre varmen: http://www.xcomfort.no/installator/produkter/crca-0004/
Evt. samme termostat bare med måler for luftfuktighet. (delenummer CRCA-00/05)
Jeg holder på å bygge nå, og har gått for et Aubo-kjøkken. Ser ut som et veldig bra kjøkken, til god pris. Ca. 8 meter innredning + en god kjøkkenøy endte vel på rundt 75 000 med 20-25% rabatt. Det inkluderer blant annet fire sokkelskuffer, som utnytter rommet under kjøkkenbenken, som vanligvis bare er tomrom. Fulgte med kjøkken for 65 000 kr, så ble ikke mye ekstra. Aldri betal fullpris, bare å prute eller slå til på kampanje, evt. om husleverandøren skaffer bra rabatt.
Spennende at du har valgt Aubo. Vi har og et veldig godt inntrykk av de. I vår kontrakt er det faktisk med kjøkken for 150 k hos Sigdal og Norema så en burde tro en fikk en del for det. Trekker vi ut leveransen er det kun 100 k, men vi får faktisk mer for 100 k hos Aubo, IKEA og Epoq enn for 150 k hos de andre. Setter vi det opp selv er det enda større forskjell. Vil gjerne høre om dine erfaringer når du setter dette opp og tar i bruk!
Av endringer vi har gjort fra første post:
- Utvidet garasjen noe fra 6,2 til 6,5 meter i bredden. Lagt til dør ut mot huset.
- Trukket vaskerommet lenger innover gangen. For å få plass til mer knagger for heng, samt få tekniske skap på vegg mot bad og ikke soverom.
- Layouten på badet endrett litt.
- Lagt inn vinduer i hele høyden på trappen.
- Endret retning på en del dører til å slå ut av rom og ikke inn i rom.
- Gjort dør fra spisestue til terrasse større og om til dobbeldør.
Er godt å endelig få sendt nabovarsel. Håper jo vi kan komme i gang på tomten rett over nyttår
Denne uken gikk entreprenøren i gang med gravingen på tomten noe som er en stor milepæl. Vi har hatt oppstartsmøte og fått bekreftet levering av huset på byggeplass 8 august!
Ellers er vi i full gang med å få bekreftet flere av detaljene innvendig. Kjøkkenlayout er på plass, her går vi for EPOQ da vi har fått et godt inntrykk av kvaliteten der samt at prisen og er ganske grei.
Vi begynner og å få på plass alt av det elektriske, der kommer vi og til å gå for en løsning med Futurehomesystemet på lys og varmestyring.
Spennende tider fremover!
Har dere bestemt dere for dører og vinduer nå? Er det lov å spørre om prisen dere fikk fra IEC-hus? Vi kuttet nøkkelferdig leveranse da det ble en del dyrere enn forventet. Fikk tips av boligkonsulenten vår at det ville bli billigere dersom vi ordnet underleverandørene selv. Har hentet inn pristilbud fra forskjellige og ser vi sparer en del på det. Har dere forresten vurdert trapp til terrassen?
Dere har totalleveranse, men har trekt ut gulv og kjøkken? Hvilken oppvarming har dere bestemt dere for, og hvilket gulv skal dere ha? Vi har også tenkt elektriske varmekabler i hele 1.etasjen pluss bad i 2.etasje. Hadde først tenkt å gå for laminat i hele huset, men vurderer nå å gå for parkett i 2. siden vi ikke har gulvvarme der. Er redd det ellers vil føles gulvkaldt. Vurderer også en L-L-varmepumpe i 2.etg for å spare litt strøm.
Takker! Nei, det var utbygger av feltet som møtte på en del problemer som gjorde at det tok tid før vi fikk gått i gang.
Ellers gikk søknadsprosessen greit, men det det ble litt frem og tilbake med kommunen. Det tok IEC seg av.
Vi kunne nok spart på å ta prosjektledelse selv, men vi orket det ikke. Blir tøft med tiden med små barn og full jobb.. Egentlig godt fornøyd med prisen IEC har gitt, vi sjekket med en del andre og de havnet nærmere 500 k under! Selve IEC leveransen vår havner på i overkant av 3,5. Det er da uten garasje, kjøkken, gulv og før massevis av oppgraderinger. Blir noen 100 k på elektro, vvs etc....
Når det gjelder terrassen så har vi tenkt på trapp der. Ble litt sen med det så fikk det ikke inn på tegningene. Tenker vi får ta det selv i etterkant. Skal selv ta garasjen og terrassen så da kan jeg gjøre klar for det.
Når det gjelder varme så går vi for varmekabler i hele 1 etasje og bad oppe. Skal og ha LL varmepumpe i stuen. Når det gjelder gulvet så blir det nok laminat i begge etasjer. Vi har parkett i dag og den er blitt veldig stygg med to små som herjer på. Vi var og usikre på det om gulvet ble kaldt, men noen venner har samme løsning og det fungerer bra. (Men, da er jo varmepumpa på god temperatur).
Samtidig så klarte vi å oppdage en smart løsning for boden i 2.etasje. Der kommer da noe av bakdelen med en sånn gjennomføring som IEC har. En må betale 15 000 nok for å åpne tegningene igjen for å gjøre endringer. Litt irriterende å finne dette nå, da vi har brukt over ett år på å få tegningene rett. Uansett så er den ekstra bodplassen verdt pengene.
Har og fått bekreftet at huset blir levert på byggeplass 8.august! Det blir utrolig gøy.
Samtidig har vi nå begynt å se på gjerde på tomten. Fyllingene rundt vil bli ganske bratt, og høydeforskjellen stor. Har funnet norgesgjerde.no og smihuset. Tenker når vi først setter opp må det være skikkelig. Men, blir jo en 60-70 meter med gjerde :O Noen tips her?
Ringmuren er ferdig støpt, bunnledninger og isopor på plass. Resten av sålen regner vi med blir ferdig i løpet av neste uke.
Huset kommer 8 august!