280
9
1
Hvordan ville DU løst takeutforming på dette huset (og fasade/materialvalg)?
26
0







Vi er i "droddlefasen" på husprosjektet, og er veldig usikker på hvilken takutforming vi skal gå for på huset vårt.
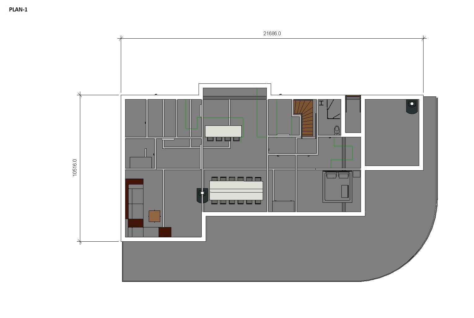
Planløsning og størrelse på rom er vi godt fornøyd med, det som gjenstår er å få dette til å bli et "pent ytre".
Er i utgangspunktet glad i moderne boliger med flatt tak, men skeptisk da vi bor på Vestlandet og her til tider kan vere ganske værutsatt. Ser for oss at takflatene må "brytes" opp litt for å få det pent. Da gjerne stue og kjøkken under en del og resterende under ett, evt sov/Gang i et og vinterstue for seg selv igjen. Huset skal bygges i skråned utsiktstomt mot sør, ønsker derfor høyeste punkt på tak i sør. stue/kjøkken kan gjerne ha god takhøyde (min 2.7).
Siden huset er relativt langt i forhold til bredden er vi redd det kan se litt nedtrykt ut fra nord (gårdsplass) da kun den ene etasjen vil vises fra nord.
Tar ellers imot gode tips og innspill hva gjelder fasade/materialvalg :) Legger ved noen enkle skisser som viser i grove trekk hvordan vi ser for oss huset (uten tak;))
https://byggebolig.no/bygge-nytt-hus/planlosning-ett-plan-betongelementer-flatt-tak?all=all
Jeg har skissert type valmtak som alternativ løsning nederst i ITT-dokumentet.
https://docs.google.com/document/d/1_0XuZXtCrTnHDf8TcQLm3KF0pfpsRoQcWj2lWtxgJMM/edit?usp=sharing
Dersom du er skeptisk til flatt tak pga nedbør, høres uteplass under tak ut som et behov.
Kan legge inn planløsning litt senere, skal i møte med utbygger for å se på alternativ til tak
Er bare redd flatt tak blir seende litt nedtrykt ut da huset er så langt og det kun er en etg som viser i inngangspartiet.
skal si du har et gjennomført og flott prosjekt!! Er det sketchup du bruker?
Hvor tykke har du tegnet ytter/innervegger og tak? Tegner du opp designmessig og så tar utbygger seg av arbeidstegninger og det konstruksjonsmessige eller gjør du dette selv?
Kan man spørre hva et slikt prosjekt komme på i pris, for kun huset uten grunnarbeid/tomt? Er nemlig redd for prislappen på vårt, at vi må redusere det..er ikke intressert i det kan du si;)
Det er et av alternativene vi har sett på, men da med høyeste punkt mot sør da vi ønsker rommene sørvendt (Stue og kjøkken) mest mulig åpent. integrert solcellepaneler var ingen dum idè, men da bør vel de vere sørvendt også?;) Har du noe formening om hvilken helningsgrad et slikt tak bør ha?
Ja, panelene bør vende sørover, derfor bør også taket helle den veien. Men det er vel ingenting i veien for å ha en knevegg på 30-50cm på sørsiden slik at taket kommer litt høyere opp? Minimum takvinkel kommer nok an på systemet som velges, denne leverandøren spesifiserer minimum 15 grader:
http://solcellesystemer.no/integrerte-solceller/
Ved å starte f.eks 50cm opp på sørsiden og ha 15 graders tak får du en brukbar takhøyde på nordsiden slik at loftet kan brukes til lagring.
Da kan du lage taktykkelsen tjukkere
ArchiCAD og Tekla
Yttervegger er sandwich-elementer i betong (80mm betong, 290mm polyuretan isolasjon, 80mm betong). På innsiden av dem blir det vel 70mm stålstender med 12-15mm gips, samt en eller annen form for fuktsperre, så ja, veggene er pr. i dag ca. 550mm, som jeg jobber med å få ned.
Tak jobber jeg fortsatt med å finne ut av. Det blir ihvertfall HD200 hulldekke, som er 200mm. Isolasjon blir vel 200-300mm, samt at jeg skal ha Seamless Stone som dekke. Blir vel fort 600mm. Etasjeskillen nå er 800mm fordi jeg har såpass mye lydisolasjon.
Planen er følgende:
1. Designmessig oppretter jeg BIM-modellen på en BIM-server
2. Arkitektbyrå vil kunne koble seg til BIM-server og jobbe med BIM-modellen sammen med meg om å få den TEK17 konform
3. Alle partnere, slik som rørleggere, elektrikere, HVAC, sikkerhetsfirma, vindusfirma vil kunne koble seg til BIM-server for å finpusse sine elementer i prosjektet.
4. Ved jevne mellomrom eksporteres BIM-modellen til IFC for å lastes opp i Tekla Server
5. Structural engineer vil kunne koble seg til Tekla serveren og lage spesifikke konstruksjonstegninger
6. Ved jevne mellomrom eksporteres Tekla-modellen til IFC for å integreres med BIM-modellen.
På grunn av at Tekla ikke snakker direkte BIM, så må vi gjøre det på denne måte. Tekla er spesifikt helt ned på spikernivå, mens ArchiCAD er bare leketøy i forhold, men mye mer omfattende og generelt;)
Det som er så greit med ArchiCAD er at jeg kan putte kvadratmeterpris inn på hvert materiale, så jeg får en full prisliste helt automatisk som forandrer seg hver gang jeg beveger en vegg;)
Uansett, så holder jeg på å legge inn kvadratmeterpriser nå, samt jobbe med et regneark som jeg legger inn tilbud som er mottatt. Dette er langt fra ferdig, så jeg får oppdatere når jeg er kommet lengre.
Uansett, jeg bruker prefabrikerte sandwich-elementer, så huset har jeg tenkt skal være tett i løpet av noen par dager, noe som er meningen jeg skal spare veldig mye på.
Jeg prøver også å gjøre bygningen så enkel som mulig ved å bruke samme vindusstørrelse på alle vinduer og samme dørstørrelse på alle dører. Slik sett får man minst mulig antall byggeklosser som har veldig mye å si på prisen. Jeg samarbeider også nå med sandwich-elementfabrikken, slik at jeg får de mest mulig gunstig utforming.