273
1
0
Ekstra takhøyde - Norgeshus Panorama - "funkis"
28
0
Hei!
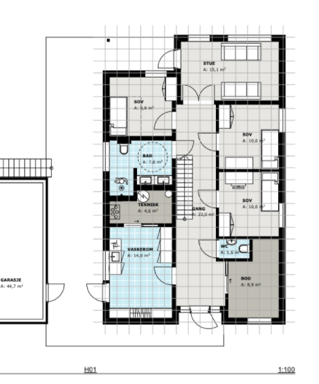
Vi planlegger å bygge en versjon av Norgeshus Panorama, se vedlagt foreløpige skisser. I den forbindelse er vi veldig i tvil om vi skal velge standard 2.40 takhøyde, eller om man skal øke til 2.70 i en eller begge etasjer. Til nå har vi bare bodd steder med 2.40 takhøyde, så har ikke så mye sammenligningsgrunnlag.
Er det noen som har erfaringer med ca-kost på å endre takhøyde slik? Byggmesteren vi skal bruke har ikke noe estimat på dette. Det blir såpass store endringer fra "kataloghuset" at huset kalkuleres fra grunnen, så i såfall må det lages dobbelt opp med kalkulasjon fra Norgeshus.
Hver etasje er på ca 110m2, totalt BRA 225m2 på huset.
Og ellers, er det verdt det å øke takhøyden etter ditt syn?



Vi planlegger å bygge en versjon av Norgeshus Panorama, se vedlagt foreløpige skisser. I den forbindelse er vi veldig i tvil om vi skal velge standard 2.40 takhøyde, eller om man skal øke til 2.70 i en eller begge etasjer. Til nå har vi bare bodd steder med 2.40 takhøyde, så har ikke så mye sammenligningsgrunnlag.
Er det noen som har erfaringer med ca-kost på å endre takhøyde slik? Byggmesteren vi skal bruke har ikke noe estimat på dette. Det blir såpass store endringer fra "kataloghuset" at huset kalkuleres fra grunnen, så i såfall må det lages dobbelt opp med kalkulasjon fra Norgeshus.
Hver etasje er på ca 110m2, totalt BRA 225m2 på huset.
Og ellers, er det verdt det å øke takhøyden etter ditt syn?



Jeg ville absolutt hatt 2.70 meter i stue/kjøkken. I etasje med bare soverom ville jeg kanskje ikke brydd meg med det.
Arbeidstilsynet mener for øvrig at 2.70 meter bør være minimum takhøyde på arbeidsplasser:
https://www.nrk.no/nordland/halvar-ellingsen-ved-kvitnes-gard-i-hadsel-ma-stenge-fordi-det-er-20-cm-for-lavt-under-taket-1.15386225