10,563
11
0
Ny enenbolig: antall kurser og beskrivelse for innhenting av tilbud
519
0
Hei.
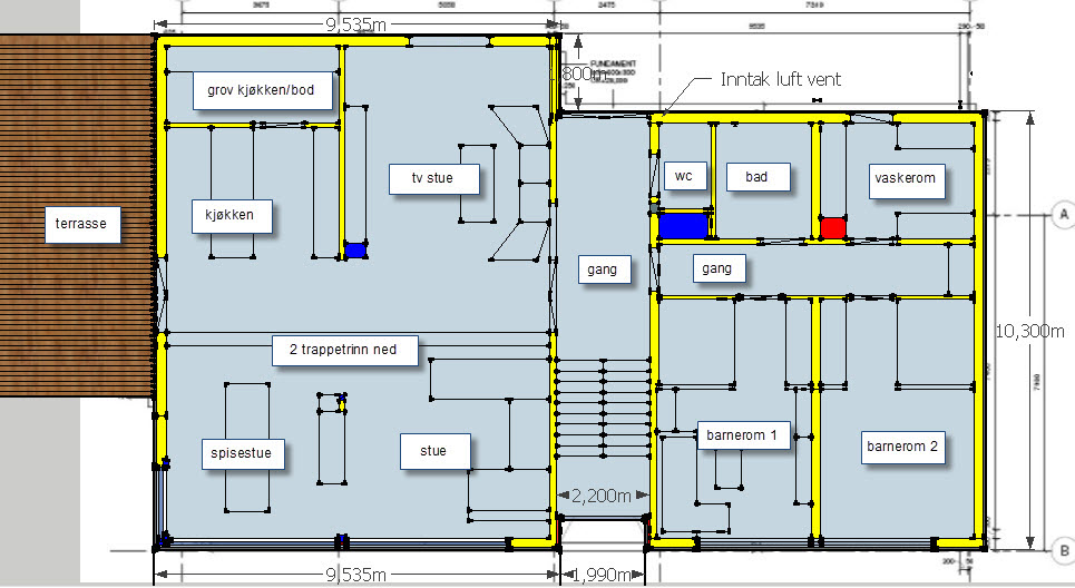
Holder på å lage beskrivelse for pristilbud til min enebolig.
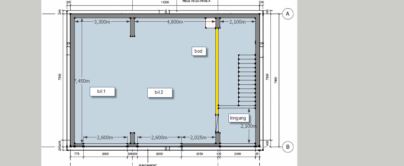
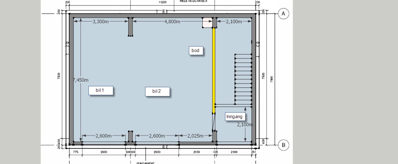
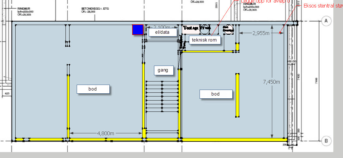
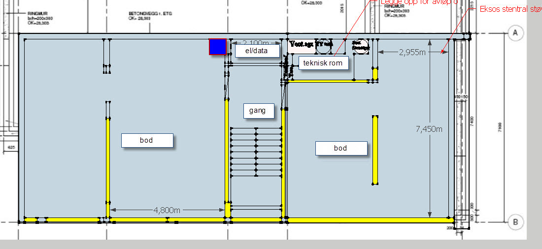
Her er oppsett på kurser og planløsning. Har jeg valg nok kurser, eller har jeg for mange?
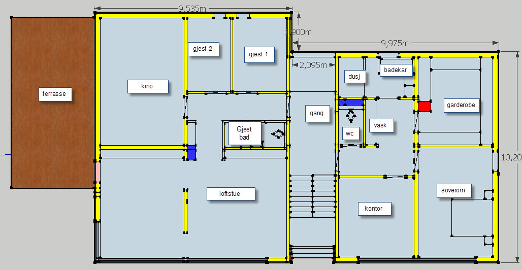
Holder på å lage beskrivelse for pristilbud til min enebolig.
Her er oppsett på kurser og planløsning. Har jeg valg nok kurser, eller har jeg for mange?





Du har neppe allverdens behov for oppvarming med strøm om dette er nybygg etter Tek-10, og utover dette er det ikke mye som plasseres i boligrom som drar mye effekt. Unntakene er selvsagt kjøkkenmaskineri og andre hvitevarer.
På en annen side er det bedre å ha for mange enn for få og det koster kanskje ikke allverden uansett med noen ekstra.
Et hus jeg var på visning på hadde 72(!) spredekurser. Det var riktignok på over 400 kvadrat og han som i sin tid bygget det hadde tilnærmet uendelig med penger.
Om jeg skal ta det til det ekstreme, så har vel "BEF" sin hjemmkino 44000 watt.
Blir stusselig med 2 kurser til det:)
Ellers ser det bra ut.
For å nevene noe, så har jeg en kurs til 2 av soverommene. På ventilasjonkursen har jeg lurt inn noen stikkkontakter, for å effektivisere den litt bedere.
Har 2 kurser til lydogbildet i stue, hvor det krever litt støm for mitt vedkommende.
De områdene jeg var i tvil på hvor mye støm det kommer til å gå, la jeg heller på litt. Det samme med stikkontakter! Er jo tross alt bedere å ha en for mye, enn en for lite.
Ventilasjonsaggregat har ofte en tillegsvarmar på 2-3 kw så egen kurs er ikkje dumt.
blir dog dyrere..
Vi har 125 punkt planlagt i huset men kommer vel til å havne på ca 170 tenker jeg.