1,210    9    0  

Hjelp til downlights nybygg

 14     0
Hei

Er elektriker men jobber i nordsjøen, så downlights er noe jeg ikkje driver med til daglig. Har installert til meg selv i to leiligheter før og ble fornøyd med resultatet. Men i eneboligen jeg nå skal innstallere blir jeg ikkje helt klok på oppsettet pga mye vinduer. Håper på innspill til oppsett på stue/kjøkken.

Antall spotter er ikkje eit problem da jeg har xxx antall SG Gyro allerede innkjøpt.

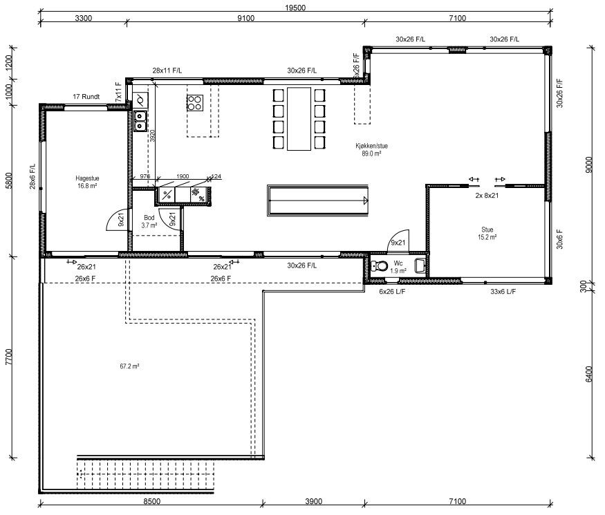
Legger ved hustegningene så håper jeg noen tar seg tid å komme med tips. kansje prikke på tegningene.


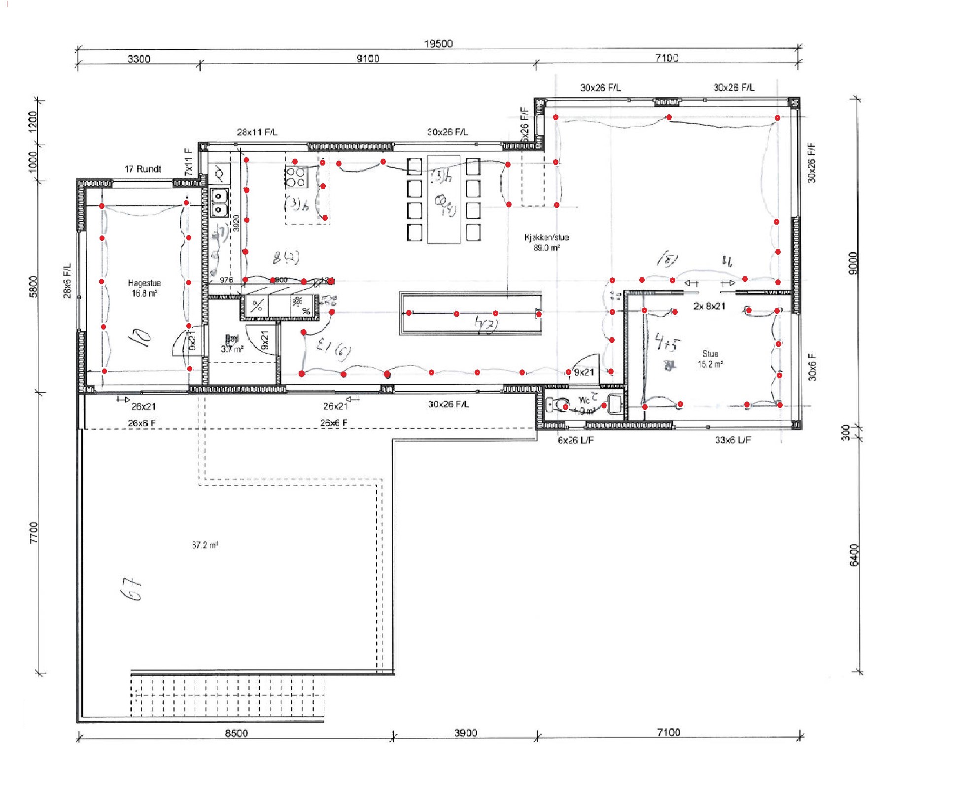
   #1
 5,416     Langhus     0
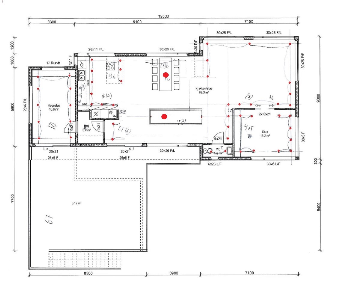
Ingen gode forslag da jeg er av typen som synes downlights passer best i kontorbygg, men klippet ut tegningene dine fra PDF'en slik at det blir enklere for andre å prøve seg Smile
Hjelp til downlights nybygg - Meringdal1.JPG - MeringdalHjelp til downlights nybygg - Meringdal2.JPG - Meringdal
Signatur
   #4
 2,018     Strømmen     0
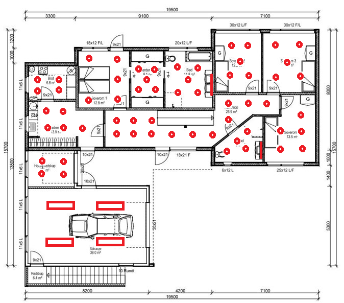
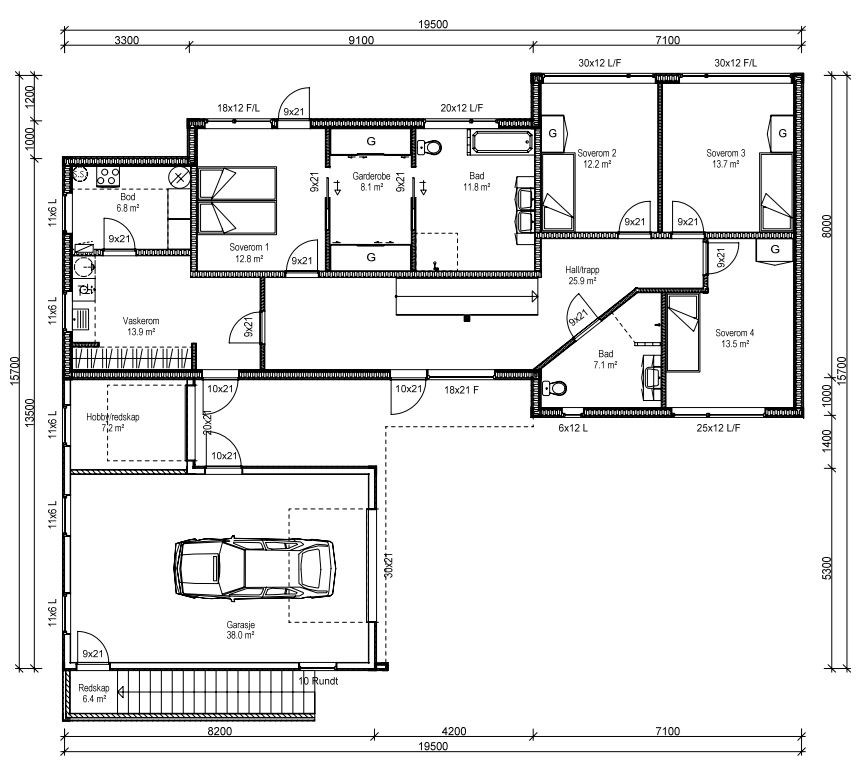
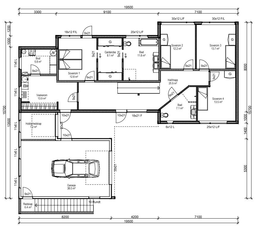
Da prøver jeg meg på en etasje...
Hjelp til downlights nybygg - U-etasje.png - ElJan
Signatur
  (trådstarter)
   #5
 14     0
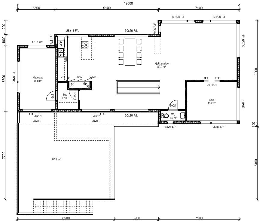
Hei Jan, takker for innspill av løsning på spotter men 1.etg har jeg planlagt lignende slik du tegner opp. det er stue/kjøkken som blir problemet. pga store flater ca 90 kvadrat åpen løsning. og jeg er av typen som liker å ha spotter inntil veggene 30-40 cm fra vegg. liker ikkje å ha spottene midt utpå taket som man blir blendet av di.

  (trådstarter)
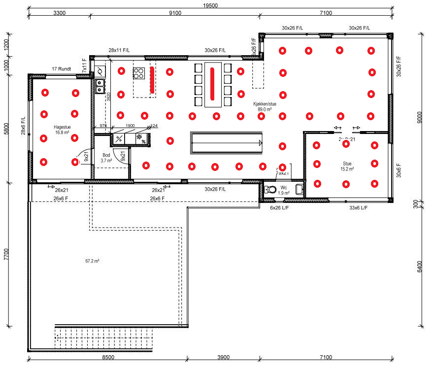
   #6
 14     0
Noe slikt som dette jeg har i tankene. Kom gjerne med innspill.

Her er det ca 40cm ut fra vegg, og 120/80 cm mellom hvær spott. bemærk at takhøyde her er 2,7meter.  og skal bruke SG Gyro 7 Watt. 

Hjelp til downlights nybygg - Spotter utkast.jpg - Meringdal
   #7
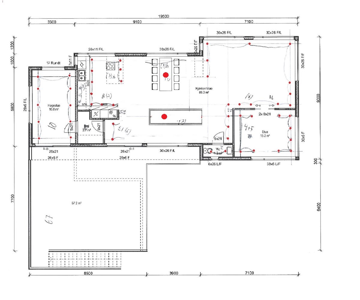
 421     Rogaland     0
Har tatt en liten grov justering av forslaget ditt.
Pendel over spisebord og over trapp
Rundt trappa er det vegger som går til tak eller er det bare åpen rekkverk?
Skal du ha overskap over kjøkkenbenken?
Hva er det som kommer mellom spisebord og stue?
Har ikke tatt noen mål så antall spotter på rekkene må kanskje justeres
Avstand mellom spot:
Kjøkken 80-90cm
Stue 90-140cm
Skal du ha hylleseksjon e.l. inntil noen av veggene?
HVordan tenker du å inndrede med tanke på, sofa, bord, tv og annen inventar?
Hjelp til downlights nybygg - Spot.jpg - Meringdal

  (trådstarter)
   #8
 14     0
Har tatt en liten grov justering av forslaget ditt.
Pendel over spisebord og over trapp
Rundt trappa er det vegger som går til tak eller er det bare åpen rekkverk?
Skal du ha overskap over kjøkkenbenken?
Hva er det som kommer mellom spisebord og stue?
Har ikke tatt noen mål så antall spotter på rekkene må kanskje justeres
Avstand mellom spot:
Kjøkken 80-90cm
Stue 90-140cm
Skal du ha hylleseksjon e.l. inntil noen av veggene?
HVordan tenker du å inndrede med tanke på, sofa, bord, tv og annen inventar?
Hjelp til downlights nybygg - Spot.jpg - Meringdal



Hei Takker for innspill.

Pendel over spisebord var tilltengt, men kom ikke frem på downlights tegninga.
Pendel over trapp blir litt uaktuellt da jeg ikkje ønsker ein lampe til å henge ned midt i stua,
Veggene rundt trappa er bare glassrekkverk.

Kjøkkenet får noen overskap disse kommer med intigrert led belysning.

Mellom Spisebord og stue kommer biopeis eller vedfyrt peisinnsats som romdeler.

På stuebiten kommer bare ein stor modulsofa.
På separat stue er det tvstue. her kommmer sofa og tv inn, har tatt høyde for dette slik det ikkje er spott over tv.
   #9
 2,018     Strømmen     0
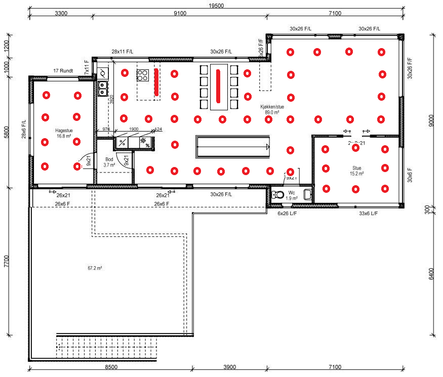
Da... har jeg brukt opp alle Gyrone dine.. del de opp i mange soner, slik at du kan
styre slik du vil..
Hjelp til downlights nybygg - lys 2.png - ElJan
Signatur