280
2
0
hytte - fjerning av pipe og støpe ny pilarer under hytta
3
0
Hei alle sammen
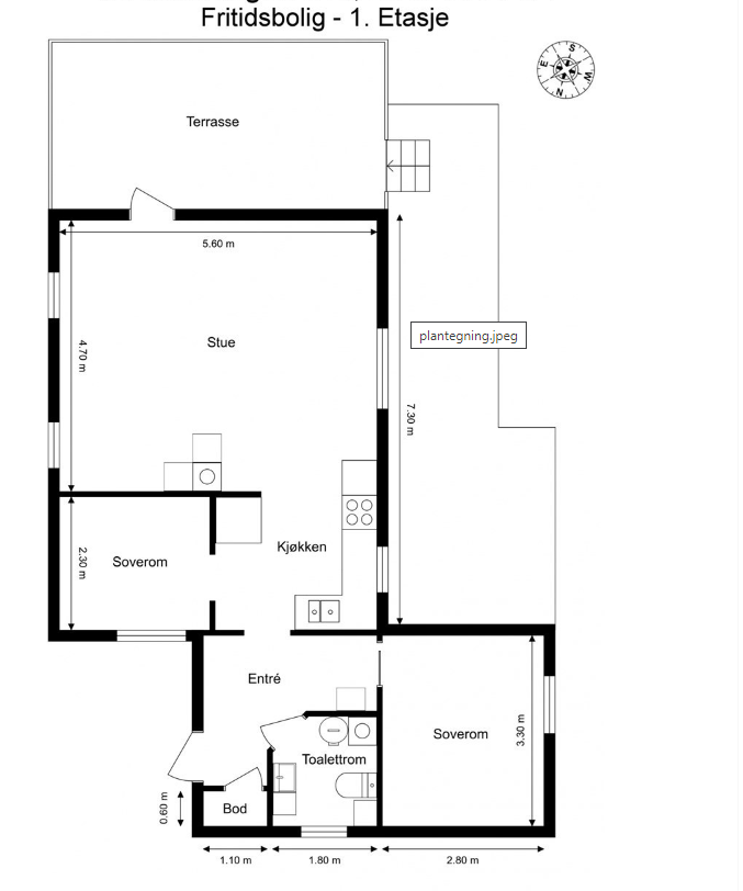
Jeg har nylig kjøpt en hytte her i Østre Toten i høst, som er i relativt dårlig teknisk stand. Gulvet er skjevt og i dårlig stand, vinduene er svært gamle og kan ikke åpnes mange steder. I tillegg er det støpt ringmur rundt tilbygget, som er greit nok bortsett fra at det er en krypkjeller under badet (snurredass) som ligner på et lite svømmebasseng. Jeg har planer om å fjerne dette neste år og installere en Cinderella gass-/strømdrevet toalett.
Tomten er ganske fuktig, og det er ingen drenering. Hytta er på omtrent 65 kvm og hadde 4 vedovner, så det må gjøres betydelige oppgraderinger, inkludert utskifting av nesten alle vinduer, balkongdører og inngangsdører.
Når det gjelder fundamentet på hytta, er planen min for neste år å ordne innkjørselen og tomten rundt hytta. Jeg skal leie en minigraver, og en venn som er maskinfører, skal hjelpe meg med graving. I den forbindelse ønsker jeg å legge dreneringsrør, rive gulvet på hytta helt ned til grunnen og legge et nytt bjelkelag (samt støpe nye pilarer under). Jeg planlegger også å rive en murvegg i tilbygget og pipen på hovedhuset.
Siden jeg allerede har tilgang til en minigraver, vurderer jeg å grave opp for å legge dreneringsrør mens jeg jekker opp hytta og støper nye pilarer. Jeg er litt usikker på om jeg kan grave meg ned til fjell med en jordbor, men jeg vurderer å legge pukk nederst, deretter en liten XPS-plate, deretter lage et lite betongdekke over XPS-platen før jeg legger støperør (Ø 190 mm fra Biltema) på toppen.
Hva synes dere om denne planen? Jeg er åpen for innspill.
jeg har lagt til noen bilder
Jeg har nylig kjøpt en hytte her i Østre Toten i høst, som er i relativt dårlig teknisk stand. Gulvet er skjevt og i dårlig stand, vinduene er svært gamle og kan ikke åpnes mange steder. I tillegg er det støpt ringmur rundt tilbygget, som er greit nok bortsett fra at det er en krypkjeller under badet (snurredass) som ligner på et lite svømmebasseng. Jeg har planer om å fjerne dette neste år og installere en Cinderella gass-/strømdrevet toalett.
Tomten er ganske fuktig, og det er ingen drenering. Hytta er på omtrent 65 kvm og hadde 4 vedovner, så det må gjøres betydelige oppgraderinger, inkludert utskifting av nesten alle vinduer, balkongdører og inngangsdører.
Når det gjelder fundamentet på hytta, er planen min for neste år å ordne innkjørselen og tomten rundt hytta. Jeg skal leie en minigraver, og en venn som er maskinfører, skal hjelpe meg med graving. I den forbindelse ønsker jeg å legge dreneringsrør, rive gulvet på hytta helt ned til grunnen og legge et nytt bjelkelag (samt støpe nye pilarer under). Jeg planlegger også å rive en murvegg i tilbygget og pipen på hovedhuset.
Siden jeg allerede har tilgang til en minigraver, vurderer jeg å grave opp for å legge dreneringsrør mens jeg jekker opp hytta og støper nye pilarer. Jeg er litt usikker på om jeg kan grave meg ned til fjell med en jordbor, men jeg vurderer å legge pukk nederst, deretter en liten XPS-plate, deretter lage et lite betongdekke over XPS-platen før jeg legger støperør (Ø 190 mm fra Biltema) på toppen.
Hva synes dere om denne planen? Jeg er åpen for innspill.
jeg har lagt til noen bilder

bålplass:
Pipe som skal fjernes i tilbygget