2,136
0
0
pris på graving/planering ved hjelp av tegninger?
115
STEINKJER
0
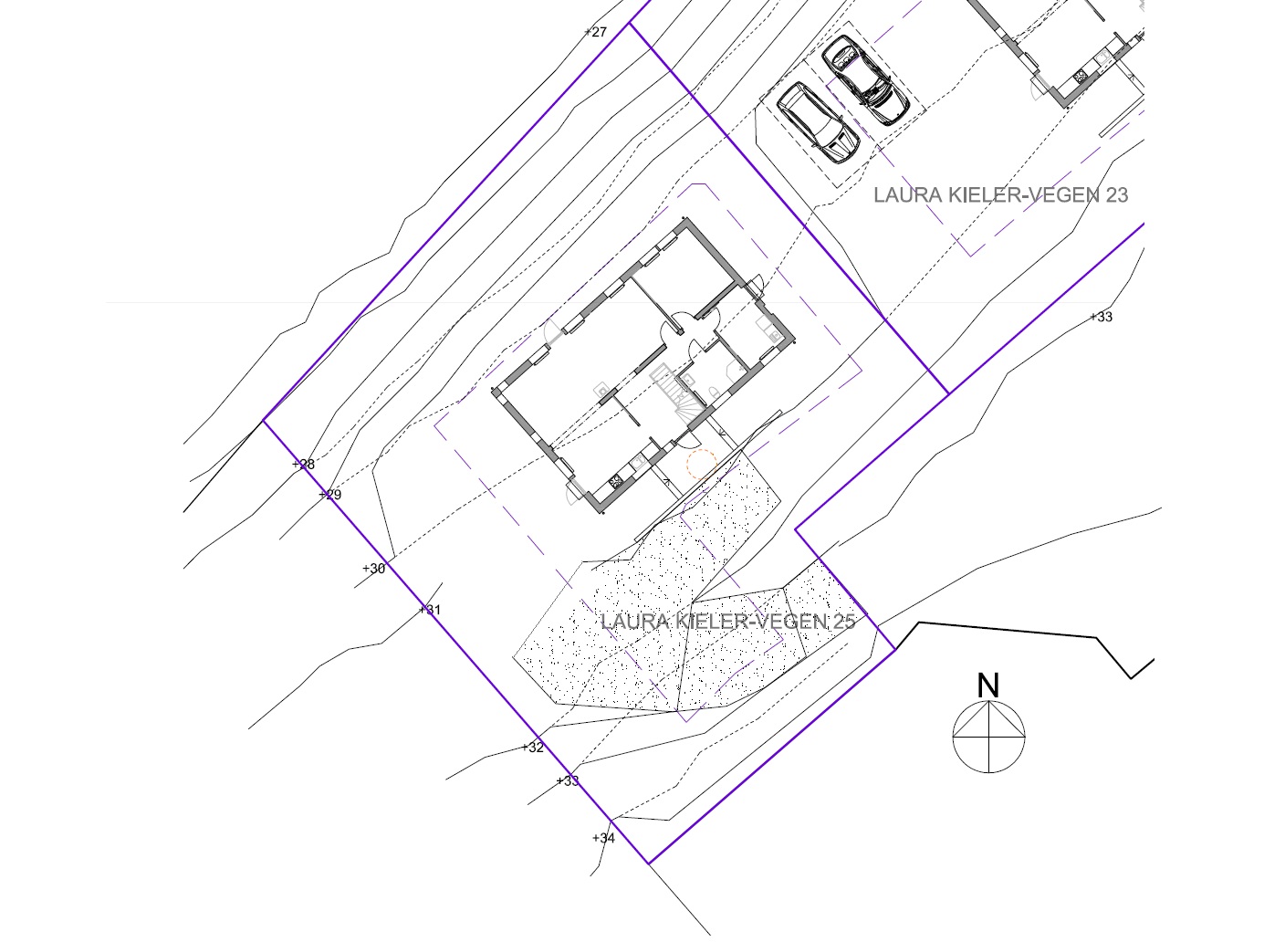
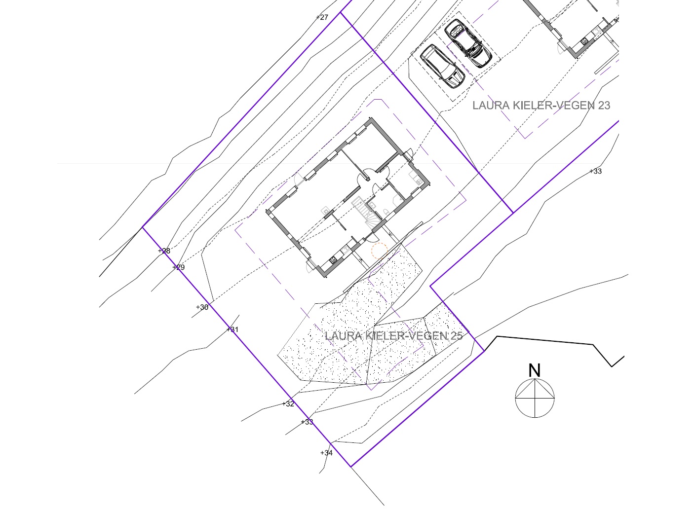
Har sendt disse tegningene rundt omkring til diverse entreprenører, men de er så treige til å svare så tenkte kanskje noen her inne muligens har et svar til ca, pris på graving/ planering? tomten skal være fri for sprenging.
sted: steinkjer, nord-trøndelag
budsjett graving/planering: 200tusen
grunnflate hus: ca 100m2
sted: steinkjer, nord-trøndelag
budsjett graving/planering: 200tusen
grunnflate hus: ca 100m2
Siste redigering: Tuesday, February 7, 2012 10:18:41 PM av Meis

