336
4
0
Rassikring ved utgraving av kjeller
1
0
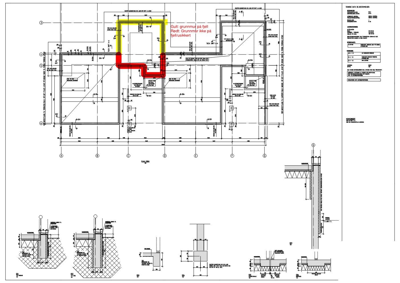
Min bolig er over ett plan hvor stuen er bygd på en grunnmur høy nok til lage en underetasje, men hvor det er fylt i med stein og støpt gulv på toppen.
Har sett litt på muligheten for å fjerne fyllmassen og støpe nytt bærende dekke.
Problemet er at den innerste delen ikke står på fjell og at det derfor er fare for at massen raser ut under grunnmur ved fjerning av fyllmassen.
Har snakket med de som prosjekterte huset og de ville ikke anbefale å gjøre det.
Heller vel derfor mot å slå det hele fra meg, men lurer på om det er noen som kjenner til noen som har erfaring med slikt i Stavangerområdet?
For at det skal være aktuelt må jeg nesten ha en form for garanti for at det lar seg gjøre og at jeg ikke blir sittende igjen med ansvaret om massen raser ut under huset mitt eller naboen sitt.
Tenkte nå jeg skulle høre her før jeg slår det helt fra meg i alle fall



Har sett litt på muligheten for å fjerne fyllmassen og støpe nytt bærende dekke.
Problemet er at den innerste delen ikke står på fjell og at det derfor er fare for at massen raser ut under grunnmur ved fjerning av fyllmassen.
Har snakket med de som prosjekterte huset og de ville ikke anbefale å gjøre det.
Heller vel derfor mot å slå det hele fra meg, men lurer på om det er noen som kjenner til noen som har erfaring med slikt i Stavangerområdet?
For at det skal være aktuelt må jeg nesten ha en form for garanti for at det lar seg gjøre og at jeg ikke blir sittende igjen med ansvaret om massen raser ut under huset mitt eller naboen sitt.
Tenkte nå jeg skulle høre her før jeg slår det helt fra meg i alle fall



Ut fra bildene dine virker kjeller din 80% ferdig utgravd. Jord raser ikke om du graver ut og fyller med betong innen rimelig tid. (Innen 1 år). Se bare bilder fra sandtak, der vegger står rett opp i 8 meters høyde i 10 år uten å rase: Link til santak som er veldig høyt og som har stått lenge https://liernett.no/1966-familie-paa-randen