Denne forsterkaren kan køyra inntil 4 sonar (3 sonar normalt, 4 sonar med ein ekstra effektforsterkar). Denne kan altså brukast til 5,1 surround i loftstova og i tilegg driva 2 sonar med stereo (feks stova og ute). Koplar du på den ein ekstra 2 kanals effekt (lett å få tak i billig), kan den driva ei sone med 2 høgtalarar til (kjøkken, bad, soverom?). I tillegg støttar den alle nye lydformat (inkludert Atmos), bildeformat (4K60P, HDCP2,2), styring via app (wifi), blåtann, Spotify/spotimode osv. Den har utgang for to separate subbar som kan styrast uavhengig av kvarandre (ein i loftstova og ein i stova?) http://no.yamaha.com/no/products/audio-visual/av-receivers-amps/aventage-series/rx-a3050_g/?mode=model.
Den kostar litt, men er krem.
Dette styringssystemet (music cast) kan utvidast med fleire sonar der ein ønskjer seinare ved å kjøpa fleir aktive høgtalarar eller forsterkarar med music cast. Yamaha lanserer eit breitt utvalg no.
Eg har forøvrig ingen tilknytting til DefTech, Yamaha eller Lsound, ana enn at eg er særs nøgd med servisen hjå Lsound, kvaliteten på mine DefTech SM65 og vurderer denne løysinga til Yamaha i framtida.
Dette virker som et oppsett jeg vil gjøre i mitt hus, virker som et praktisk og ryddig oppsett!
takk for at du deler ideer og tanker! dette har hjulpet meg masse!! har gått fra og ikke ha PEILING til å faktisk forstå endel om lyd!
har forhørt meg rundt med flere og dem syntes oppsettet virker veldig bra og fornuftig!
Snakket med Euronics i mitt lokale område, og fått et tilbud på Yamaha RX-A2050 fra 13899,- til 12.000,-
det er ikke stor nok forskjell til at jeg velger den dyreste forsterkern: RX-A3050
For denne forsterkern vil dra huset og loftstua bra utifra lydmannen på Euronics.
så da blir oppsettet:
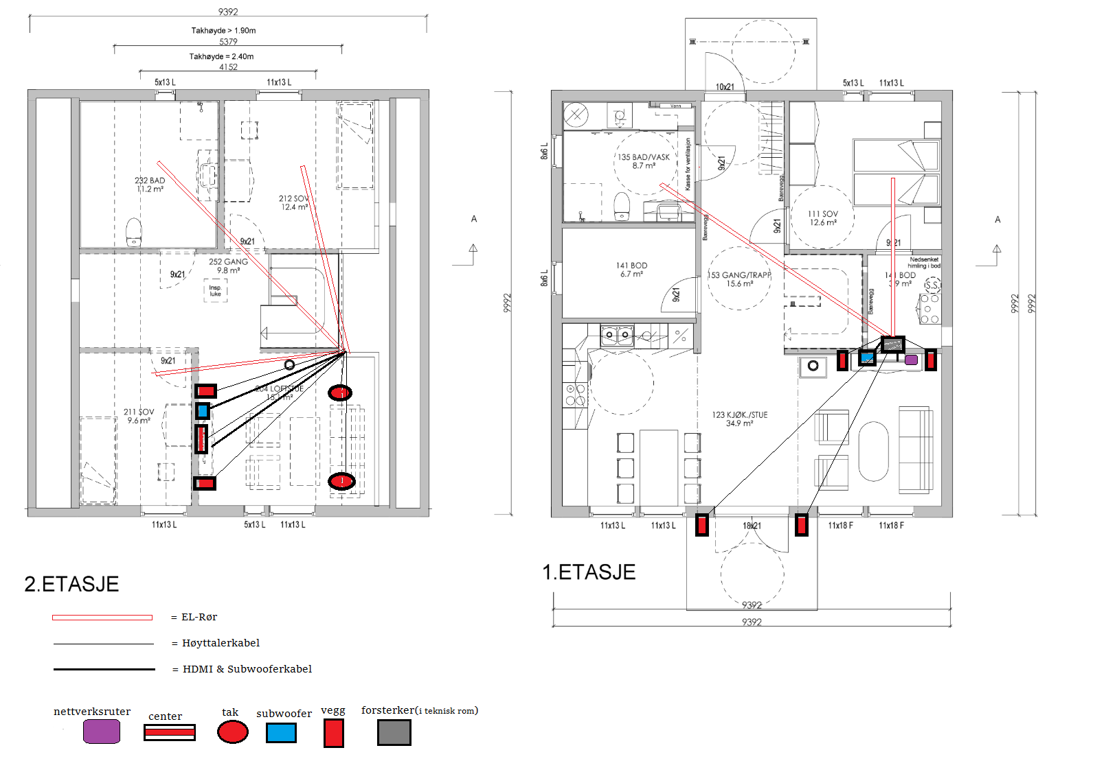
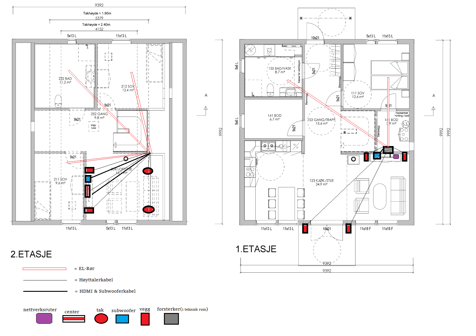
Kjøkken: 1xliten DAB-radio Stue: 2x innfelte vegghøyttalere + subwoofer + optical kabel fra tv til forsterker Ute: 2x deftech "allværs" høyttalere Loftstue: 5.1 surround innfelt i vegg+tak + optical kabel fra tv til forsterker Teknisk rom: Yamaha RX-A2050 som vil være kablet med nettverksruter for bedre signal
i tillegg vil jeg: sette nettverksruter i stua på vegg bak tv for best mulig signal uten unødvendig forstyrrelser, men kabel vil bli trekt i ELrør med optical kabel, så der står jeg fritt til å gjøre hva jeg vil.
i tillegg vil jeg lydisolere hele loftstua: Legge trinnlydsmatter i gulv+laminatgulv, lydisoleringsplater+gips+MDF panelplater i vegger
Dette er slik jeg ser for meg beste måten og få et hus man har MYE glede av uten og slå seg i hode for man ville gjort ting litt anderledes.
håper dette ser ryddig ut i virkeligheten, så nå er det bare sparingen som gjelder
Jeg skal ha en runde med elektrikker for å kikke nærmere på Control4. Ser ut som om en seriøs konkurrent til Sonos. Samtidig som de har integrasjon mot KNX etc.
Syns ikke det lignet så veldig på Sonos. Merkelig at ett lydsystem skal settes opp av elektriker.
Fordelen med Sonos er at du slipper kabling (kun strøm) og en app som støtter det meste av nettkilder som fins. Har også integrert Sonos med HomeSeer, så ringeklokka spilles av på Sonos f.eks.
Eg ville ha kopla kilden/kildene du skal bruka til å spela av video o.l. til forsterkaren med HDMI, CAT6 eller tilsvarande. Då får du HD lydformata. Det får du ikkje med optisk.
Sørg for å bruka høgtalarar med høg følsomhet. Då treng du mindre forsterkarkraft for å driva dei.
Hugs på at alle hol du lagar i vegg/tak vil punktera lydisoldringa.
Eg ville ha kopla kilden/kildene du skal bruka til å spela av video o.l. til forsterkaren med HDMI, CAT6 eller tilsvarande. Då får du HD lydformata. Det får du ikkje med optisk.
Sørg for å bruka høgtalarar med høg følsomhet. Då treng du mindre forsterkarkraft for å driva dei.
Hugs på at alle hol du lagar i vegg/tak vil punktera lydisoldringa. ------------------------------------------------------------------------------------
Da skal jeg koble med HDMI, så jeg får best lyd takk!
hullene jeg lager blir under bygging, så dette kan jeg minske da jeg kan tette igjen med Tec7 eller lignenende i hullene (rundt EL-rør) samt legge rørene nærmest stueveggen så lydplatene er bak og nærmest sov. dette vil vel hjelpe endel? da får dem gjort jobben uten å tukle med dem
spør byggeleder, snekkere og evt elektriker som kommer til å jobbe på huset om råd for dette.
vil ihvertfall minske støyet mest mulig, det værste som finnes er et lytt hus
takk for tips om følsomheten, da skal jeg se etter det
skal se om jeg får handlet inn deftech i hele huset
så også på hvordan Yamaha appen funket istad.. den var veldig ryddig og fin!
Det skal bygges NYTT hus og jeg lurer på om noen teknisk smarte og evt folk med peiling på LYD har noen innspill her..
tanken er:
- innfelte høyttalere i 4 soner (stue,kjøkken,loftstue,uteplassen) - trådløs tilgang til anlegget via iphone/android (internett og bluetooth) - rimlig men bra lyd på kjøkken som blir bakgrunnslyd - billigste muligheten til en bra lydopplevelse i loftstue (film,serier,tvspill) - billigste muligheten til en bra lydopplevelse i stue (musikk, vanlig nyhetene og firestjerners middag) - Grei lydopplevelse for musikk med bakgrunns og for vanndisco i hagen
håper noen kan hjelpe en uviten og uerfaren på dette feltet:
- må jeg ha en "samlestokk" til hver sone, for å dele opp sonene? - eller fungerer det på en annen måte? - kan jeg velge men som helst forsterker og evt "samlestokk"(speaker receiver) for å sette sammen dette systemet? - kan/må jeg bruke en trådløs sender for å få den ut til smart telefon? - kan innfelte høyttalere byttes med hvem som helst merke men samme str etthvert, er det samme størrelse på innfelthullet?
Har tegnet et eks oppsett sånn jeg har forstått at kan funke: (enklere og bedre oppsett tas imot med åpne armer)
TAKK FOR SVAR PÅ FORHÅND!!
Hei Nickodemus! . Kult å høre at du skal bygge nytt hus! Det blir sikkert gøy!
Generellt sett, så er det som KE nevner helt innledningsvis, viktig å å trekke alle høyttalerkablene til ett sted hvor anlegget kan stå, da blir alt lettere å oppgradere i fremtiden. Men en annen ting som også er vel så viktig er å ha et egnet teknisk rom med god ventillasjon.
Du bør også tenke på om noen av rommene kanskje vil endre bruksformål i fremtiden, og det kanskje kan være lurt å legge opp rørføring til respektive rom, tilfelle-rottefelle. Så du kan utvide lyden til disse rommene senere.
Ta en titt på denne tråden her ! Kanskje den kan hjelpe deg litt på vei ?!
Skulle du ha behov for hjelp så kan vi hjelpe deg med alt dette...
-Vi leverer i så fall en komplett pakkeløsning med alt du trenger for å få huset ditt fylt med lyd - Skreddersydd etter ønsker, og budsjett,. ...Kall det gjerne en "gjør-det-selv" pakke med alt av utstyr.
Så får du også evt. nødvendig teknisk bistand, ved behov. Enten det er planlegging av systemløsning, kabling og koblings skjemaer, montasje, kalibrering, eller programmering.
da er det endelig satt opp et system jeg syntes virker bra! sant som Smarthuset AS nevner.. kan trekke rør til hovedsoverom og bad. så kan dette felles inn en gang i fremtiden om ønsket
her er en tegning sånn jeg forstår oppsettet komplett?!
Sånn ville eg gjort det:) Med unntak av at loftstue sannsynlegvis må vera sone 1. Men dette er ingen problem å forandra på slik du ønsker i ettertid.
Kan vera lurt å trekka kablar frå rommet utstyret står i til andre rom du kanskje vil ha lyd seinare. Desse kan forsåvidt berre ligga skjult inni veggen inntil vidare.
Jo lenger strekk høgtalarkablane har, dess større kraav er det til tjukkleik. Eg vile i alle fall ikkje brukt tynnare kablar enn 2,5mm.
HDMI tar mykje plass og er vanskelege å trekkja langt. Lurt å sjekka at kabelen fungerer som den skal, før alle veggar er luka osv. Kjøp siste standard HDMI.
Ikkje la deg lura til å bruka mykje pengar på dyre kablar. Nokon vil påstå at dyre høgtalarkablar gir betre lyd. Dette er kun placebo. Når det gjeld HDMI, så er dette eit digitalt signal. Dvs. at fungerer den, så fungerer den feilfritt.
Der du lagar hol til høgtalarar og slikt, vil det hjelpa voldsomt viss du lukker dette på baksida med gips og tec7 el.l. har du luftlekkasje, har du og lydlekkasje.
Eg veit ikkje kvar forsterkaren kjem til å stå, men eg reknar med den kjem til å stå gøymd eit stykke frå lyd/bilete. Skal du ha BluRay, Mediaspelar, HTPC eller liknande tl å spela av film frå feks, så må denne og ha en HDMI kabel fram tl forsterkar. Altså BluRay -> yamaha ->TV. Litt dumt å ha HDMI frå loftstue til forsterkar, så frå forsterkar tilbake til loftstue. Dette kan heldigvis løysast enkelt med å setja BluRay spelar i same rom som forsterkar og kopla det til med ein kort HDMI. Sørg for at du har ein BluRay spelar som kan styrast med ein app e.l. Evt. kan du investera i ein form for multifjernkontroll med hub for å sjernstyra den.
Denne forsterkaren kan køyra inntil 4 sonar (3 sonar normalt, 4 sonar med ein ekstra effektforsterkar). Denne kan altså brukast til 5,1 surround i loftstova og i tilegg driva 2 sonar med stereo (feks stova og ute). Koplar du på den ein ekstra 2 kanals effekt (lett å få tak i billig), kan den driva ei sone med 2 høgtalarar til (kjøkken, bad, soverom?). I tillegg støttar den alle nye lydformat (inkludert Atmos), bildeformat (4K60P, HDCP2,2), styring via app (wifi), blåtann, Spotify/spotimode osv. Den har utgang for to separate subbar som kan styrast uavhengig av kvarandre (ein i loftstova og ein i stova?)
http://no.yamaha.com/no/products/audio-visual/av-receivers-amps/aventage-series/rx-a3050_g/?mode=model.
Den kostar litt, men er krem.
Dette styringssystemet (music cast) kan utvidast med fleire sonar der ein ønskjer seinare ved å kjøpa fleir aktive høgtalarar eller forsterkarar med music cast. Yamaha lanserer eit breitt utvalg no.
Eg har forøvrig ingen tilknytting til DefTech, Yamaha eller Lsound, ana enn at eg er særs nøgd med servisen hjå Lsound, kvaliteten på mine DefTech SM65 og vurderer denne løysinga til Yamaha i framtida.
takk for at du deler ideer og tanker! dette har hjulpet meg masse!! har gått fra og ikke ha PEILING til å faktisk forstå endel om lyd!
har forhørt meg rundt med flere og dem syntes oppsettet virker veldig bra og fornuftig!
Snakket med Euronics i mitt lokale område, og fått et tilbud på Yamaha RX-A2050 fra 13899,- til 12.000,-
det er ikke stor nok forskjell til at jeg velger den dyreste forsterkern: RX-A3050
For denne forsterkern vil dra huset og loftstua bra utifra lydmannen på Euronics.
så da blir oppsettet:
Kjøkken: 1x liten DAB-radio
Stue: 2x innfelte vegghøyttalere + subwoofer + optical kabel fra tv til forsterker
Ute: 2x deftech "allværs" høyttalere
Loftstue: 5.1 surround innfelt i vegg+tak + optical kabel fra tv til forsterker
Teknisk rom: Yamaha RX-A2050 som vil være kablet med nettverksruter for bedre signal
i tillegg vil jeg: sette nettverksruter i stua på vegg bak tv for best mulig signal uten unødvendig forstyrrelser, men kabel vil bli trekt i ELrør med optical kabel, så der står jeg fritt til å gjøre hva jeg vil.
i tillegg vil jeg lydisolere hele loftstua: Legge trinnlydsmatter i gulv+laminatgulv, lydisoleringsplater+gips+MDF panelplater i vegger
Dette er slik jeg ser for meg beste måten og få et hus man har MYE glede av uten og slå seg i hode for man ville gjort ting litt anderledes.
håper dette ser ryddig ut i virkeligheten, så nå er det bare sparingen som gjelder
Ser ut som om en seriøs konkurrent til Sonos.
Samtidig som de har integrasjon mot KNX etc.
Fordelen med Sonos er at du slipper kabling (kun strøm) og en app som støtter det meste av nettkilder som fins. Har også integrert Sonos med HomeSeer, så ringeklokka spilles av på Sonos f.eks.
Eg ville ha kopla kilden/kildene du skal bruka til å spela av video o.l. til forsterkaren med HDMI, CAT6 eller tilsvarande. Då får du HD lydformata. Det får du ikkje med optisk.
Sørg for å bruka høgtalarar med høg følsomhet. Då treng du mindre forsterkarkraft for å driva dei.
Hugs på at alle hol du lagar i vegg/tak vil punktera lydisoldringa.
Eg ville ha kopla kilden/kildene du skal bruka til å spela av video o.l. til forsterkaren med HDMI, CAT6 eller tilsvarande. Då får du HD lydformata. Det får du ikkje med optisk.
Sørg for å bruka høgtalarar med høg følsomhet. Då treng du mindre forsterkarkraft for å driva dei.
Hugs på at alle hol du lagar i vegg/tak vil punktera lydisoldringa.
------------------------------------------------------------------------------------
Da skal jeg koble med HDMI, så jeg får best lyd
hullene jeg lager blir under bygging, så dette kan jeg minske da jeg kan tette igjen med Tec7 eller lignenende i hullene (rundt EL-rør) samt legge rørene nærmest stueveggen så lydplatene er bak og nærmest sov. dette vil vel hjelpe endel? da får dem gjort jobben uten å tukle med dem
spør byggeleder, snekkere og evt elektriker som kommer til å jobbe på huset om råd for dette.
vil ihvertfall minske støyet mest mulig, det værste som finnes er et lytt hus
takk for tips om følsomheten, da skal jeg se etter det
skal se om jeg får handlet inn deftech i hele huset
så også på hvordan Yamaha appen funket istad.. den var veldig ryddig og fin!
Hei Nickodemus!
.
Kult å høre at du skal bygge nytt hus! Det blir sikkert gøy!
Generellt sett, så er det som KE nevner helt innledningsvis, viktig å å trekke alle høyttalerkablene til ett sted hvor anlegget kan stå, da blir alt lettere å oppgradere i fremtiden.
Men en annen ting som også er vel så viktig er å ha et egnet teknisk rom med god ventillasjon.
Du bør også tenke på om noen av rommene kanskje vil endre bruksformål i fremtiden, og det kanskje kan være lurt å legge opp rørføring til respektive rom, tilfelle-rottefelle. Så du kan utvide lyden til disse rommene senere.
Ta en titt på denne tråden her ! Kanskje den kan hjelpe deg litt på vei ?!
Skulle du ha behov for hjelp så kan vi hjelpe deg med alt dette...
-Vi leverer i så fall en komplett pakkeløsning med alt du trenger for å få huset ditt fylt med lyd - Skreddersydd etter ønsker, og budsjett,. ...Kall det gjerne en "gjør-det-selv" pakke med alt av utstyr.
Så får du også evt. nødvendig teknisk bistand, ved behov. Enten det er planlegging av systemløsning, kabling og koblings skjemaer, montasje, kalibrering, eller programmering.
Lykke til med bygging av nytt hus!
her er en tegning sånn jeg forstår oppsettet komplett?!
Kan vera lurt å trekka kablar frå rommet utstyret står i til andre rom du kanskje vil ha lyd seinare. Desse kan forsåvidt berre ligga skjult inni veggen inntil vidare.
Jo lenger strekk høgtalarkablane har, dess større kraav er det til tjukkleik. Eg vile i alle fall ikkje brukt tynnare kablar enn 2,5mm.
HDMI tar mykje plass og er vanskelege å trekkja langt. Lurt å sjekka at kabelen fungerer som den skal, før alle veggar er luka osv. Kjøp siste standard HDMI.
Ikkje la deg lura til å bruka mykje pengar på dyre kablar. Nokon vil påstå at dyre høgtalarkablar gir betre lyd. Dette er kun placebo. Når det gjeld HDMI, så er dette eit digitalt signal. Dvs. at fungerer den, så fungerer den feilfritt.
Der du lagar hol til høgtalarar og slikt, vil det hjelpa voldsomt viss du lukker dette på baksida med gips og tec7 el.l. har du luftlekkasje, har du og lydlekkasje.
Eg veit ikkje kvar forsterkaren kjem til å stå, men eg reknar med den kjem til å stå gøymd eit stykke frå lyd/bilete. Skal du ha BluRay, Mediaspelar, HTPC eller liknande tl å spela av film frå feks, så må denne og ha en HDMI kabel fram tl forsterkar. Altså BluRay -> yamaha ->TV. Litt dumt å ha HDMI frå loftstue til forsterkar, så frå forsterkar tilbake til loftstue. Dette kan heldigvis løysast enkelt med å setja BluRay spelar i same rom som forsterkar og kopla det til med ein kort HDMI. Sørg for at du har ein BluRay spelar som kan styrast med ein app e.l. Evt. kan du investera i ein form for multifjernkontroll med hub for å sjernstyra den.
slik vil det ser ut