8,313
34
2
Bærende konstruksjon
200
1
Hei alle sammen,
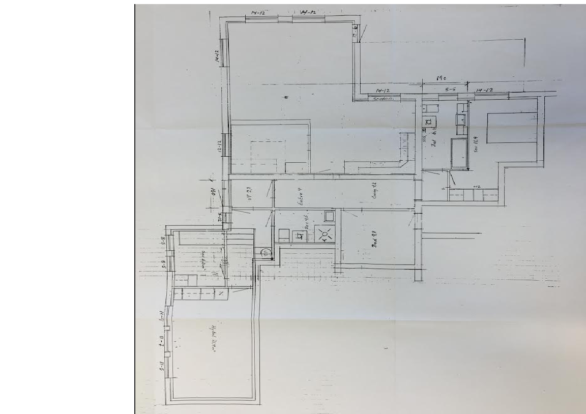
Vi har en enebolig fra 1970

med en sokkeletasje:

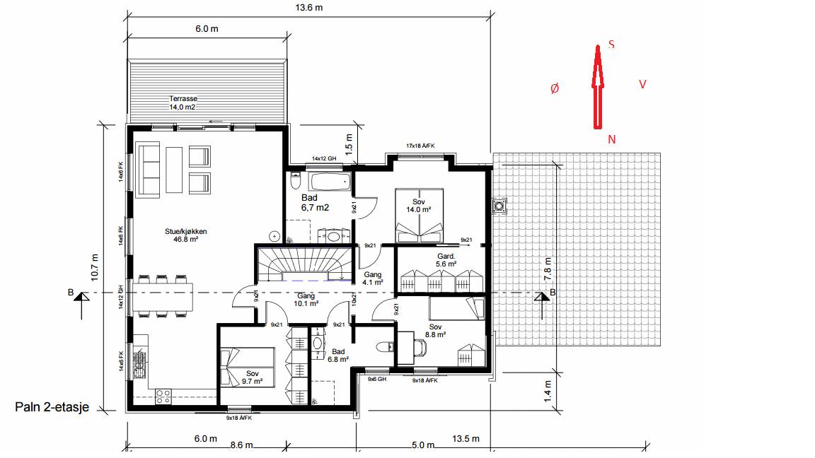
og en hovedetasje:

Vi skal bygge på en etasje med følgende planløsning:

Vi ønsker en pulttak som ser slik ut:

Vi har tenkt at pulttak skal være lavest på nord og høyest på sørsiden. Da får vi mest møne ved stue regionen. Spørsmål er hvordan det vil bli med bæringen? Fra nord til sør er spenn 10,7m og øst til vest 13,6m. Vi vet at yttervegg er bærende konstruksjon men klarer dere å "se" på de gamle tegningene om vi også har noe innvendig bærende vegg også? Vi håper jo at vi kan slippe å legge søyle/stolpe som må gå gjennom 1etg og underetasje. Fins det drager som kan spenne over ytterveggene uten å måtte ha en bæring midt i? Takvinkel er bare vilkårlig.
Her trenger vi litt fagkunnskap og håper virkelig på konstruktiv svar. Tusen tusen takk for hjelpen!
Vi har en enebolig fra 1970

med en sokkeletasje:

og en hovedetasje:

Vi skal bygge på en etasje med følgende planløsning:

Vi ønsker en pulttak som ser slik ut:

Vi har tenkt at pulttak skal være lavest på nord og høyest på sørsiden. Da får vi mest møne ved stue regionen. Spørsmål er hvordan det vil bli med bæringen? Fra nord til sør er spenn 10,7m og øst til vest 13,6m. Vi vet at yttervegg er bærende konstruksjon men klarer dere å "se" på de gamle tegningene om vi også har noe innvendig bærende vegg også? Vi håper jo at vi kan slippe å legge søyle/stolpe som må gå gjennom 1etg og underetasje. Fins det drager som kan spenne over ytterveggene uten å måtte ha en bæring midt i? Takvinkel er bare vilkårlig.
Her trenger vi litt fagkunnskap og håper virkelig på konstruktiv svar. Tusen tusen takk for hjelpen!
Takk for svar. Vi har ingen nabo foran så det vil ikke være noe problem og det er også derfor vi vil ha høyde på den siden. Høyde på vegg kommer vel ann på vinkel? Med en lav vinkel så få man lavere vegg og omvendt?
Når du sier gitterbjelker mener du at de skal stå på 1.etg(som himling på 1.etg men som gulv på 2.etg) eller på taket?
Kan du merke av hvor du tror det er bæring på kjeller?;)
(Her ligger det bilde av en gitterbjelke når jeg er i rediger modus, vet ikke hvorfor den fosvinner når jeg lagrer)
Hvordan denne må være må beregnes. Da får materialene hjelp av konstruksjonen til å bære på same måte som når en har takstoler i tradisjonelle stråtak. Men en må huske på at dette gir store laster på yttervegger. Alle vegger inkl kjeller må kontrolleres for at de kan bære denne lasten. Var borti noen som skulle legge på innredet loft istedenfor en flatere uinredet konstruksjon og de matte forsterke kjellermur mens 1 etg var OK.
Høye Masonite / I-bjelker kan jo hende at holder som er enklere enn gitterbjelker. 30 cm holdt ikke for lysåpning på 6,40 med snølast oppå.
Skjønte ikke helt hva du mente her. Altså der vegg på sokkel og vegg på 1.etg ligger oppå hverandre?
Ja det er drager der som jeg kan se rundt stua regionen. Kan ta bilde senere ikveld.
Hva mener du med at gitterbjelker er det som troligbygger over? Altså mellom yttervegg på påbygget slik at den blir til tak eller som gulv på 2.etg? Hvorfor må det bli høyt?
Bæringen må føres ned noe sted så du må starte med å finne punkter som er "oppå" hverandre i begge etasjene og så få kontrollert om det er bæring her.
Nå er det mørkt ute og jeg skal ta bilde imorgen. Men r påvi bare avklare et spm.
Vår nåværende bolig har allerede en spenn som er 13,2 meter nord til sør og hele 19,4 fra øst til vest. Vi har nå et flatt tak på huset. Kan et flatt tak har en så stor spenn uten bæring i midten? Det er vel usannsynlig?
Dersom det er bæring et eller annet sted i huset, må ikke den bæringen går gjennom både vegg i kjeller og 1.etg? Altså veggen faller sammen? Hvis vi skal bygge en etasje oppå det hele og deretter et tak så må vi ha bæring på 2.etg som sammenfaller med vegg på både 1.etg og kjeller? Og man må vurdere å forsterke bæringen(uansett om det dreier seg yttervegg eller innvendig bæring)dersom lasten på 2.etg blir for tungt?
Er vi på villspor eller tenker vi nogelunde riktig?
Riktig god påske til alle dere;)
"
Dersom det er bæring et eller annet sted i huset, må ikke den bæringen går gjennom både vegg i kjeller og 1.etg? Altså veggen faller sammen? Hvis vi skal bygge en etasje oppå det hele og deretter et tak så må vi ha bæring på 2.etg som sammenfaller med vegg på både 1.etg og kjeller? Og man må vurdere å forsterke bæringen(uansett om det dreier seg yttervegg eller innvendig bæring)dersom lasten på 2.etg blir for tungt?"
Presis!
Det har forundret meg helt siden du startet denne tråden at den som tegnet den nye etasjen tilsynelatende ikke har orientert seg om bæring i eksisterende bygg.
Det er mildt sagt elementært å begynne med det, for så å forsøke å orientere den nye etasjen i forhold til det.
Kan ikke tenke meg at takbjelkene fra 1970 har større spenn enn 3,5 - 4m, uten forsterkning / stålbjelker.
Dersom du får lagt ut tegningen i en bedre oppløsning er det kanskje noen kloke hoder som kan gi deg en pekepinn om hvor du skal leite etter dragere og søyler.
Og før du går videre med prosjekteringen vil jeg anbefale deg å kvalitetssikre prosjektet ved å faktisk finne ut av dette pkt.
Tømrer, montør av bad-garderobe og kjøkkeninnredninger.
Arkitekten har fortalt oss at det er ingen problem å legge pulttak slik vi ønsker det men det blir å se slik ut:
Dvs w takstoler og flat himlinga innvendig. "Da bærer taket av seg selv" sier hun og hun mener at dersom vi skal ha skrå himling så må vi ha inn stolpe/søyle som går helt ned til kjeller...Vi klar ikke å forstå fysikk bak det her. Den skråe delen av taket blir like langt/veier like mye uavhengig av takstoler, totalt veier det faktisk mer dersom takstoler er med i pakken, det er uansett yttervegg som bærer alle vekta. Er ikke det "bare" å bygge den ene vegg litt høyere enn det andre og vips er det pulttak? Takstoler gjør jo det tyngre og enda mer belastning for yttervegg..
Og hvis det trengs en bæring ca midt i så er det vel bare å ha en vegg/stolpe som faller med vegg i 1.etg og underetasjen? Er det riktig tenkt/forstått?